Mieszkanie na sprzedaż





Szczegóły ogłoszenia
- Symbol oferty JKI-MS-220
- Typ oferty mieszkanie na sprzedaż
- Cena 764 500 zł
- Charakterystyka mieszkania 61.16 m2, 3 pokoje
- Budynek szeregowiec; rok budowy: 2026
- Rozkład mieszkania niski parter piętro
- Garaż miejsce parkingowe
- Otoczenie jezioro i las
- Stan lokalu deweloperski
- Taras taras duży
Lokalizacja
- Adres dolnośląskie, Wrocław, Fabryczna
Opis nieruchomości
PRZEDSPRZEDAŻ INWESTYCJI ZIELONE TARASY WOŁODYJOWSKIEGO
Na sprzedaż mieszkanie o powierzchni 61,16 m2 z 111 metrowym ogrodem w nowopowstającej inwestycji Zielone Tarasy Wołodyjowskiego na wrocławskich Maślicach.
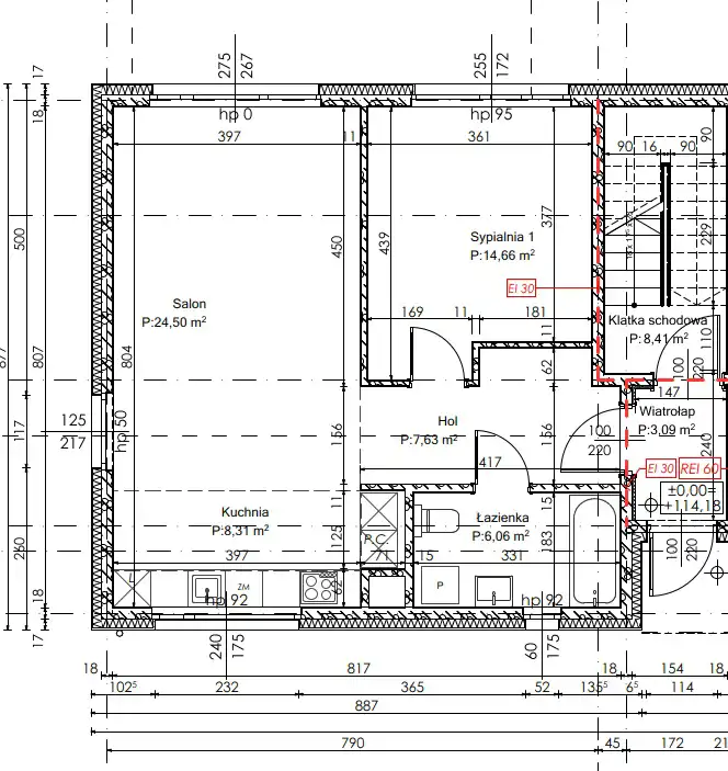
Na powierzchnię 61,16 m2 składa się:
- pokój dzienny (24,50 m2) z aneksem kuchennym (8,31 m2) z wyjściem na przestronny, 111 metrowy ogród
- sypialnia (14,66 m2)
- łazienka z oknem (6,06 m2)
- hall połączony z częścią dzienną (7,63 m2),
Promocyjna cena przedsprzedażowa 764 500 zł, miejsce postojowe w cenie!
Zielone Tarasy Wołodyjowskiego
nowa, kameralna inwestycja, która powstanie na spokojnych wrocławskich Maślicach.
Doskonała lokalizacja oferuje szereg zalet:
-sprawny dojazd do centrum (AOW i Most Rędziński)
-bliskość szkoły i przedszkola (Zespół Szkolno-Przedszkolny przy ul. Suwalskiej),
-bogatą infrastrukturę- sąsiedztwo centrów handlowych (Pasaż Królewiecki, N-Park)
Inwestycja zlokalizowana jest w bezpośrednim sąsiedztwie natury. Tutaj trasy spacerowe wzdłuż Odry, staw, Kąpielisko Królewieckie, Las Pilczycki i Rędziński oraz Park Maślicki i Stabłowicki, będące w zasięgu ręki otwierają dla przyszłych mieszkańców szereg możliwości spędzania wolnego czasu.
Inwestycja składa się z 22 dwu i trzypokojowych lokali mieszkalnych usytuowanych w zabudowie szeregowej.
Do Państwa wyboru mieszkania z ogródkami na parterze oraz mieszkania na piętrze z dużymi zielonymi tarasami na dachu!
Do każdego mieszkania przynależeć będzie miejsce postojowe.
Osiedle zaprojektowane zostało z dbałością o najdrobniejszy detal.
Zielone Tarasy Wołodyjowskiego – inwestycja o wielkomiejskim charakterze, ze świetną komunikacją z centrum Wrocławia, równocześnie zwrócona w kierunku natury, gwarantująca odpoczynek po dniu pracy.
Zapraszamy do zapoznania się z ofertą!
JK INVESTMENTS
Joanna Kocoń
+48 512 796 009