Mieszkanie na sprzedaż
775 000 zł
86 m2






1 / 6
Szczegóły ogłoszenia
- Symbol oferty OTO-MS-30621
- Typ oferty mieszkanie na sprzedaż
- Cena 775 000 zł
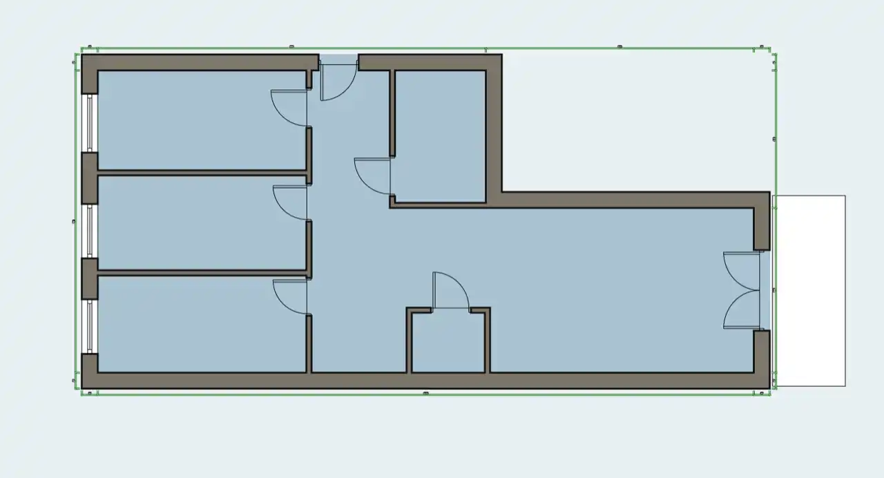
- Charakterystyka mieszkania 86.3 m2, 4 pokoje
- Budynek apartamentowiec; rok budowy: 2025
- Rozkład mieszkania 1p piętro
- Media Ogrzewanie: C.O. miejskie; Woda: ciepła - miejska; Gaz: tak - miejski
- Balkon jest
- Garaż garaż podziemny
- Ilość sypialni 3
- Instalacje nowe
- Okna PCV
- Plac zabaw Tak
- Stan lokalu do wykończenia
- Technologia budowlana silikat
- Winda Tak
Lokalizacja
- Adres dolnośląskie, Wrocław, Krzyki
Opis nieruchomości
Gotowe do końca roku!/ Ogrzewanie miejskie / Winda/ Nowoczesne osiedle/ Okazja/ Dużo zieleni/ Dobrze Skomunikowane
Posiadam w sprzedaży mieszkania na różnych piętrach oraz w różnym metrażu zarówno na tej inwestycji jak i w całym Wrocławiu. Zadzwoń i umów się na spotkanie!
Zapraszam do kontaktu:
Filip Kociołek: tel. 881 474 221
@-mail: filip@oto-oto.pl
Pośrednik odpowiedzialny zawodowo za wykonanie umowy pośrednictwa: Grzegorz Niewczas (licencja nr: 21838)
oto- 16398
Oferta została przygotowana na podstawie informacji uzyskanych od dewelopera. Informacje te są przez nas weryfikowane i sprawdzane, mogą jednak ulegać aktualizacji, w związku z czym powyższa oferta nie stanowi oferty handlowej w rozumieniu Kodeksu Cywilnego, a dane w niej zawarte mają jedynie charakter informacyjny.
Posiadam w sprzedaży mieszkania na różnych piętrach oraz w różnym metrażu zarówno na tej inwestycji jak i w całym Wrocławiu. Zadzwoń i umów się na spotkanie!
Największe atuty inwestycji:
- spokojna, zielona okolica
- dogodny dostęp do komunikacji miejskiej
- liczne parki, sklepy, restauracja
- wygodny wyjazd z miasta Autostradą A4
Mieszkanie o powierzchni około 85 m2 składa się z:
- pokoju dziennego z aneksem kuchennym
- trzech sypialni
- łazienki z oddzielnym wc
- przedpokoju
Dodatkowo:
- balkon
Gotowe do końca roku!
Mieszkanie jest oddawane w stanie deweloperskim, do własnej aranżacji.
Zdjęcia przedstawione w ofercie są wizualizacjami.
✔︎ Zapewniam pomoc w uzyskaniu kredytu oraz wykończeniu mieszkania pod klucz.
✔︎ Kupując z nami nieruchomość zyskujesz 10% rabatu na wykończenie lub remont mieszkania*
✔︎ Możliwość bezpłatnej rezerwacji mieszkania.
Zapraszam do kontaktu:
Filip Kociołek: tel. 881 474 221
@-mail: filip@oto-oto.pl
Pośrednik odpowiedzialny zawodowo za wykonanie umowy pośrednictwa: Grzegorz Niewczas (licencja nr: 21838)
oto- 16398
Oferta została przygotowana na podstawie informacji uzyskanych od dewelopera. Informacje te są przez nas weryfikowane i sprawdzane, mogą jednak ulegać aktualizacji, w związku z czym powyższa oferta nie stanowi oferty handlowej w rozumieniu Kodeksu Cywilnego, a dane w niej zawarte mają jedynie charakter informacyjny.
Nota prawna
Opis oferty zawarty na stronie internetowej sporządzany jest na podstawie oględzin nieruchomości oraz informacji uzyskanych od właściciela, może podlegać aktualizacji i nie stanowi oferty określonej w art. 66 i następnych K.C.
Kalkulator kredytowy
Formularz kontaktowy