Mieszkanie na sprzedaż









Szczegóły ogłoszenia
- Symbol oferty ALFM-MS-4065
- Typ oferty mieszkanie na sprzedaż
- Cena 777 000 zł
- Charakterystyka mieszkania 65 m2, 3 pokoje
- Budynek apartamentowiec; rok budowy: 2026
- Rozkład mieszkania 2p piętro
Lokalizacja
- Adres dolnośląskie, Wrocław, Fabryczna
Opis nieruchomości
Zapraszam do kontaktu i umówienia się na prezentację, gdzie na makiecie 3D obejrzymy spacery wirtualne dostępnych jeszcze układów w tej inwestycji.
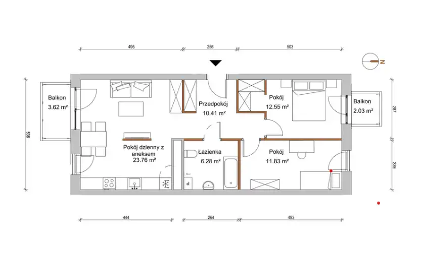
Na sprzedaż mieszkanie o powierzchni 64,83 m² położone na 2. piętrze w budynku wielorodzinnym. Lokal jest dwustronny, posiada bardzo funkcjonalny układ.
W skład mieszkania wchodzą:
-
pokój dzienny z aneksem kuchennym – 23,76 m² z wyjściem na balkon
-
sypialnia – 12,55 m² z garderobą i z wyściem na balkon
-
pokój – 11,83 m²
-
duża łazienka – 6,28 m²,
-
przedpokój – 10,41 m².
Mieszkanie posiada dwa duże miejsca do wypoczynku na świeżym powietrzu: balkon od strony salonu oraz balkon dostępny z jednej z sypialni.
Ekspozycja:północ/południe.
Układ jest wygodny zarówno dla rodziny, jak i dla osób szukających mieszkania z dodatkowym pokojem do pracy.
Dlaczego warto współpracować ze mną przy zakupie nieruchomości z rynku pierwotnego?
- Oszczędzasz czas -zamiast przeszukiwać dziesiątki ofert i dzwonić do różnych biur – kontaktujesz się tylko ze mną, a ja przedstawiam najlepsze opcje pod Twoje potrzeby
- Dostęp do najlepszych inwestycji – współpracuję bezpośrednio z wieloma sprawdzonymi deweloperami. Mam dostęp do pełnej oferty – mieszkań w promocji oraz mieszkań, które nie są jeszcze dostępne publicznie
- Kompleksowe doradztwo – pomagam na każdym etapie zakupu: od wyboru idealnego osiedla, mieszkania, przez negocjacje cen (gwarancja najniższej możliwej ceny) oraz harmonogramu płatności, analizie umowy deweloperskiej aż po odbiór kluczy
- Bez prowizji od kupującego
- Wsparcie inwestycyjne – Jeśli kupujesz na wynajem/pod inwestycję, doradzam w kwestii zwrotu z inwestycji, a także pomagam znaleźć najemcę i zajmuję się obsługą najmu
Największe atuty inwestycji:
- Bardzo trakcyjna lokalizacja, tuż przy ul.Legnickiej
- Bliskość do Rynku (10/15 minut pieszo)
- Funkcjonalne rozkłady
- Bezpośrednie sąsiedztwo Business Garden,Wrocławskiego Parku Przemysłowego, Millenium Towers, Carbon Tower oraz wielu innych biurowców oraz uczelni wyższych (Wyższa Szkoła Bankowa, Dolnośląska Szkoła Wyższa)
- Doskonała komunikacja z resztą miasta-7 linii tramwajowych oraz kilkanaście autobusowych
- Duży zielony taras widokowy na dachu do wyłącznej dyspozycji mieszkańców
- Tuż przy osiedlu liczne lokale usługowe i handlowe m.in. Żabka, Rossmann,Biedronka,kawiarnia,restauracja,Fitness Academy, szkoła tańca
- Elegancka strefa wejściowa i części wspólne budynku
- Zielone patio i wyjątkowy ogród wertykalny
CENA:
Mieszkanie: 777.000
Możliwość zakupu miejsca postojowego i komórki lokatorskiej.
Zakup zwolniony z podatku PCC.
Kupujący nie płaci prowizji.
Zdjęcia przedstawione w ofercie są wizualizacjami.
Lokal jest oddawany w stanie deweloperskim, do własnej aranżacji.
TERMIN ODDANIA:Koniec 2026
Kasia Chajec
tel.+ 48 882 714 302
kasia@alfama-nieruchomosci.pl
Alfama Nieruchomości S.C.
Powyższa oferta ma charakter informacyjny i nie stanowi oferty handlowej w rozumieniu art. 66 §1 Kodeksu Cywilnego.
Pośrednik odpowiedzialny zawodowo za wykonanie umowy pośrednictwa: Katarzyna Chajec (licencja nr: 23503 )