Mieszkanie na sprzedaż





Szczegóły ogłoszenia
- Symbol oferty ALFM-MS-2333
- Typ oferty mieszkanie na sprzedaż
- Cena 793 300 zł
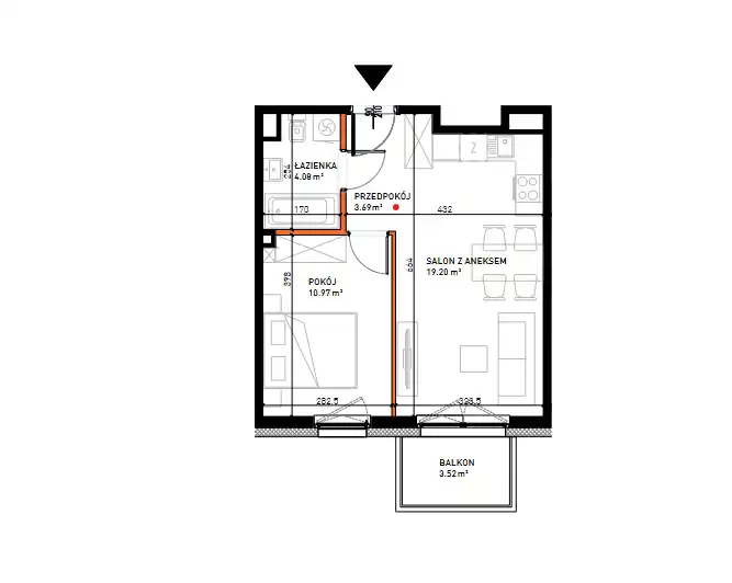
- Charakterystyka mieszkania 40 m2, 2 pokoje
- Budynek rok budowy: 2024
- Rozkład mieszkania 3p piętro
Lokalizacja
- Adres dolnośląskie, Wrocław, Stare Miasto
Opis nieruchomości
Prestiżowa Lokalizacja| 2 Pokoje+Balkon| Ścisłe Centrum|Koło Renomy|Lato 24'
Do sprzedaży piękne,ustawne mieszkanie o powierzchni 40m2 na prestiżowym osiedlu w samym centrum Wrocławia. W sąsiedztwie inwestycji m.in.Rynek(500m), Opera Wrocławska, Galeria Renoma oraz zielona Promenada Staromiejska.
Oferta bez prowizji, bezpośrednio od dewelopera.
Dostępne różne układy mieszkań na wszystkich piętrach - zadzwoń i umów się na prezentację!
LOKALIZACJA: Tadeusza Kościuszki/Przy Renomie
Inwestycja zlokalizowana w ścisłym centrum Wrocławia.
Największe atuty inwestycji:
√ doskonała lokalizacja w centrum miasta
√ 4min spacerem do Rynku
√ rozbudowana infrastruktura miejska, wszystko w zasięgu ręki - sklepy, piekarnie, restauracje, kawiarnie, uczelnie wyższe, szkoły, przedszkola
√ świetna komunikacja miejska(tramwaj-200m,autobus,dworzec kolejowy 600m)
√ sąsiedztwo spacerowych bulwarów/ liczne ścieżki spacerowe i rowerowe-m.in Promenada Staromiejska,Park Mikołąja Kopernika,Wzgórze Partyzantów
√ prestiżowe wykończenie części wspólnych, eleganckie lobby,strefa coworkingowa, taras widokowy na dachu
√ osiedle chronione całodobowo
√ parking podziemny, rowerownie,komórki lokatorskie
√ Mieszkania wyposażone w system smart home, drewniana stolarka okienna
NIERUCHOMOŚĆ:
Funkcjonalne 2 pokoje o powierzchni 40 m2 usytuowana na trzecim piętrze apartamentowca.
Mieszkanie składa się z:
- przestronnego salonu z aneksem kuchennym
- sypialni
- przedpokoju z miejscem na szafę
- łazienki
+dodatkowo balkonu,ekspozycja południowa.
CENA:
Mieszkanie: 793.300 PLN
Zakup zwolniony z podatku PCC.
Obsługa naszego biura jest całkowicie bezpłatna. Pomożemy w uzyskaniu kredytu hipotecznego, wspomożemy Państwa w całym procesie zakupu, odpowiemy na wszelkie pytania.
TERMIN ZAKOŃCZENIA BUDOWY: II Kwartał 2024-Klucze w lecie 2024'
Zdjęcia przedstawione w ofercie są wizualizacjami.Mieszkanie oddawane w stanie deweloperskim.
Posiadamy w swojej ofercie inne lokale 1-4 pokojowe na tym osiedlu oraz innych inwestycjach w okolicy. Zapraszam do kontaktu.
Kasia Chajec
tel.+ 48 882 714 302
kasia@alfama-nieruchomosci.pl
Alfama Nieruchomości S.C.
Powyższa oferta ma charakter informacyjny i nie stanowi oferty handlowej w rozumieniu art. 66 §1 Kodeksu Cywilnego.
Pośrednik odpowiedzialny zawodowo za wykonanie umowy pośrednictwa: Katarzyna Chajec (licencja nr: 23503 )