Mieszkanie na sprzedaż





Szczegóły ogłoszenia
- Symbol oferty NIDO-MS-423
- Typ oferty mieszkanie na sprzedaż
- Cena 809 000 zł
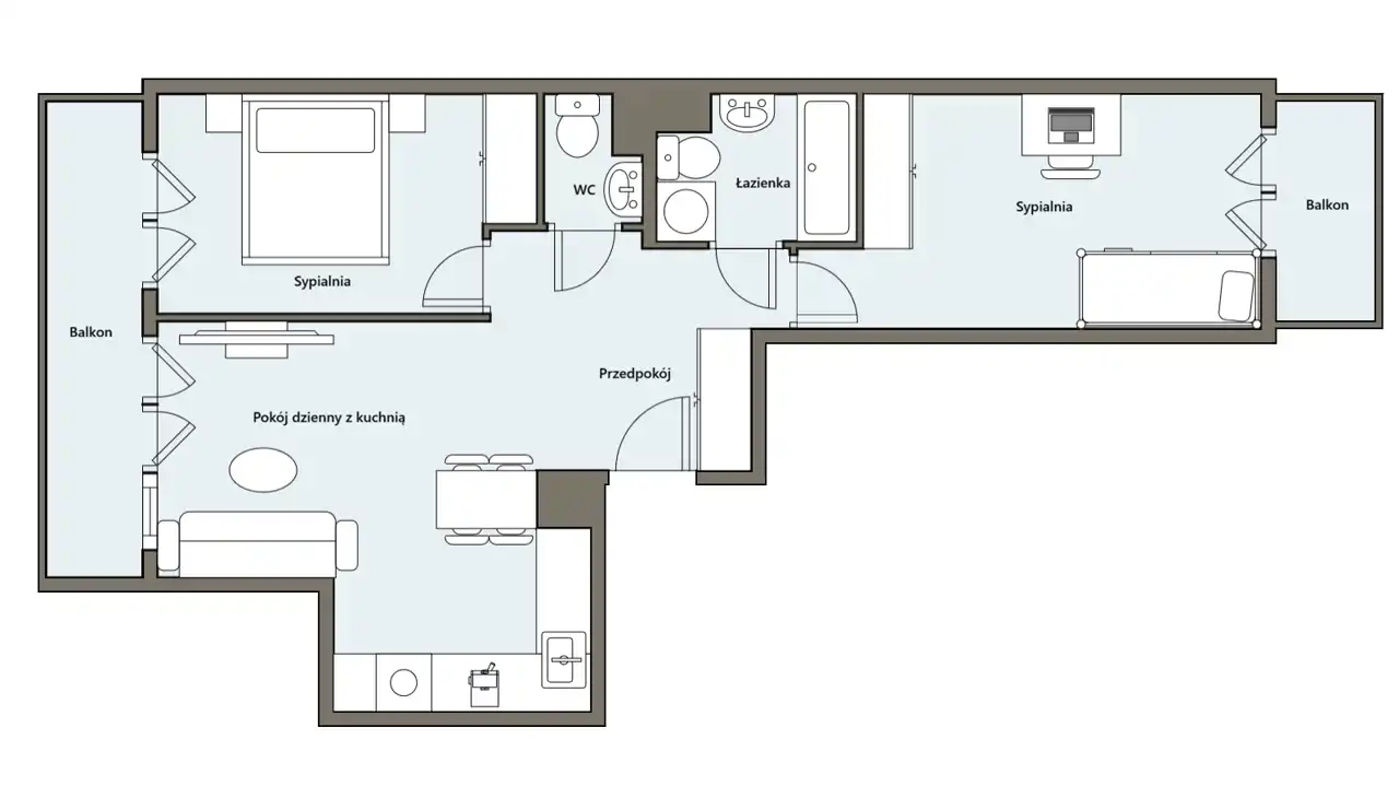
- Charakterystyka mieszkania 61.31 m2, 3 pokoje
- Budynek blok; rok budowy: 2025
- Rozkład mieszkania 3p piętro
- Media Ogrzewanie: C.O. miejskie; Woda: ciepła - miejska; Gaz: brak
- Balkon jest
- Dojazd asfalt
- Garaż garaż pod budynkiem
- Ilość sypialni 2
- Instalacje nowe
- Okna PCV
- Otoczenie osiedle
- Plac zabaw Tak
- Stan lokalu do wykończenia
- Technologia budowlana żelbeton
- Winda Tak
Lokalizacja
- Adres dolnośląskie, Wrocław, Psie Pole
Opis nieruchomości
Brak podatku 2%PCC oraz prowizji!
To idealne miejsce dla tych, którzy cenią sobie komfort oraz dostęp do wszystkich udogodnień miejskiego życia.
Mieszkanie 3 pokojowe o powierzchni około 61,31 m² usytuowane na 3 piętrze w kameralnym budynku z windą.
Opis mieszkania:
- w przedpokoju miejsce na dużą szafę w zabudowie
- dwa balkony - z wyjściem z każdego pokoju
- duża kuchnia
- duże sypialnie
- łazienka plus osobna toaleta
- mieszkanie dwustronne, na przestrzał
- wystawa okienna skierowana na wschód i zachód
- opcjonalnie możliwość dodatkowego zakupu komórki lokatorskiej i miejsca postojowego
Udogodnienia:
Osiedle zapewnia mieszkańcom szereg atrakcji, takich jak:
- monitoring
- lokale usługowe na osiedlu
- zewnętrzna siłownia
- place zabaw dla dzieci
- strefy rekreacyjne z zielenią
Lokalizacja:
Osiedle powstaje 5,5 km od Rynku. W okolicy inwestycji znajduje się pełne zaplecze edukacyjne, handlowe, usługowe i rekreacyjne. Blisko są żłobki, przedszkola, szkoły podstawowe oraz licea, co czyni to miejsce atrakcyjnym również dla studentów. Do uczelni, takich jak Uniwersytet Wrocławski czy Akademia Wojsk Lądowych, można dotrzeć pieszo lub rowerem. Mieszkańcy mają do dyspozycji liczne sklepy, Centrum Handlowe Korona oraz wiele możliwości spędzania czasu na świeżym powietrzu, w tym Las Sołtysowicki, parki i obiekty sportowe. Osiedle jest dobrze skomunikowane z resztą miasta dzięki pobliskim alejom Bolesława Krzywoustego i Marcina Kromera i przystankom autobusowym, a także stacji kolejowej Wrocław Sołtysowice.
Dlaczego warto?
Zdecyduj się na zakup mieszkania i stań się częścią dynamicznie rozwijającej się społeczności! Gwarantuję profesjonalną obsługę podczas całego procesu zakupu i pomoc w uzyskaniu kredytu hipotecznego oraz wykończenia nieruchomości
Nie czekaj – zostań właścicielem wymarzonego mieszkania już dziś!
Zapraszam do kontaktu, jestem do Państwa dyspozycji pod numerem telefonu: 574-076-776
Katarzyna Dorosz
NiDO Nieruchomości
nr licencji: 24771
tel: 574-076-776
e-mail:
Powyższa oferta ma charakter informacyjny i nie stanowi oferty handlowej w rozumieniu art. 66 §1 Kodeksu Cywilnego.
Pośrednik odpowiedzialny zawodowo za wykonanie umowy pośrednictwa: Katarzyna Dorosz licencja nr: 24771