Mieszkanie na sprzedaż








Szczegóły ogłoszenia
- Symbol oferty NHM-MS-36932
- Typ oferty mieszkanie na sprzedaż
- Cena 860 599 zł
- Charakterystyka mieszkania 72.35 m2, 4 pokoje
- Budynek blok; rok budowy: 2026
- Rozkład mieszkania 7p piętro
- Media Ogrzewanie: C.O. miejskie; Woda: tak - miejska; Gaz: brak
- Balkon jest
- Dojazd asfalt
- Garaż możliwość kupna
- Ilość sypialni 3
- Instalacje nowe
- Okna PCV
- Otoczenie zabudowa wielorodzinna
- Stan lokalu deweloperski
- Technologia budowlana silikat
- Winda Tak
Lokalizacja
- Adres dolnośląskie, Wrocław, Krzyki
Opis nieruchomości
Nowe 4-pokojowe mieszkanie z balkonem | Wrocław Krzyki / Partynice | Funkcjonalny układ
Na sprzedaż komfortowe, ustawne mieszkanie 4-pokojowe z balkonem, położone w nowoczesnej inwestycji na wrocławskich Krzykach. Lokal znajduje się w nowym budynku o wysokim standardzie, z dobrym dostępem do komunikacji oraz infrastruktury usługowej.
Najważniejsze informacje
-
Lokal: 4-pokojowe mieszkanie
-
Balkon: tak
-
Piętro: 7 piętro (zadzwoń i zapytaj o inne piętra)
-
Idealne: dla rodziny
Opis mieszkania
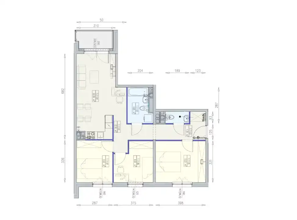
Powierzchnia użytkowa – rozkład pomieszczeń
-
Przedpokój – 12,10 m²
- Łazienka – 4,95 m²
- Toaleta - 1,70 m2
-
Salon z aneksem kuchennym – 22,00 m²
- Sypialnia – 9,52 m²
- Sypialnia - 9,04 m2
- Sypialnia - 13,03 m2
-
Balkon – ok. 2,85 m²
Mieszkanie posiada przemyślany układ, który pozwala na wygodne rozmieszczenie mebli i stref: dziennej, jadalnej oraz wypoczynkowej. Sypialnie są ustawne i funkcjonalne, a duże okna zapewniają dobre doświetlenie.
Salon z aneksem kuchennym tworzy główną przestrzeń domową – idealną do odpoczynku i spotkań. Z salonu wyjście na balkon, który stanowi dodatkową przestrzeń do użytku w sezonie.
Atuty mieszkania
-
Funkcjonalny układ 4-pokojowy z możliwością wydzielenia miejsca do pracy zdalnej
-
Balkon z wyjściem z salonu
-
Duże okna – mieszkanie jasne i dobrze doświetlone
-
Nowoczesny standard wykończenia budynku
-
Wysoka energooszczędność i niskie koszty eksploatacji
-
Możliwość indywidualnej aranżacji wnętrz
Atuty lokalizacji
-
W pobliżu sklepy, usługi, tereny zielone, ścieżki spacerowe
-
Blisko szkoły i przedszkola
- Szybki dojazd do centrum miasta
-
Blisko komunikacja miejska (tramwaj, autobus)
-
Dobry dostęp do Alei Karkonoskiej i węzła Bielany
-
Spokojna część Wrocławia, ceniona za komfort życia i bezpieczeństwo
Udogodnienia w inwestycji
-
Osiedle zostało zaprojektowane z myślą o wygodzie i bezpieczeństwie mieszkańców. W skład udogodnień wchodzą:
-
Nowoczesna architektura i wysoki standard budynków – estetyczne części wspólne, trwałe materiały, duże przeszklenia.
-
Garaż podziemny i miejsca postojowe naziemne – dostępność miejsc dla mieszkańców i gości.
-
Wózkownie i rowerowanie – bezpieczna przestrzeń na sprzęt sportowy.
- Monitoring i kontrola dostępu – zwiększone bezpieczeństwo mieszkańców.
- Strefa chilloutu - idealnie miejsce do odpoczynku i spotkań z sąsiadami
Dlaczego warto?
To mieszkanie w nowej inwestycji na Krzykach, idealne dla osób szukających wygody, dobrej komunikacji z centrum i funkcjonalnego układu. Duży balkon, nowoczesny standard budynku oraz dostęp do licznych udogodnień sprawiają, że jest to propozycja, która wyróżnia się na rynku.
Zadzwoń i zapytaj o dostępne mieszkania 1,2,3, i 5 pokojowe
W ofercie posiadam również inne mieszkania i domy na rynku pierwotnym i wtórnym.
Zapraszam do kontaktu
Michał Cepuch
tel. 884 707 778
Przy zakupie oferujemy wsparcie przy uzyskaniu finansowania na zakup nieruchomości z opcją dodatkowych korzyści! Szczegóły u Doradcy Finansowego.
Oferujemy szereg innych usług związanych z rynkiem nieruchomości. Zapraszamy do współpracy z naszym biurem.
*Prezentowana oferta nie stanowi oferty handlowej w rozumieniu Art. 66 par. 1 Kodeksu Cywilnego, a dane w niej zawarte mają charakter jedynie informacyjny i mogą ulec zmianie