Mieszkanie na sprzedaż




Szczegóły ogłoszenia
- Symbol oferty BESW-MS-14318
- Typ oferty mieszkanie na sprzedaż
- Cena 869 000 zł
- Charakterystyka mieszkania 69.24 m2, 4 pokoje
- Budynek apartamentowiec; rok budowy: 2022
- Rozkład mieszkania 1p piętro
- Balkon jest
- Garaż garaż
- Ilość sypialni 3
- Okna PCV
- Stan lokalu deweloperski
- Umeblowanie brak
- Winda Tak
Lokalizacja
- Adres dolnośląskie, Wrocław, Psie Pole
Opis nieruchomości
Deweloperskie mieszkania w budynkach 5-kondygnacyjnych w otoczeniu zieleni
BEZPOŚREDNIO od dewelopera, brak prowizji oraz podatku 2% PCC.
Posiadamy ponad 90 inwestycji we Wrocławiu i okolicach, zapytaj o pozostałe.
Bezpłatna pomoc przy kredytowaniu.
Inwestycja na Północy Wrocławia, Psie Pole, mieszkania w stanie deweloperskim. Lokale po odbiorze.
Posiadamy w ofercie sprzedaży mieszkania o powierzchni od 49,68 m. kw do 88,49 m.kw, składające się z dwóch, trzech lub czterech pokoi.
Cena za m.kw od 11 176 zł do 13 899 zł
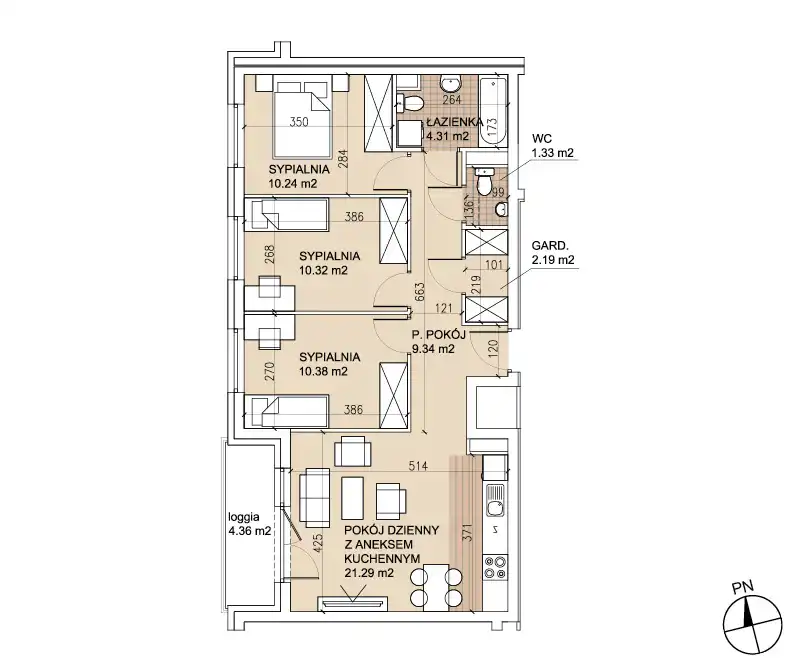
Prezentowane mieszkanie o powierzchni użytkowej 69,24 m.kw składa się z pokoju dziennego z aneksem kuchennym o pow. 21,29 m.kw, trzech sypialni o powierzchniach 10,24 m.kw + 10,32 m.kw + 10,38 m.kw, przedpokoju o pow. 9,34 m.kw, łazienki o pow. 4,31 m.kw, garderoby o pow. 2,19 m.kw oraz wc o pow. 1,33 m.kw. W mieszkaniu znajduje się balkon- loggia o pow. 4,36 m.kw
Ogrzewanie: miejskie.
Świetna lokalizacja, w otoczeniu terenów zielonych, w niedalekiej odległości znajdują się sklepy oraz niezbędna infrastruktura.
Cena: 869 000 zł + miejsce postojowe w garażu podziemnym 29 000- 39 000 zł
Możliwość zakupu komórki lokatorskiej w kwocie 3 500 / m.kw
Zadzwoń, umów się na prezentację.
Zapewniamy kompleksową obsługę, najlepsze kredyty hipoteczne, bezpieczną transakcję. Jesteśmy z Tobą na każdym etapie zakupu, od prezentacji do przekazania kluczy. Stan prawny uregulowany, dokumenty dotyczące w/w oferty do wglądu.