Mieszkanie na sprzedaż
895 000 zł
82 m2















1 / 15
Szczegóły ogłoszenia
- Symbol oferty CZN-MS-1119
- Typ oferty mieszkanie na sprzedaż
- Cena 895 000 zł
- Charakterystyka mieszkania 82 m2, 4 pokoje
- Budynek blok; rok budowy: 1995
- Rozkład mieszkania 1p piętro
- Balkon duży
- Czynsz Czynsz letni: 1300 zł
- Garaż miejsce postojowe
- Okna drewniane
- Stan lokalu dobry
- Technologia budowlana pustak ceramiczny
Lokalizacja
- Adres dolnośląskie, Wrocław, Krzyki
Opis nieruchomości
Oferta na wyłączność
Przestronne, wyjątkowo funkcjonalne i w pełni rozkładowe 4-pokojowe mieszkanie (82,06 m2) z dwoma balkonami i komórką lokatorską
Piętro I, duże miejsce postojowe w garażu podziemnym (17,5 m2)
Doskonała lokalizacja i dogodna komunikacja z pozostałymi częściami miasta, w pobliżu liczne tereny zielone
LOKALIZACJA:
Przestronne, wyjątkowo funkcjonalne i w pełni rozkładowe 4-pokojowe mieszkanie (82,06 m2) z dwoma balkonami i komórką lokatorską
Piętro I, duże miejsce postojowe w garażu podziemnym (17,5 m2)
Doskonała lokalizacja i dogodna komunikacja z pozostałymi częściami miasta, w pobliżu liczne tereny zielone
LOKALIZACJA:
- Wrocław, Krzyki, ulica Poranna (boczna ul. Wietrznej i Róży Wiatrów);
- odległość do ścisłego centrum miasta (Rynek) ok. 5,5 km;
- 6,5 km do Bielan Wrocławskich oraz autostrady A4 i AOW;
- w najbliższym otoczeniu sklepy wielobranżowe oraz punkty usługowe i gastronomiczne, etc.
- bliskość terenów zielonych, w pobliżu 4 parki: Krzycki, Kleciński, Grabiszyński i Południowy;
- dobry dostęp komunikacji publicznej: przystanki autobusowe i tramwajowe.
CHARAKTERYSTYKA:
- odległość do ścisłego centrum miasta (Rynek) ok. 5,5 km;
- 6,5 km do Bielan Wrocławskich oraz autostrady A4 i AOW;
- w najbliższym otoczeniu sklepy wielobranżowe oraz punkty usługowe i gastronomiczne, etc.
- bliskość terenów zielonych, w pobliżu 4 parki: Krzycki, Kleciński, Grabiszyński i Południowy;
- dobry dostęp komunikacji publicznej: przystanki autobusowe i tramwajowe.
CHARAKTERYSTYKA:
- mieszkanie położone na piętrze I w 3-piętrowym budynku z 1995 roku;
- budynek zlokalizowany z dala od ruchliwych ulic;
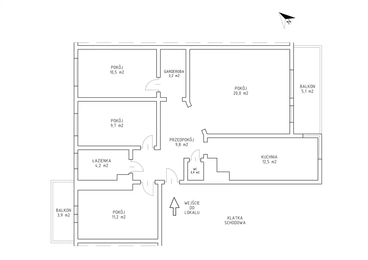
- mieszkanie dwustronne, 4-pokojowe o powierzchni 82,06 m2, na którą składają się: przestronny salon (20 m2) z wyjściem na balkon; 3 sypialnie (11 m2; 10,5 m2; 10 m2), w tym jedna z wyjściem na balkon; osobna, widna, duża kuchnia (12,5 m2); łazienka (4 m2); osobne wc (1 m2); garderoba (3 m2) oraz przedpokój (10 m2) - szkic lokalu w załączeniu;
- stolarka okienna drewniana, drzwi wejściowe stalowe, antywłamaniowe;
- do mieszkania przynależy komórka lokatorska o powierzchni 1,14 m2;
- wystawa okienna wschód - zachód;
- ogrzewanie gazowe zasilane z dwufunkcyjnego pieca gazowego z zamkniętą komorą spalania.
CENA MIESZKANIA: 895 000 zł
CENA MIEJSCA POSTOJOWEGO: 55 000 zł
- budynek zlokalizowany z dala od ruchliwych ulic;
- mieszkanie dwustronne, 4-pokojowe o powierzchni 82,06 m2, na którą składają się: przestronny salon (20 m2) z wyjściem na balkon; 3 sypialnie (11 m2; 10,5 m2; 10 m2), w tym jedna z wyjściem na balkon; osobna, widna, duża kuchnia (12,5 m2); łazienka (4 m2); osobne wc (1 m2); garderoba (3 m2) oraz przedpokój (10 m2) - szkic lokalu w załączeniu;
- stolarka okienna drewniana, drzwi wejściowe stalowe, antywłamaniowe;
- do mieszkania przynależy komórka lokatorska o powierzchni 1,14 m2;
- wystawa okienna wschód - zachód;
- ogrzewanie gazowe zasilane z dwufunkcyjnego pieca gazowego z zamkniętą komorą spalania.
CENA MIESZKANIA: 895 000 zł
CENA MIEJSCA POSTOJOWEGO: 55 000 zł
opłaty eksploatacyjne: ok. 1 300 zł/m-c + prąd
Niniejsza informacja nie stanowi oferty w rozumieniu Kodeksu Cywilnego.
Pośrednik odpowiedzialny zawodowo za realizację umowy pośrednictwa: Piotr Czajczyński - licencja zawodowa nr 10273.
Pośrednik odpowiedzialny zawodowo za realizację umowy pośrednictwa: Piotr Czajczyński - licencja zawodowa nr 10273.
Nota prawna
Opis oferty zawarty na stronie internetowej sporządzany jest na podstawie oględzin nieruchomości oraz informacji uzyskanych od właściciela, może podlegać aktualizacji i nie stanowi oferty określonej w art. 66 i następnych K.C.
Kalkulator kredytowy
Formularz kontaktowy