Mieszkanie na sprzedaż





Szczegóły ogłoszenia
- Symbol oferty NIDO-MS-377
- Typ oferty mieszkanie na sprzedaż
- Cena 899 000 zł
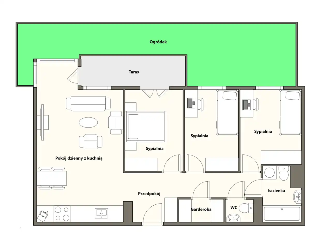
- Charakterystyka mieszkania 77.4 m2, 4 pokoje
- Budynek blok; rok budowy: 2024
- Rozkład mieszkania parter piętro
- Media Ogrzewanie: C.O. miejskie; Woda: ciepła - miejska; Gaz: brak
- Balkon jest
- Dojazd asfalt
- Garaż miejsce postojowe przed budynkiem
- Ilość sypialni 3
- Instalacje nowe
- Okna PCV
- Otoczenie las
- Plac zabaw Tak
- Stan lokalu deweloperski
- Technologia budowlana żelbeton
- Winda Tak
Lokalizacja
- Adres dolnośląskie, Wrocław, Psie Pole
Opis nieruchomości
Brak podatku 2%PCC oraz prowizji!
Mieszkanie 4 pokojowe o powierzchni 77,40 m² usytuowane na parterze w nowym budynku z windą.
Opis mieszkania:
- garderoba
- łazienka plus osobna toaleta
- trzy ustawne sypialnie - każda ponad 10 m2
- do mieszkania przynależy ogródek
- z pokoju dziennego oraz jednej sypialni wyjście na ogród
- mieszkanie środkowe
- wystawa okienna skierowana na zachód
- w oknach zamontowane rolety zewnętrzne elektryczne
- w cenie mieszkania miejsce postojowe w hali garażowej
Cena mieszkania: w promocji 959 000 zł
W promocji za 899 000 zł już z miejscem postojowym
Oferuję atrakcyjne systemy płatności oraz możliwość negocjacji.
Mieszkanie w stanie deweloperskim, do własnej aranżacji.
Udogodnienia: Osiedle zapewnia mieszkańcom szereg atrakcji, takich jak:
- monitoring
- ładnie zagospodarowane części wspólne osiedla różnorodną roślinnością
- place zabaw dla dzieci
- zewnętrzna siłownia
- w najbliższej okolicy mieszczą się placówki opiekuńcze i edukacyjne
Lokalizacja: Osiedle znajduje się w cichej części Wrocławia, blisko dobrego transportu publicznego, co ułatwia dojazd do centrum. W okolicy znajdują się żłobki, przedszkola, szkoły oraz sklepy, a niedaleko Centrum Handlowe Korona. W pobliżu są tereny zielone, takie jak Park Pawłowicki i Las Zakrzowski, idealne do spacerów, wycieczek rowerowych i pikników.
Dlaczego warto? Zdecyduj się na zakup mieszkania i stań się częścią dynamicznie rozwijającej się społeczności! Gwarantuję profesjonalną obsługę podczas całego procesu zakupu i pomoc w uzyskaniu kredytu hipotecznego.
Zapraszam do kontaktu, jestem do Państwa dyspozycji pod numerem telefonu: 574-076-776
Nie czekaj – zostań właścicielem wymarzonego mieszkania już dziś!
Katarzyna Dorosz
NiDO Nieruchomości
nr licencji: 24771
tel: 574-076-776
e-mail: kasia@nidonieruchomosci.pl
Powyższa oferta ma charakter informacyjny i nie stanowi oferty handlowej w rozumieniu art. 66 §1 Kodeksu Cywilnego.
Pośrednik odpowiedzialny zawodowo za wykonanie umowy pośrednictwa: Katarzyna Dorosz licencja nr: 24771.