Mieszkanie na sprzedaż









Szczegóły ogłoszenia
- Symbol oferty NOM-MS-24422
- Typ oferty mieszkanie na sprzedaż
- Cena 929 000 zł
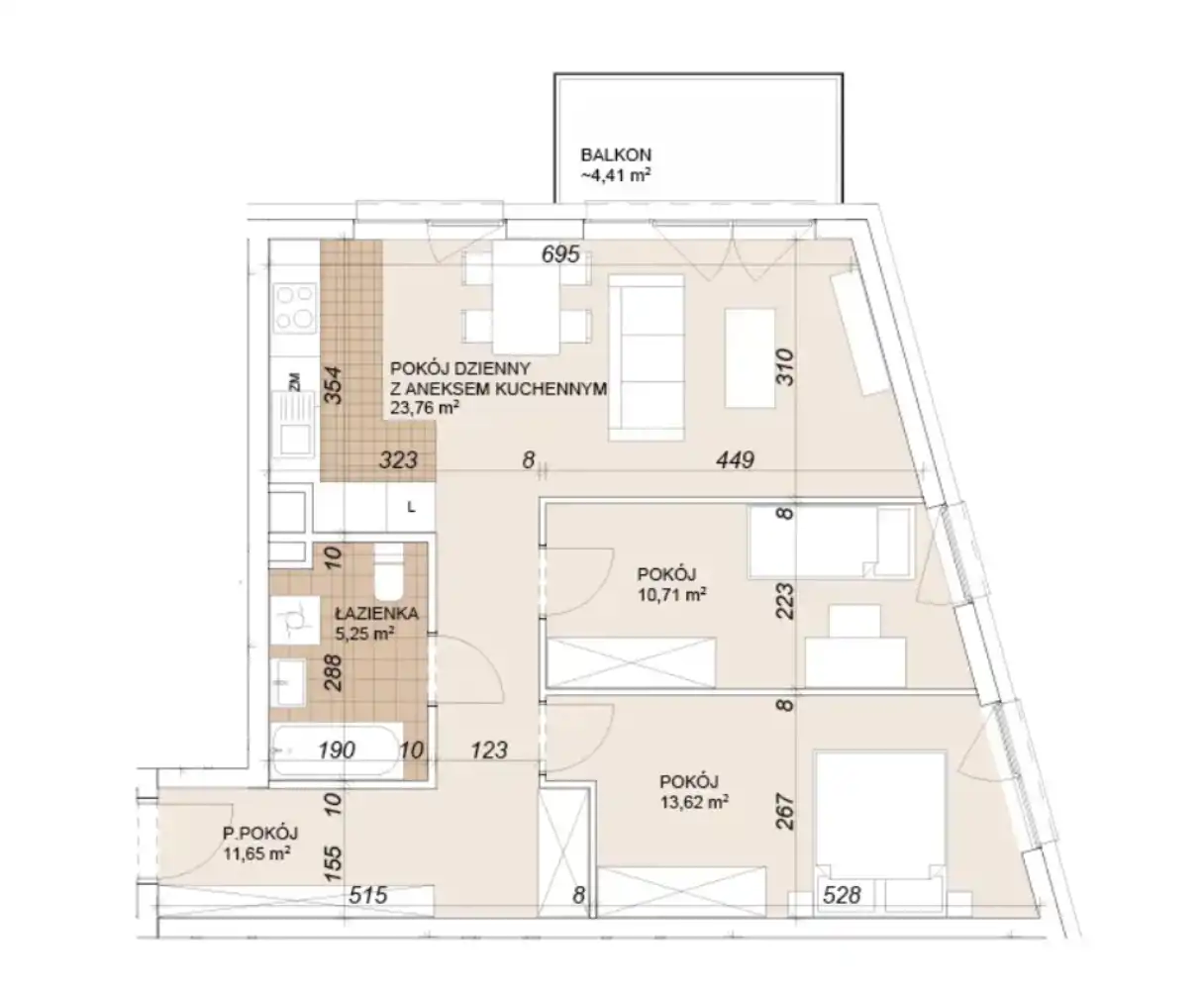
- Charakterystyka mieszkania 65 m2, 3 pokoje
- Budynek apartamentowiec; rok budowy: 2025
- Rozkład mieszkania 2p piętro
- Balkon duży
- Okna PCV
- Plac zabaw Tak
- Stan lokalu do wykończenia
- Winda Tak
Lokalizacja
- Adres dolnośląskie, Wrocław, Stare Miasto
Opis nieruchomości
STARE MIASTO BEZ PROWIZJI BEZ PODATKU 2% PCC
SPACEREM DO RYNKU CENTRUM STAREGO MIASTA
KOMFORTOWE NOWOCZESNE OSIEDLE NAD ODRĄ Z WIDOKAMI
WINDA BALKON MIEJSCA PARKINGOWE WYSOKI STANDARD
MEDIA MIEJSKIE OCHRONA TERENY SPACEROWO-REKREACYJNE Z ZIELENIĄ
Spokojna Przystań - SPOKÓJ w BLISKIM SĄSIEDZTWIE CENTRUM
Osiedle powstaje tuż przy Odrze, na Starym Mieście. Tej wyjątkowej lokalizacji zawdzięcza swój charakter – wielkomiejski, z doskonałą komunikacją, o krok od centrum i tętniących życiem arterii, a jednocześnie zwrócony w stronę terenów zielonych, biegnących wzdłuż rzeki przyciągającej swym majestatycznie rozlanym, leniwym nurtem.
Wśród zieleni
Położenie osiedla stało się inspiracją dla jego planu – układ zabudowy przywołuje na myśl zacumowane w porcie statki. Kaskadowa kompozycja brył sprawi, że panorama OSIEDLA będzie zmienna i dynamiczna, a nowoczesna architektura budynków z jasnymi elewacjami i dużymi przeszkleniami nada założeniu ponadczasowy styl.
Doskonałą oprawę stworzy dla niej wypełniająca przestrzeń osiedla - bujna zieleń. Ocienione drzewami, biegnące wśród ozdobnych krzewów alejki będą prowadziły spacerujących nad oczka wodne, rozrzucone tak, żeby każdy znalazł dla siebie miejsce do relaksu, spotkania, zabawy. Tak malownicze otoczenie zapewni chwilę wytchnienia po intensywnym dniu, pozwoli odzyskać energię i wewnętrzną równowagę. Miłośnicy aktywnego spędzania wolnego czasu z pewnością docenią siłownię terenową, a królestwem dzieci stanie się pełen różnych atrakcji plac zabaw.
Wygodna I KOMFORTOWA przystań
W odznaczających się harmonijną i stonowaną estetyką budynkach powstaną komfortowe i funkcjonalne mieszkania o metrażach od 27 do 120 m² – zarówno mniejsze, jedno- i dwupokojowe, jak również większe: trzy-, cztero-, a nawet pięciopokojowe. Przestronne balkony i tarasy – największe o powierzchni do 76 m², to miejsca szczególne – kawałek własnego nieba w sercu miasta.
Części wspólne z eleganckimi klatkami schodowymi i nowoczesnymi windami charakteryzować się będą wyjątkowym standardem. Poczucie bezpieczeństwa zapewni monitoring osiedla, a wygodne parkowanie samochodu umożliwią miejsca postojowe naziemne i te zlokalizowane w podziemnych garażach, które teraz razem z mieszkaniem można zakupić w specjalnej ofercie.
ZAPRASZAMY NOWE MIESZKANIA
ZESPÓŁ EKSPERTÓW D/S NIERUCHOMOŚCI
Sprawdź swoją zdolność kredytową, zanim zaczniesz szukać nieruchomości.
W ofercie posiadamy pełen przegląd rynku - 28 BANKÓW. Indywidualny Doradca Finansowy porówna aktualne oferty i wybierze najkorzystniejszą, indywidualnie dopasowaną do TWOICH potrzeb.
Pomagamy w załatwieniu wszystkich formalności
BEZ ŻADNYCH OPŁAT I PROWIZJI
NOWE MIESZKANIA - współpracujemy z NAJLEPSZYMI DEWELOPERAMI
NOWE MIESZKANIA - NAJWYŻSZA JAKOŚĆ I BEZPIECZEŃSTWO ZAKUPU
NOWE MIESZKANIA - 28 BANKÓW - NAJKORZYSTNIEJSZY I OBIEKTYWNY KREDYT MIESZKANIOWY