Mieszkanie na sprzedaż


















Szczegóły ogłoszenia
- Symbol oferty NHM-MS-33256
- Typ oferty mieszkanie na sprzedaż
- Cena 975 000 zł
- Charakterystyka mieszkania 95.46 m2, 4 pokoje
- Budynek dom wielorodzinny; rok budowy: 1930
- Rozkład mieszkania wysoki parter piętro
- Media Ogrzewanie: piec dwufunkcyjny; Woda: jest; Gaz: jest
- Czynsz Czynsz letni: 1250 zł
- Dojazd asfaltowa/kostka
- Garaż miejsce postojowe przed budynkiem
- Instalacje ELEKTRYCZNA, WODNA, GAZOWA
- Okna drewniane
- Otoczenie jezioro i las
- Stan lokalu do wprowadzenia
- Technologia budowlana tradycyjna
Lokalizacja
- Adres dolnośląskie, Wrocław, Fabryczna
Opis nieruchomości
Klimatyczne mieszkanie 4 pokojowe w wyremontowanym budynku willowym tuż przy Parku.
Zachęcam do zapoznania się z filmem prezentującym nieruchomość:
https://www.youtube.com/watch?v=eN9BVWCtTR0
oraz wirtualnym spacerem!
Przedwojenny budynek o charakterze willowym położony jest przy ul. Serowarskiej. W skład nieruchomości wchodzi 6 lokali mieszkalnych, rozłożonych po 2 na każdą kondygnację. Na przełomie 2022/2023 roku został wykonany remont zarówno dachu jak i elewacji, a w maju 2025 r. zakończono remont klatki schodowej.
Budynek położony jest na pięknie zagospodarowanej działce o powierzchni 965 m2, bujnie porośniętej wysoką i niską roślinnością dając możliwość swobodnego wypoczynku dla mieszkańców. Kameralne i spokojne sąsiedztwo, wokół wille oraz tereny zielone.
10 minut spacerem dzieli nas od pobliskiego sklepu oraz stacji PKP Wrocław Leśnica, skąd w zaledwie 15 minut możemy znaleźć się w centrum miasta.
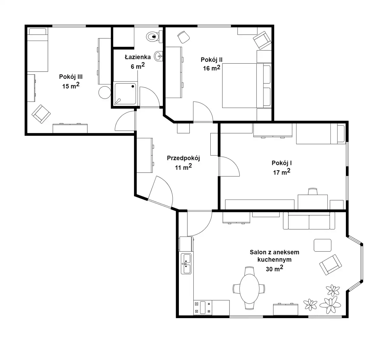
Stylowe mieszkanie o powierzchni aż 95 m2, składające się z 4 pokoi w tym salon z aneksem kuchennym o powierzchni 30 m2. Dzięki dobremu doświetleniu i jasnym barwom salon jest niezwykle przestronny, a wysokie sufity nadają wrażenie dodatkowej przestrzeni.
Zabudowa kuchenna z pełnym wyposażeniem, stół jadalny oraz zestaw wypoczynkowy, z którego możemy podziwiać zielone otoczenie nieruchomości. W zestawie również piękne i stylowe drewniane meble oraz prawdziwie drewniana podłoga z desek sosnowych.
Dodatkowe udogodnienie stanowi piwnica, w której znajduje się nowy piec gazowy.
Mieszkanie o powierzchni 95 m2:
- Salon z aneksem kuchennym - 30 m2
- Pokój I - 17 m2
- Pokój II - 16 m2
- Pokój III - 15,50 m2
- Łazienka - 6 m2
- Przedpokój - 11 m2
Dodatkowo:
- Piwnica 11 m2
Serdecznie zapraszam do kontaktu oraz na prezentację!
Atuty nieruchomości:
- mieszkanie 4-pokojowe
- powierzchnia: 95 m2
- piwnica ok. 11 m2
- piętro: wysoki parter
- wysokość pomieszczeń: 2,85 m
- przestronny salon z aneksem kuchennym
- remont łazienki w 2020 r.
- duże pokoje sypialniane
- stylowe drewniane meble
- prawdziwie drewniana podłoga z desek sosnowych
- strony świata: północ, wschód, zachód
- modernizacja ogrzewania przed zimą 2022 r.
- nowy piec gazowy
- budynek willowy z 1930 r
- remont dachu i elewacji - 2022/2023 r.
- remont klatki schodowej - maj 2025 r.
- działka 965 m2
- 6 lokali mieszkalnych w całym budynku
- miejsce postojowe przed budynkiem
Lokalizacja/udogodnienia:
- 10 minut spacerem do Dworca PKP - Wrocław Leśnica
- 5 minuty spacerem do Przystanku Autobusowego
- 15 minut spacerem do Pętli Autobusowej i Tramwajowej – Leśnica
- 12 minut spacerem do Biedronki, Aldi
- 10 minut spacerem Żabka
Bogata infrastruktura handlowa wraz z pełnym zakresem usług w centrum Leśnicy.
- 3 minuty spacerem Stawy w Leśnicy
W bliskiej odległości Park Leśnicki, Park Złotnicki oraz Las Ratyński.
Warto ze mną współpracować ponieważ:
- oferuję wsparcie przy uzyskaniu finansowania na zakup nieruchomości z opcją dodatkowych korzyści
- pomogę we wszystkich formalnościach.
- oferuję szereg innych usług związanych z zakupem nieruchomości
*Prezentowana oferta nie stanowi oferty handlowej w rozumieniu Art. 66 par. 1 Kodeksu Cywilnego, a dane w niej zawarte mają charakter jedynie informacyjny i mogą ulec zmianie.