Mieszkanie na sprzedaż




Szczegóły ogłoszenia
- Symbol oferty NHM-MS-36792
- Typ oferty mieszkanie na sprzedaż
- Cena 991 240 zł
- Charakterystyka mieszkania 53.36 m2, 2 pokoje
- Budynek apartamentowiec
- Rozkład mieszkania parter piętro
- Ilość sypialni 1
- Winda Tak
Lokalizacja
- Adres dolnośląskie, Wrocław, Śródmieście
Opis nieruchomości
Nowoczesne mieszkanie z ogródkiem przy parku – 53,36 m² | 2 pokoje | 991 239,73 zł
Na sprzedaż przestronne, dwupokojowe mieszkanie o powierzchni 53,36 m², położone na parterze nowoczesnego i kameralnego budynku, w bezpośrednim sąsiedztwie parku. To propozycja idealna dla osób poszukujących komfortowego miejsca do życia, z prywatną przestrzenią na świeżym powietrzu.
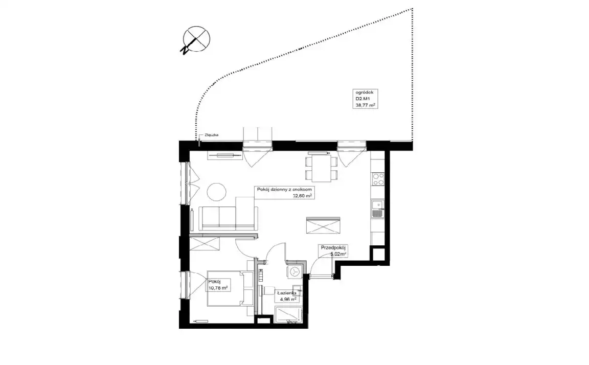
Do mieszkania przynależy ogród o powierzchni aż 38,77 m², który może stać się miejscem do relaksu, spotkań z bliskimi lub stworzenia własnej zielonej strefy.
Rozkład pomieszczeń:
-
Pokój dzienny z aneksem kuchennym – 32,60 m²
-
Sypialnia – 10,78 m²
-
Łazienka – 4,96 m²
-
Przedpokój – 5,02 m²
-
Ogródek – 38,77 m²
Parametry nieruchomości:
-
Cena: 991 239,73 zł
-
Powierzchnia: 53,36 m²
-
Liczba pokoi: 2
-
Piętro: 0 (parter)
-
Ogródek: tak — 38,77 m²
-
Status: dostępne
Atuty mieszkania i inwestycji:
-
nowoczesna architektura i wysoka jakość wykonania
-
funkcjonalny układ pomieszczeń i duże przeszklenia
-
okna i drzwi o podwyższonej izolacji akustycznej
-
instalacja przygotowana pod montaż klimatyzacji
-
solidne ściany o grubości 12 cm
-
prywatna zielona przestrzeń — duży ogródek
-
strefa fitness oraz sala zabaw dla dzieci
-
komórki lokatorskie, boks rowerowy i rowerownie
-
instalacja pod ładowanie samochodów elektrycznych
-
paczkomat na terenie inwestycji
-
aż 1,7 ha zagospodarowanego terenu wspólnego
Lokalizacja
Mieszkanie zlokalizowane jest w cenionej i zielonej części Wrocławia — tuż obok rozległego parku miejskiego, zapewniającego możliwość codziennych spacerów i aktywnego wypoczynku. Okolica doskonale skomunikowana, z pełnym zapleczem usługowym i edukacyjnym.
Zainteresowanych zapraszam do kontaktu i na prezentację:
Justyna, N-Home Nieruchomości
884 707 192
justyna@n-home.pl
Zapewniamy kompleksowe wsparcie przy zakupie: doradztwo kredytowe, pomoc przy wykończeniu mieszkania i atrakcyjne rabaty w marketach budowlanych.
Ogłoszenie nie stanowi oferty handlowej w rozumieniu art. 66 §1 Kodeksu cywilnego.