Obiekt na sprzedaż
2 249 000 zł
332 m2










1 / 10
Szczegóły ogłoszenia
- Symbol oferty NHM-BS-36794
- Typ oferty obiekt na sprzedaż
- Cena 2 249 000 zł
- Charakterystyka mieszkania 331.54 m2
- Budynek rok budowy: 1910
- Media Woda: jest; Kanalizacja: tak; Prąd: jest; Gaz: jest
- Dojazd asfalt
- Działka częściowo zagospodarowana, płaska, nieregularny
- Otoczenie zabudowa mieszana
Lokalizacja
- Adres dolnośląskie, Wrocław, Psie Pole
Opis nieruchomości
Na sprzedaż działka budowlana o powierzchni 745 m², zlokalizowana przy ul. Miłoszyckiej we Wrocławiu (Swojczyce).
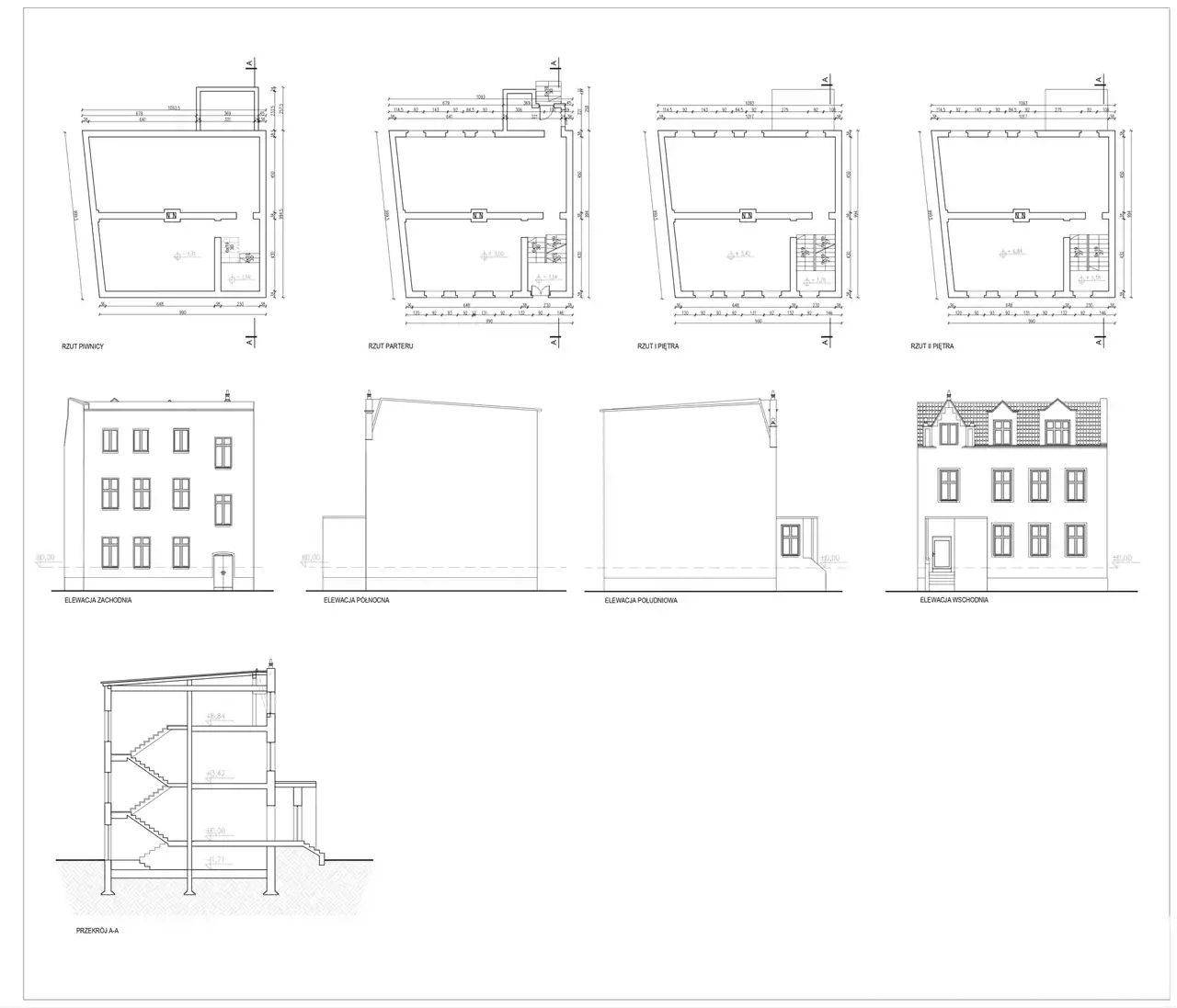
Nieruchomość zabudowana jest kamienicą wielorodzinną wpisaną do Gminnej Ewidencji Zabytków – obecny właściciel rozpoczął prace przygotowawcze do projektu inwestycyjnego: wykonano nowe stropy oraz zabezpieczenie budynku.
Oferta obejmuje gotowy projekt przebudowy i aranżacji 6 lokali mieszkalnych (1- i 2-pokojowych) o łącznym PUM 241,9 m².
• Wykonane nowe stropy w konstrukcji gęstożebrowej
• Możliwość realizacji inwestycji – 6 mieszkań (metraże od 27 do 49 m²)
• Media w drodze: prąd, woda, kanalizacja + możliwość podłączenia gazu
• Dojazd bezpośrednio z drogi publicznej
• Obowiązujący MPZP – zabudowa mieszkaniowa
• Alternatywnie: możliwość dopasowania inwestycji do innej koncepcji po uzgodnieniach z konserwatorem
• Doskonała opcja do stworzenia kamienicy butikowej – produktu premium z wyższą marżą sprzedażową
14,4 m × 40,3 m × 10,3 m × 35,7 m × 20,3 m × 13,9 m
(kształt umożliwia wygodne planowanie inwestycji)
Idealne rozwiązanie dla inwestora!
Koncepcja gwarantuje wysoką stopę zwrotu — gotowy projekt + wysoki popyt na małe mieszkania we Wrocławiu.
Oferujemy również szeroki zakres usług obsługi projektów inwestycyjnych.
Prezentowana oferta nie stanowi oferty handlowej w rozumieniu Art. 66 §1 Kodeksu Cywilnego. Dane mają charakter informacyjny i mogą ulec zmianie.
Nieruchomość zabudowana jest kamienicą wielorodzinną wpisaną do Gminnej Ewidencji Zabytków – obecny właściciel rozpoczął prace przygotowawcze do projektu inwestycyjnego: wykonano nowe stropy oraz zabezpieczenie budynku.
Oferta obejmuje gotowy projekt przebudowy i aranżacji 6 lokali mieszkalnych (1- i 2-pokojowych) o łącznym PUM 241,9 m².
Najważniejsze atuty nieruchomości
• Gotowy projekt budowlany (2024) – etap uzgodnień z konserwatorem• Wykonane nowe stropy w konstrukcji gęstożebrowej
• Możliwość realizacji inwestycji – 6 mieszkań (metraże od 27 do 49 m²)
• Media w drodze: prąd, woda, kanalizacja + możliwość podłączenia gazu
• Dojazd bezpośrednio z drogi publicznej
• Obowiązujący MPZP – zabudowa mieszkaniowa
• Alternatywnie: możliwość dopasowania inwestycji do innej koncepcji po uzgodnieniach z konserwatorem
• Doskonała opcja do stworzenia kamienicy butikowej – produktu premium z wyższą marżą sprzedażową
Lokalizacja – Swojczyce
Szybko rozwijająca się część Wrocławia — w sąsiedztwie powstały inwestycje deweloperskie, m.in. Olimpia Port. Trwa budowa tramwaju na Swojczyce, co dodatkowo zwiększy potencjał inwestycyjny i atrakcyjność lokalizacji.Wymiary działki
Przybliżone:14,4 m × 40,3 m × 10,3 m × 35,7 m × 20,3 m × 13,9 m
(kształt umożliwia wygodne planowanie inwestycji)
Idealne rozwiązanie dla inwestora!
Koncepcja gwarantuje wysoką stopę zwrotu — gotowy projekt + wysoki popyt na małe mieszkania we Wrocławiu.
Dodatkowe wsparcie
Przy zakupie oferujemy pomoc przy uzyskaniu finansowania inwestycyjnego oraz możliwość współpracy z rekomendowanymi wykonawcami.Oferujemy również szeroki zakres usług obsługi projektów inwestycyjnych.
Prezentowana oferta nie stanowi oferty handlowej w rozumieniu Art. 66 §1 Kodeksu Cywilnego. Dane mają charakter informacyjny i mogą ulec zmianie.
Nota prawna
Opis oferty zawarty na stronie internetowej sporządzany jest na podstawie oględzin nieruchomości oraz informacji uzyskanych od właściciela, może podlegać aktualizacji i nie stanowi oferty określonej w art. 66 i następnych K.C.
Kalkulator kredytowy
Formularz kontaktowy