Lokal na sprzedaż
1 100 000 zł
11 828 m2






1 / 6
Szczegóły ogłoszenia
- Symbol oferty ABC-LS-97233
- Typ oferty lokal na sprzedaż
- Cena 1 100 000 zł
- Charakterystyka mieszkania 11828 m2
Lokalizacja
- Adres wielkopolskie, pilski, Wysoka
Opis nieruchomości
Oferujemy lokal użytkowy wraz z dużą działką.
Obszar nieruchomości to 1,1828 ha. Całość działki jest ogrodzona.
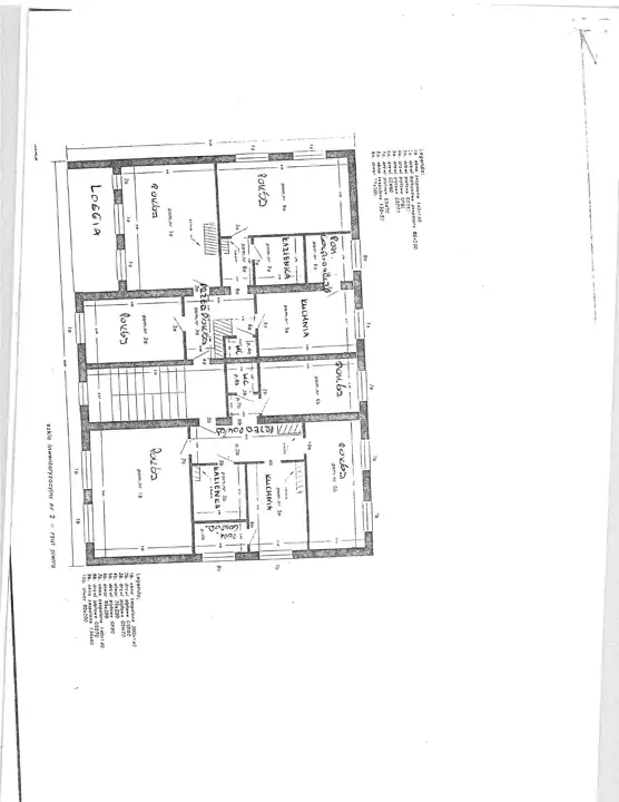
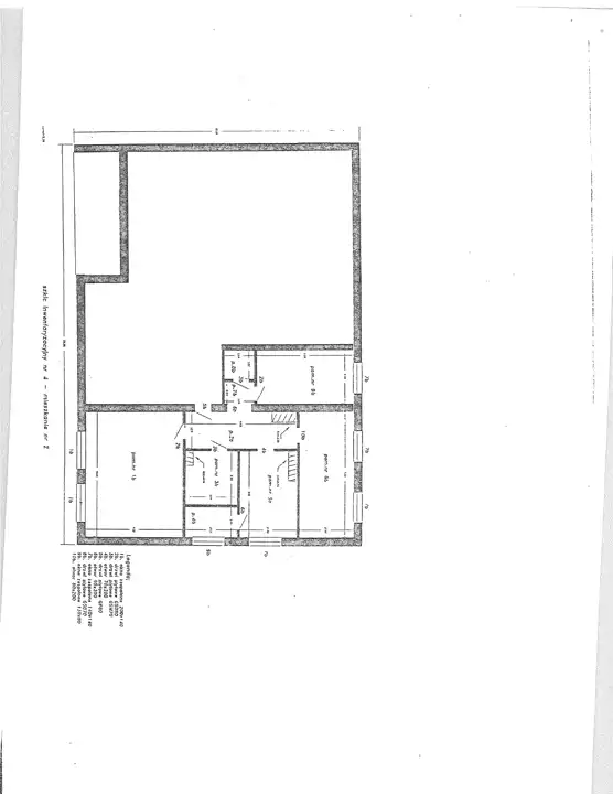
Lokal użytkowy to budynek o powierzchni zabudowy 238,1m2:
1. parter o łącznej powierzchni użytkowej 144,9 m2
2. piętro:
- mieszkanie nr 1 o powierzchni użytkowej 84,8 m2 składające się z 3 pokoi, kuchni, łazienki, wc, przedpokoju, pomieszczenie gospodarczego oraz loggia. Do mieszkania przynależna jest piwnica - 16m2.
- mieszkanie nr 2 o powierzchni użytkowej 72,4m2 składające się z 3 pokoi, kuchni, łazienki, wc, przedpokoju, pomieszczenia gospodarczego. Do mieszkania przynależna jest piwnica 14,6m2.
W piwnicy dodatkowe wspólne pomieszczenie o powierzchni 16,5 m2.
Z tyłu budynku dobudowane pomieszczenie wchodzące w skład części wolnej parteru.
Łączna kubatura budynku 1950m3.
Do budynku prowadzi droga utwardzona. Nieruchomość posiada następujące urządzenia infrastruktury technicznej: energia elektryczna, wodociąg, kanalizacja i gaz.
Na działce znajduje się również budynek garażowy o powierzchni zabudowy 75,6 m2, na który składają się 3 garaże.
ZAPRASZAMY NA PREZENTACJĘ !!!
BEZPŁATNA POMOC w uzyskaniu kredytu !!!
Dane opisu nieruchomości podane są przez zamawiającego.
Powyższy opis ma charakter informacyjny i nie stanowi oferty w rozumieniu przepisów Kodeksu Cywilnego. Wszelkie prawa zastrzeżone!
Opis oraz zdjęcia są własnością biura.
Kopiowanie, powielanie, wykorzystywanie zdjęć i opisu bez zgody autora zabronione.
Obszar nieruchomości to 1,1828 ha. Całość działki jest ogrodzona.
Lokal użytkowy to budynek o powierzchni zabudowy 238,1m2:
1. parter o łącznej powierzchni użytkowej 144,9 m2
2. piętro:
- mieszkanie nr 1 o powierzchni użytkowej 84,8 m2 składające się z 3 pokoi, kuchni, łazienki, wc, przedpokoju, pomieszczenie gospodarczego oraz loggia. Do mieszkania przynależna jest piwnica - 16m2.
- mieszkanie nr 2 o powierzchni użytkowej 72,4m2 składające się z 3 pokoi, kuchni, łazienki, wc, przedpokoju, pomieszczenia gospodarczego. Do mieszkania przynależna jest piwnica 14,6m2.
W piwnicy dodatkowe wspólne pomieszczenie o powierzchni 16,5 m2.
Z tyłu budynku dobudowane pomieszczenie wchodzące w skład części wolnej parteru.
Łączna kubatura budynku 1950m3.
Do budynku prowadzi droga utwardzona. Nieruchomość posiada następujące urządzenia infrastruktury technicznej: energia elektryczna, wodociąg, kanalizacja i gaz.
Na działce znajduje się również budynek garażowy o powierzchni zabudowy 75,6 m2, na który składają się 3 garaże.
ZAPRASZAMY NA PREZENTACJĘ !!!
BEZPŁATNA POMOC w uzyskaniu kredytu !!!
Powyższy opis ma charakter informacyjny i nie stanowi oferty w rozumieniu przepisów Kodeksu Cywilnego. Wszelkie prawa zastrzeżone!
Opis oraz zdjęcia są własnością biura.
Kopiowanie, powielanie, wykorzystywanie zdjęć i opisu bez zgody autora zabronione.
Nota prawna
Opis oferty zawarty na stronie internetowej sporządzany jest na podstawie oględzin nieruchomości oraz informacji uzyskanych od właściciela, może podlegać aktualizacji i nie stanowi oferty określonej w art. 66 i następnych K.C.
Kalkulator kredytowy
Formularz kontaktowy