Działka na sprzedaż
300 000 zł
3 000 m2





1 / 5
Szczegóły ogłoszenia
- Symbol oferty DPO-GS-1288
- Typ oferty działka na sprzedaż
- Cena 300 000 zł
- Charakterystyka mieszkania 3000 m2
- Media Woda: tak - miejska; Prąd: na działce; Gaz: na działce
- Bezpieczeństwo ogrodzenie działki: częściowo ogrodzona
- Działka częściowo zagospodarowana, płaska, prostokąt
Lokalizacja
- Adres mazowieckie, Żabia Wola, Słubica-Wieś
Opis nieruchomości
Oferta działki siedliskowej z mediami i prawomocnym pozwoleniem na budowę domu jednorodzinnego.
Przedstawiamy atrakcyjną działkę o powierzchni 3000 m², położoną w sielskiej części miejscowości Słubica Wieś, gmina Żabia Wola.
Nieruchomość znajduje się w drugiej linii zabudowy od ulicy Słonecznej.
Charakterystyka nieruchomości:
Komunikacja:
Przedstawiamy atrakcyjną działkę o powierzchni 3000 m², położoną w sielskiej części miejscowości Słubica Wieś, gmina Żabia Wola.
Nieruchomość znajduje się w drugiej linii zabudowy od ulicy Słonecznej.
Charakterystyka nieruchomości:
- Kształt: prostokąt 62 x 38 m,
- Wjazd bezpośredni od ul.Słonecznej, asfaltowej, gminnej (wjazd - droga dojazdowa wliczona w powierzchnię działki ).
- spokojna, sielska i zielona okolica , w sąsiedztwie stare i nowe zabudowania.
- obok przystanek autobusowy
- mały sklep spożywczy ok. 500 mb
- gaz wykonane przyłącze do działki ( skrzynka).
- prąd wykonane przyłącze do działki ( skrzynka).
- wodociąg - przy granicy działki ( przyłącze do wykonania lub studnia).
- światłowód - w drodze przy działce.
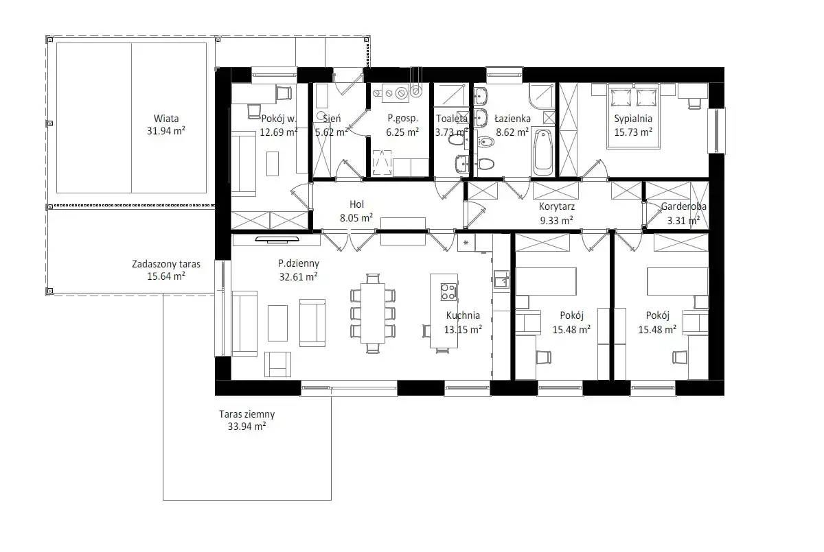
- powierzchnia zabudowy 185,88 m2
- powierzchnia całkowita 185,88 m2
- powierzchnia użytkowa 150,05 m2
- wysokość budynku w kalenicy 6,51 m
- długość x szerokość 16,96 x 10,96 m
- liczba kondygnacji 1 nadziemna
Zestawienie powierzchni według projektu budowlanego;
Część dzienna: 82,10 m2, w tym: pokój dzienny z jadalnią - 32,61 m2, otwarta kuchnia z wyspą - 13,15 m2, hol - 8,05 m2,pokój wielofunkcyjny - 12,69 m2, sień z szafą - 5,62 m2, pomieszczenie gospodarcze - 6,25 m2, toaleta – 3,73 m2.
Część nocna: 67,95 m2, w tym: korytarz z szafami - 9,33 m2,łazienka - 8,62 m2,sypialnia - 15,73 m2, garderoba - 3,31 m2,2 pokoje – 15,48 i 15,48 m2.
Komunikacja:
- Szybki dostęp do Trasy S8 ( Węzeł Nowa Bukówka, wiadukt Oddział), Grodziska (ok. 1 km), co umożliwia wygodne połączenie z Warszawą.
- Blisko komunikacja publiczna: przystanek autobusowy, stacja PKP Grodzisk Mazowiecki lub Jaktorów (14 km), WKD (13 km).
- Punkty usługowe: szkoła ( Józefina, Ojrzanów) przedszkola, inne punkty punkty : Żabia Wola ( 4 km).
- działka częściowo ogrodzona ( ogrodzenie budowlane - tymczasowe)
- drzewa w granicy działki ( ładne i duże topole, które dodają uroku i klimatu)
- na działce posadowiony garaż z własnym zasilaniem fotowoltaicznym ( baza pod prowadzenie budowy).
Nota prawna
Opis oferty zawarty na stronie internetowej sporządzany jest na podstawie oględzin nieruchomości oraz informacji uzyskanych od właściciela, może podlegać aktualizacji i nie stanowi oferty określonej w art. 66 i następnych K.C.
Kalkulator kredytowy
Formularz kontaktowy