Działka na sprzedaż
1 050 000 zł
3 000 m2





























1 / 29
Szczegóły ogłoszenia
- Symbol oferty DNX-GS-29906
- Typ oferty działka na sprzedaż
- Cena 1 050 000 zł
- Charakterystyka mieszkania 3000 m2
- Dojazd asfalt
- Działka lekko nachylona, prostokąt
Lokalizacja
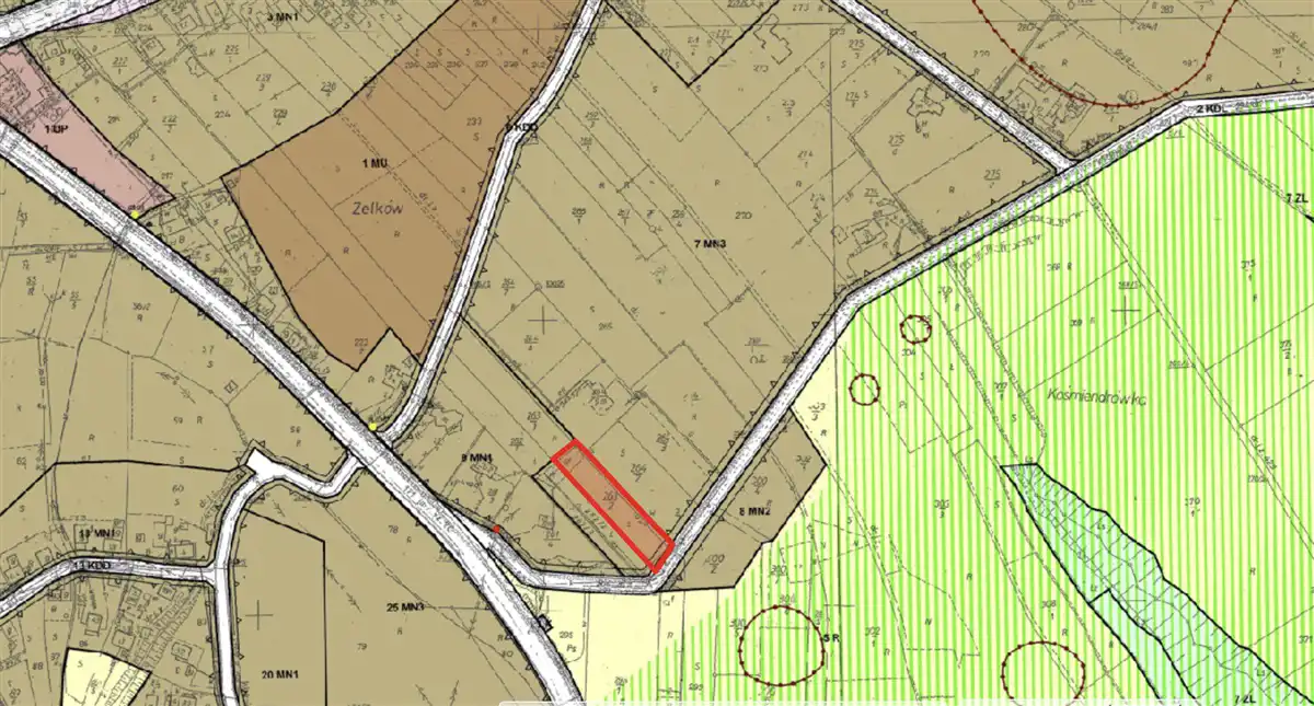
- Adres małopolskie, Zabierzów, Zelków
Opis nieruchomości
W ofercie do sprzedaży wyjątkowa, widokowa, budowlana działka o powierzchni 30 ar, położona w Zelkowie przy ulicy Widokowej.
Działka w kształcie prostokąta, o wymiarach ok. 30 x 100 m. Położona na wzniesieniu, ponad smogiem nad Krakowem, z imponującym widokiem na bliższą i dalszą okolicę. Lekko pochyłe ukształtowanie terenu daje możliwości ciekawej aranżacji. W sąsiedztwie tereny niezabudowane oraz elegancka nowa zabudowa tzw. rezydencjonalna.
Zgodnie z miejscowym planem zagospodarowania przestrzennego teren przeznaczony pod budownictwo jednorodzinne w zabudowie wolnostojącej.
Maksymalny wskaźnik powierzchni zabudowy wynosi 20%, wskaźnik intensywności zabudowy 0,01 - 0,35, minimalny wskaźnik powierzchni biologicznie czynnej 70%.
Media: gaz - w działce, prąd - nad działką (średnie napięcie), woda - jest doprowadzona do działki
kanalizacja - w drodze tuż obok działki.
Atrakcyjna lokalizacja. W niedalekiej odległości sklepy, publiczne i prywatne szkoły i przedszkola. Sprawny dojazd do Krakowa zarówno samochodem jak i komunikacją miejską. Do przystanku autobusowego Zelków Wola 500 metrów. W pobliskim Zabierzowie znajduje się stacja PKP z parkingiem Park & Ride, dojazd pociągiem do centrum Krakowa zajmuje kilkanaście minut.
Niewątpliwym atutem lokalizacji są liczne szlaki turystyki pieszej i rowerowej i pobliskie doliny: Kluczwody, Bolechowicka, Kobylańska, nieco dalej Będkowska, Szklarki i Racławki.
Działka znajduje się około 180 metrów powyżej poziomu Krakowa, co zapewnia nie tylko niezwykłe widoki na okoliczne tereny, ale przede wszystkim zdrowszy mikroklimat. Dzięki podwyższeniu i przewiewnemu ukształtowaniu terenu, powietrze tutaj jest wyraźnie czystsze niż w dolinie krakowskiej. To idealna lokalizacja dla tych, którzy marzą o domu w otoczeniu zieleni i z dala od miejskiego smogu – a jednocześnie z szybkim dojazdem do centrum Krakowa.
Zapraszam po szczegóły oferty i na prezentację!
Oferta na wyłączność, dostępna tylko w naszym biurze.
Działka w kształcie prostokąta, o wymiarach ok. 30 x 100 m. Położona na wzniesieniu, ponad smogiem nad Krakowem, z imponującym widokiem na bliższą i dalszą okolicę. Lekko pochyłe ukształtowanie terenu daje możliwości ciekawej aranżacji. W sąsiedztwie tereny niezabudowane oraz elegancka nowa zabudowa tzw. rezydencjonalna.
Zgodnie z miejscowym planem zagospodarowania przestrzennego teren przeznaczony pod budownictwo jednorodzinne w zabudowie wolnostojącej.
Maksymalny wskaźnik powierzchni zabudowy wynosi 20%, wskaźnik intensywności zabudowy 0,01 - 0,35, minimalny wskaźnik powierzchni biologicznie czynnej 70%.
Media: gaz - w działce, prąd - nad działką (średnie napięcie), woda - jest doprowadzona do działki
kanalizacja - w drodze tuż obok działki.
Atrakcyjna lokalizacja. W niedalekiej odległości sklepy, publiczne i prywatne szkoły i przedszkola. Sprawny dojazd do Krakowa zarówno samochodem jak i komunikacją miejską. Do przystanku autobusowego Zelków Wola 500 metrów. W pobliskim Zabierzowie znajduje się stacja PKP z parkingiem Park & Ride, dojazd pociągiem do centrum Krakowa zajmuje kilkanaście minut.
Niewątpliwym atutem lokalizacji są liczne szlaki turystyki pieszej i rowerowej i pobliskie doliny: Kluczwody, Bolechowicka, Kobylańska, nieco dalej Będkowska, Szklarki i Racławki.
Działka znajduje się około 180 metrów powyżej poziomu Krakowa, co zapewnia nie tylko niezwykłe widoki na okoliczne tereny, ale przede wszystkim zdrowszy mikroklimat. Dzięki podwyższeniu i przewiewnemu ukształtowaniu terenu, powietrze tutaj jest wyraźnie czystsze niż w dolinie krakowskiej. To idealna lokalizacja dla tych, którzy marzą o domu w otoczeniu zieleni i z dala od miejskiego smogu – a jednocześnie z szybkim dojazdem do centrum Krakowa.
Zapraszam po szczegóły oferty i na prezentację!
Nota prawna
Opis oferty zawarty na stronie internetowej sporządzany jest na podstawie oględzin nieruchomości oraz informacji uzyskanych od właściciela, może podlegać aktualizacji i nie stanowi oferty określonej w art. 66 i następnych K.C.
Kalkulator kredytowy
Formularz kontaktowy