Obiekt na sprzedaż












Szczegóły ogłoszenia
- Symbol oferty PAC-BS-8025
- Typ oferty obiekt na sprzedaż
- Cena 3 800 000 zł
- Charakterystyka mieszkania 950 m2
- Budynek rok budowy: 2021
- Media Woda: jest; Kanalizacja: tak; Prąd: jest; Gaz: jest
- Miejsce parkingowe Tak
- Dojazd ASFALTOWA
- Otoczenie zabudowa jednorodzinna
Lokalizacja
- Adres małopolskie, Zabierzów, Balice
Opis nieruchomości
Do sprzedaży budynek usługowo-biurowy, dwupiętrowy, w miejscowości Balice gm. Zabierzów. Budynek o pow. całkowitej 950 m2, pow. użytkowej 866,35, zlokalizowany na działce o pow. 30 arów. W MPZP działka oznaczona jako MNU - tereny zabudowy mieszkaniowo-usługowej. Nieruchomość znajduje się bezpośrednio przy drodze gminnej asfaltowej. Budynek wybudowany z przeznaczeniem pod cichą produkcję, sklep internetowy, hurtownię lub inne. Dojazd do nieruchomości pojazdami do 7t na odcinku 300m.
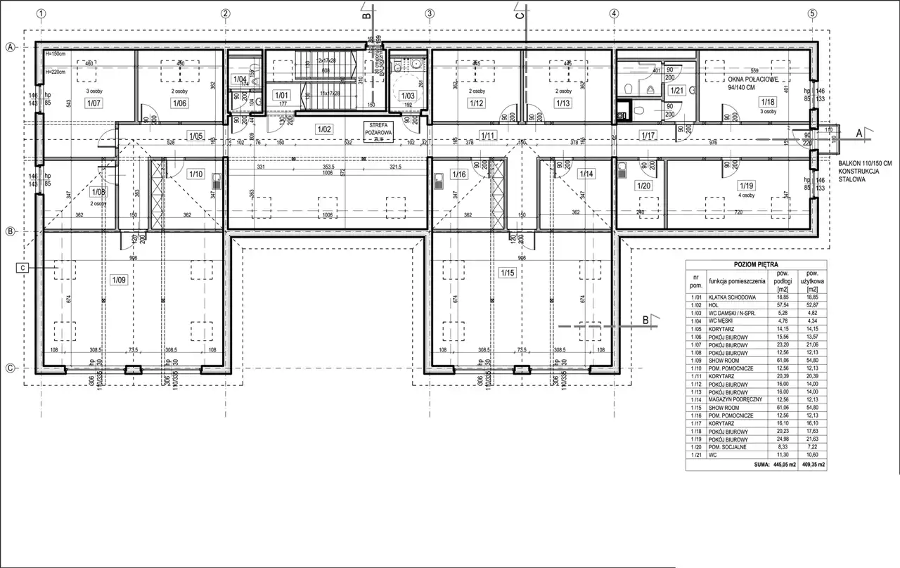
Rozkład pomieszczeń:
Parter o pow. 457 m2: wiatrołap, hol ze schodami, pom. socjalne, pom. pomocnicze, WC damski / dla osób niepełnosprawnych, WC męski, schowek pod schodami, dwa pom. magazynowe, garaż dwustanowiskowy, pom. techniczne.
Piętro o pow. 409,35 m2: kl. schodowa, hol, WC damski / dla osób niepełnosprawnych, WC męski, 3 korytarze, 9 pom. biurowych, dwa pom. pomocnicze, magazyn podręczny, pom. socjalne, WC.
- fundamenty beton konstrukcyjny + stal,
- ściany murowane bloczek beton komórkowy,
- stropy i schody żelbetowe,
- konstrukcja dachu drewniana,
- dach pokryty blachą na rąbek,
- okna połaciowe fakro / velux
- stolarka drzwiowa i okienna PCV
- bramy garażowe wiśniowski / hormann
- elewacja styropian + tyn zewnętrzny
- woda, gaz, kanalizacja, prąd doprowadzone do budynku.
Istnieje możliwość doprowadzenia do stanu deweloperskiego. Nieruchomość położona w bardzo dobrej lokalizacji w bliskiej odległości obwodnica oraz autostrada A4.
Media: kanalizacja, woda, prąd, gaz.
Cena: 3.800.000 zł netto + VAT (23%)
Serdecznie polecamy i zachęcamy do bezpłatnej prezentacji !!! Więcej podobnych ofert na naszej stronie www.pacanowscy.pl Kontakt do opiekuna oferty: 500-702-305 Michał Sibiga