Działka na sprzedaż
1 500 000 zł
1 016 m2

















1 / 17
Szczegóły ogłoszenia
- Symbol oferty BOS-GS-5486
- Typ oferty działka na sprzedaż
- Cena 1 500 000 zł
- Charakterystyka mieszkania 1016 m2
- Media Woda: tak - miejska; Kanalizacja: miejska; Prąd: jest; Gaz: jest
- Dojazd kostka brukowa
- Działka częściowo zagospodarowana
- Otoczenie centrum miasta
Lokalizacja
- Adres dolnośląskie, ząbkowicki, Ząbkowice Śląskie
Opis nieruchomości
Rozpoczęta budowa mieszkaniowo - usługowa.
Na sprzedaż nieruchomość położona w centrum Ząbkowic Śląskich, przy ul. Bonifratrów 3, w odległości 200 m od Rynku.
Działka o powierzchni 1016 mkw zabudowana budynkiem w trakcie rozbudowy i adaptacji na cele usługowo mieszkalne.
Budynek dwukondygnacyjny o planowanej powierzchni użytkowej 447,87 mkw.
Wydane pozwolenie budowlane na przebudowę i rozbudowę obiektu na cele usługowo-mieszkalne.
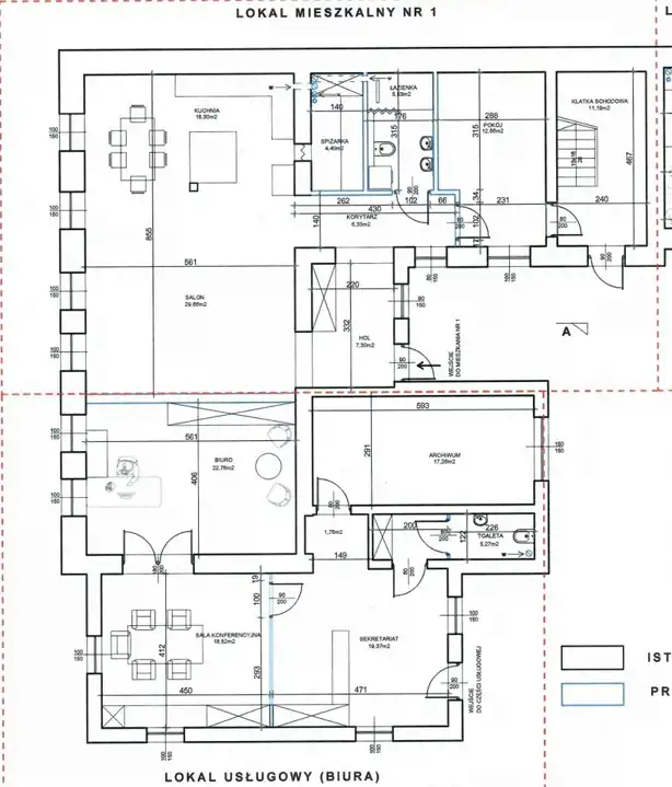
Możliwość zmiany projektu budowlanego, obecny przewiduje: lokal usługowy o powierzchni 84,98 mkw, lokal mieszkalny o powierzchni 232,44 mkw, lokal mieszkalny o powierzchni 43,36 mkw, lokal mieszkalny o powierzchni 43,95 mkw, lokal mieszkalny o powierzchni 43,14 mkw.
Przewidziany parking na terenie posesji.
Prace już wykonane na podstawie wydanego pozwolenia budowalnego: konstrukcja dachowa (więźba, dachówki ceramiczne), rozbudowa o część o powierzchni ok 123 mkw, roboty ziemne i izolacje przyziemia – w 80 %.
Przyjęty sposób ogrzewania: kotły gazowe w każdym z mieszkań/lokali.
Budynek wykonany z cegły, wykonana dobudówka z pustaka ceramicznego.
Dostępne media: prąd, woda, kanalizacja, gaz.
Dostęp bezpośredni do drogi gminnej.
Teren w miejscowym planie zagospodarowania przestrzennego oznaczony jest symbolem A3.26MU1 – teren zabudowy śródmiejskiej w formie pierzejowej. Teren nie jest wpisany do rejestru zabytków ani nie podlega ochronie na podstawie ustaleń planu miejscowego.
Agent prowadzący ofertę – Miłosława Stachowicz, tel. 501 601 835, adres e-mail: biuro@bosco.wroclaw.pl
Zamieszczona oferta nie stanowi oferty w rozumieniu Kodeksu Cywilnego, a dane w niej zawarte mają jedynie charakter informacyjny.
WIĘCEJ OFERT NA www.bosco.nieruchomosci.pl
Na sprzedaż nieruchomość położona w centrum Ząbkowic Śląskich, przy ul. Bonifratrów 3, w odległości 200 m od Rynku.
Działka o powierzchni 1016 mkw zabudowana budynkiem w trakcie rozbudowy i adaptacji na cele usługowo mieszkalne.
Budynek dwukondygnacyjny o planowanej powierzchni użytkowej 447,87 mkw.
Wydane pozwolenie budowlane na przebudowę i rozbudowę obiektu na cele usługowo-mieszkalne.
Możliwość zmiany projektu budowlanego, obecny przewiduje: lokal usługowy o powierzchni 84,98 mkw, lokal mieszkalny o powierzchni 232,44 mkw, lokal mieszkalny o powierzchni 43,36 mkw, lokal mieszkalny o powierzchni 43,95 mkw, lokal mieszkalny o powierzchni 43,14 mkw.
Przewidziany parking na terenie posesji.
Prace już wykonane na podstawie wydanego pozwolenia budowalnego: konstrukcja dachowa (więźba, dachówki ceramiczne), rozbudowa o część o powierzchni ok 123 mkw, roboty ziemne i izolacje przyziemia – w 80 %.
Przyjęty sposób ogrzewania: kotły gazowe w każdym z mieszkań/lokali.
Budynek wykonany z cegły, wykonana dobudówka z pustaka ceramicznego.
Dostępne media: prąd, woda, kanalizacja, gaz.
Dostęp bezpośredni do drogi gminnej.
Teren w miejscowym planie zagospodarowania przestrzennego oznaczony jest symbolem A3.26MU1 – teren zabudowy śródmiejskiej w formie pierzejowej. Teren nie jest wpisany do rejestru zabytków ani nie podlega ochronie na podstawie ustaleń planu miejscowego.
Agent prowadzący ofertę – Miłosława Stachowicz, tel. 501 601 835, adres e-mail: biuro@bosco.wroclaw.pl
Zamieszczona oferta nie stanowi oferty w rozumieniu Kodeksu Cywilnego, a dane w niej zawarte mają jedynie charakter informacyjny.
WIĘCEJ OFERT NA www.bosco.nieruchomosci.pl
Nota prawna
Opis oferty zawarty na stronie internetowej sporządzany jest na podstawie oględzin nieruchomości oraz informacji uzyskanych od właściciela, może podlegać aktualizacji i nie stanowi oferty określonej w art. 66 i następnych K.C.
Kalkulator kredytowy
Formularz kontaktowy