Lokal na wynajem
2 415 zł
81 m2







1 / 7
Szczegóły ogłoszenia
- Symbol oferty VIL-LW-53479
- Typ oferty lokal na wynajem
- Czynsz wynajmu 2 415 zł / miesiąc
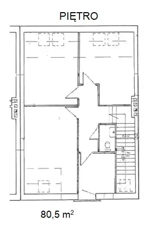
- Charakterystyka mieszkania 80.5 m2
- Budynek BUDYNEK BIUROWY
- Rozkład mieszkania 1p piętro
- Media Ogrzewanie: C.O. GAZOWE
- Dojazd asfalt
- Stan lokalu wysoki standard
Lokalizacja
- Adres łódzkie, Zgierz, Centrum
Opis nieruchomości
BEZ PROWIZJI- Do wynajęcia komfortowy lokal o powierzchni 80,5 m2 w centrum Zgierza. Lokal położony na I piętrze jest doskonałym miejscem na prowadzenie biura, kancelarii, gabinetów, punktu obsługi klienta, etc…
Budynek usytuowany jest bezpośrednio przy ruchliwej ulicy.
Wnętrze o wysokim standardzie wykończenia obejmuje trzy pomieszczenia biurowe, hall, pomieszczenie socjalne i łazienkę.
Lokal wyposażony jest we wszystkie media. Ogrzewanie centralne z pieca gazowego. Instalacja alarmowa. Rozliczenie mediów według odrębnych liczników pomiarowych.
Parkowanie możliwe na przydzielonym miejscu na ogrodzonym parkingu.
W otoczeniu nieruchomości znajdują się liczne urzędy, oddziały banków, kancelarie prawnicze, instytucje finansowe i ubezpieczeniowe, placówki usługowe. Bardzo dobra ekspozycja budynku i dostępność komunikacyjna.
Miesięczny czynsz najmu: 2.415 zł + VAT.
Dodatkowo rozliczane media wg zużycia: energia elektryczna, gaz, woda.
Budynek usytuowany jest bezpośrednio przy ruchliwej ulicy.
Wnętrze o wysokim standardzie wykończenia obejmuje trzy pomieszczenia biurowe, hall, pomieszczenie socjalne i łazienkę.
Lokal wyposażony jest we wszystkie media. Ogrzewanie centralne z pieca gazowego. Instalacja alarmowa. Rozliczenie mediów według odrębnych liczników pomiarowych.
Parkowanie możliwe na przydzielonym miejscu na ogrodzonym parkingu.
W otoczeniu nieruchomości znajdują się liczne urzędy, oddziały banków, kancelarie prawnicze, instytucje finansowe i ubezpieczeniowe, placówki usługowe. Bardzo dobra ekspozycja budynku i dostępność komunikacyjna.
Miesięczny czynsz najmu: 2.415 zł + VAT.
Dodatkowo rozliczane media wg zużycia: energia elektryczna, gaz, woda.
Nota prawna
Opis oferty zawarty na stronie internetowej sporządzany jest na podstawie oględzin nieruchomości oraz informacji uzyskanych od właściciela, może podlegać aktualizacji i nie stanowi oferty określonej w art. 66 i następnych K.C.
Formularz kontaktowy