Mieszkanie na sprzedaż




















Szczegóły ogłoszenia
- Symbol oferty VN1-MS-6702
- Typ oferty mieszkanie na sprzedaż
- Cena 484 590 zł
- Charakterystyka mieszkania 55.7 m2, 3 pokoje
- Budynek apartamentowiec; rok budowy: 2025
- Rozkład mieszkania 2p piętro
- Balkon jest
- Ilość sypialni 3
- Okna PCV
- Plac zabaw Tak
- Stan lokalu deweloperski
- Winda Tak
Lokalizacja
- Adres lubuskie, Zielona Góra m., Zielona Góra
Opis nieruchomości
ZADZWOŃ I UMÓW SIĘ NA BEZPŁATNĄ PREZENTACJĘ!
ZAPRASZAM DO WSPÓŁPRACY ---790-790-861--
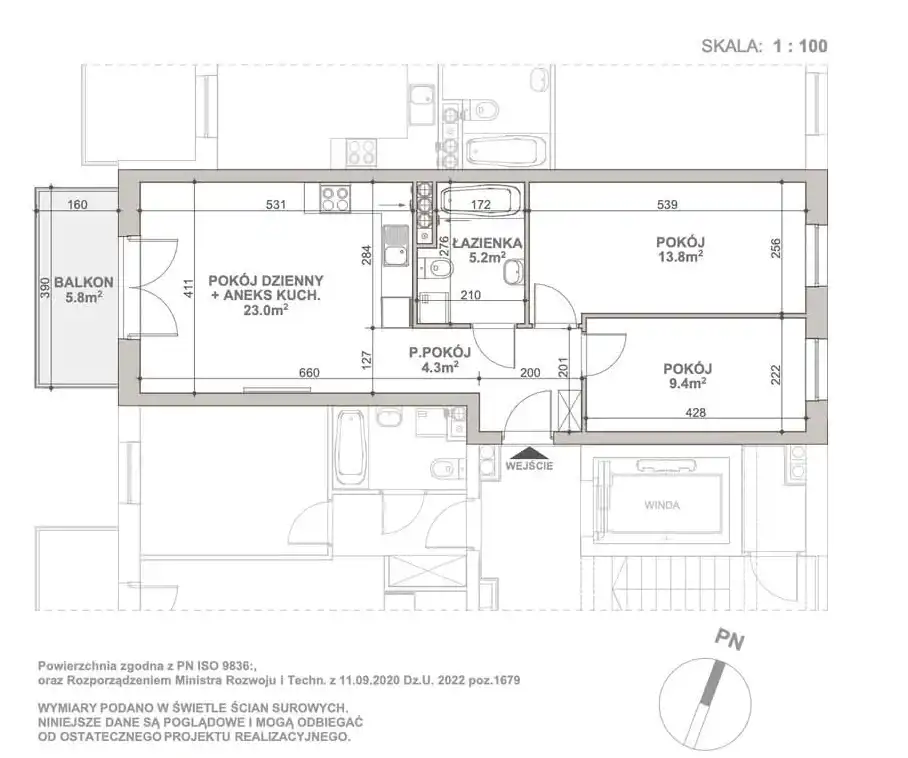
3-POKOJOWE MIESZKANIE Z BALKONEM W NOWYM BUDOWNICTWIE NA OS. CZARKOWO
W sprzedaży przestronne 3-pokojowe mieszkanie sprzedawane w stanie deweloperskim z możliwością wykończenia wnętrza pod klucz. Mieszkanie o powierzchni 55,70 m2 położone na II piętrze nowoczesnego bloku z windą na os. Czarkowo.
Nieruchomość składa się z:
- salonu z aneksem kuchennym (pow. 23 m2) z wyjściem na balkon (5,8 m2)
- pokoju 1 (pow. 13,80 m2)
- pokoju 2 (pow. 9,4 m2)
- łazienki z WC (pow. 5,2 m2)
- komunikacji (pow. 4,30 m2)
Budynek posiada windę cichobieżną, nowoczesną klatkę schodową oraz komórki lokatorskie. Dojazd utwardzoną drogą. Osiedle zostało zaprojektowane zgodnie z najnowszymi trendami z uwzględnieniem nowatorskich rozwiązań.
Osiedle zlokalizowane jest w atrakcyjnej części miasta. Kilka dróg dojazdowych do budynku. W pobliżu sklepy spożywcze, szkoła, przystanek autobusowy. Sporo terenów zielonych.
Więcej danych technicznych oraz zdjęć nieruchomości na naszej stronie nr oferty 6702
Zainteresowała Cię ta oferta? Nie trać czasu, zadzwoń!
Zapraszam na prezentację 790-790-861 lub 600-181-433 biuro 68-455-50-44
*** BEZPŁATNIE pomagamy przy kredycie w ofercie mamy ponad 21 banków
*** Nie jest to oferta w rozumieniu KC.
*** Serdecznie zapraszamy do naszego biura: Zielona Góra Al. Konstytucji 3 Maja 15
*** Nasze biuro jest bezpieczne dla klienta posiadamy licencje nr 9994 nadaną przez Ministra Infrastruktury oraz obowiązkowe OC!