Mieszkanie na sprzedaż











Szczegóły ogłoszenia
- Symbol oferty VN1-MS-6725
- Typ oferty mieszkanie na sprzedaż
- Cena 640 540 zł
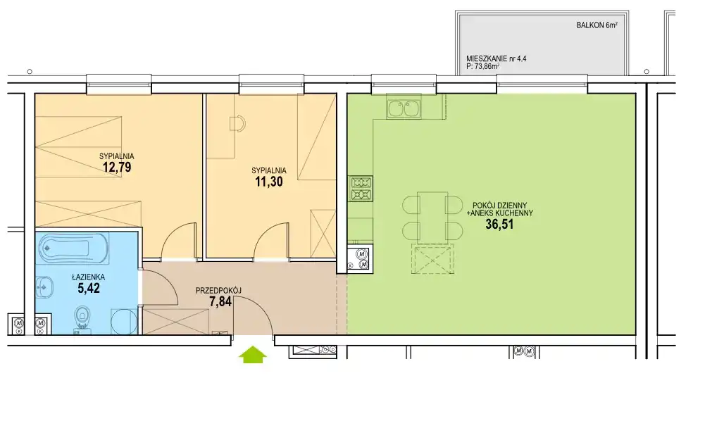
- Charakterystyka mieszkania 73.71 m2, 3 pokoje
- Budynek blok; rok budowy: 2025
- Rozkład mieszkania 3p piętro
- Balkon jest
- Ilość sypialni 2
- Okna PCV
- Stan lokalu deweloperski
- Technologia budowlana tradycyjna murowana
- Winda Tak
Lokalizacja
- Adres lubuskie, Zielona Góra, os. Czarkowo
Opis nieruchomości
ZADZWOŃ I UMÓW SIĘ NA BEZPŁATNĄ PREZENTACJĘ ----790-790-861---
JESTEŚMY BEZPOŚREDNIM BIUREM SPRZEDAŻY - BRAK KOSZTÓW POŚREDNICTWA
PRZYTULNE 3-POKOJOWE MIESZKANIE Z BALKONEM W NOWYM BUDYNKU
Nieruchomość o powierzchni 73,71 m2, usytuowana jest na III piętrze nowoczesnego bloku z cichobieżną windą. Mieszkanie składa się z salonu z aneksem kuchennym o pow. 35,57mkw z wyjściem na balkon, pokoju o pow. 12,77mkw, sypialni o pow. 11,30mkw, łazienki z WC o pow. 5,42mkw oraz holu o pow. 8,65mkw. W cenie mieszkania jest komórka lokatorska o pow. 2,88mkw.
LOKALIZACJA:
Atrakcyjna lokalizacja. Budynek w otoczeniu lasów a jednocześnie blisko do centrum. Idealne miejsce do mieszkania, odpoczynku i spacerów wśród zieleni. W pobliżu przystanki autobusowe oraz atrakcyjna infrastruktura handlowa.
STANDARD ODDANIA:
Mieszkania oddane zostanie do samodzielnego wykończenia w zakresie malowania ścian i sufitów, okładzin ścian i podłóg, drzwi wewnętrznych oraz białego montażu.
OPIS BUDYNKU:
Mieszkanie znajduje się w budynku 1-klatkowym z windą. Na poziomie piwnic komórki lokatorskie oraz hala garażowa.
DLACZEGO WARTO:
Każde mieszkanie wyposażone jest w system indywidualnej automatyki cieplnej (indywidualne stacje mieszkaniowe), który zapewnia oszczędne i efektywne wykorzystanie energii cieplnej. Ciepło na potrzeby ogrzewania i przygotowania c.w.u. jest pobierane dopiero w momencie faktycznego zapotrzebowania na nie. Odpowiedni układ sterowania daje możliwość realizacji funkcji ogrzewania przez cały rok. Dodatkowy czynnik ekonomiczny wynika z faktu regulacji i dostosowania poboru ciepła i przygotowania c.w.u. do bieżącego zapotrzebowania.
Powierzchnia podana na rzucie mieszkania może różnić się minimalnie w opisie podanym przez biuro.
Budynek oddany do użytkowania I/2025 r.
Powierzchnia podana na rzucie mieszkania może różnić się minimalnie w opisie podanym przez biuro.
Więcej zdjęć oraz danych technicznych oferty, na naszej stronie www.villa-nieruchomosci.com nr oferty 6725
W ofercie biura posiadamy inne oferty z rynku pierwotnego zapraszamy do zapoznania się z ofertą na naszej stronie firmowej villa-nieruchomosci.com
Zainteresowała cię oferta? Nie trać czasu, zadzwoń!
Zapraszam na bezpłatną prezentację 790-790-861 biuro 68-455-50-44
*** BEZPŁATNIE Pomagamy przy uzyskaniu kredytu.
*** Więcej ciekawych ofert na stronie firmowej villa nieruchomosci
*** Serdecznie zapraszamy do naszego biura: Zielona Góra Al. Konstytucji 3 Maja 15
*** Nasze biuro jest bezpieczne dla klienta posiadamy licencje nr 9994 nadaną przez Ministra Infrastruktury, oraz obowiązkowe OC.
*** Wszelkie podane przez Pośrednika informacje nie są ofertą w rozumieniu art.66 Kodeksu Cywilnego