Obiekt na wynajem
38 zł
1 460 m2











1 / 11
Szczegóły ogłoszenia
- Symbol oferty ACE-BW-144082
- Typ oferty obiekt na wynajem
- Czynsz wynajmu 38 zł / miesiąc
- Charakterystyka mieszkania 1460 m2
- Budynek rok budowy: 2004
- Media Ogrzewanie: C.O. GAZOWE; Woda: tak - miejska; Kanalizacja: miejska
- Dojazd asfalt
- Otoczenie budynki wielorodzinne
- Winda Tak
Lokalizacja
- Adres mazowieckie, wołomiński, Zielonka
Opis nieruchomości
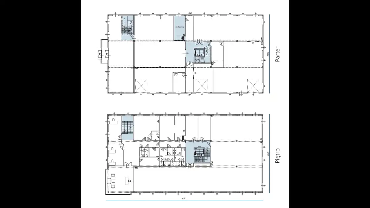
Budynek zlokalizowany w Zielonce, do wynajmu w całości lub w części. Przeznaczony na usługi, biuro, produkcję, dom seniora.
- Powierzchnia użytkowa: 1460 m 2 Wysokość: 10,3 m
- Miejsca parkingowe: 18 szt.
- Przyłącze elektryczne o mocy 29 kW, przyłącze wodociągowe miejskie kanalizacja miejska, ogrzewanie gazowe z przyłącza miejskiego, wentylacja grawitacyjna/mechaniczna, klimatyzacja w części biurowej i części produkcji, Infrastruktura IT, winda towarowa (130x200 cm) o udźwigu 1200 kg, nośność posadzek parteru 1500 kg/m 2, nośność stropów piętra 500 kg/m 2
- 3 bramy wjazdowe na teren, 3 bramy garażowe, panele fotowoltaiczne o mocy 20 kW, monitoring i oświetlenie zewnętrzne
- możliwość podjazdu samochodów ciężarowych
- 2 kondygnacje połączona 2 klatkami schodowymi, jedna wyposażona w windę towarową
- konstrukcja budynku to zewnątrzne sciany konstrukcyjne oraz siatka słupów w rozstawie 6,6 mX6,6 m.
Nota prawna
Opis oferty zawarty na stronie internetowej sporządzany jest na podstawie oględzin nieruchomości oraz informacji uzyskanych od właściciela, może podlegać aktualizacji i nie stanowi oferty określonej w art. 66 i następnych K.C.
Formularz kontaktowy