Lokal na wynajem
5 000 zł
116 m2









1 / 9
Szczegóły ogłoszenia
- Symbol oferty PAC-LW-8894
- Typ oferty lokal na wynajem
- Czynsz wynajmu 5 000 zł / miesiąc
- Charakterystyka mieszkania 115.8 m2
- Budynek wolnostojący; rok budowy: 2025
- Rozkład mieszkania 1p piętro
- Miejsce parkingowe Tak
- Dojazd ASFALTOWA
- Kaucja do uzgodnienia
- Okna PCV 3 szyby, ciepły montaż
- Stan lokalu do adaptacji
Lokalizacja
- Adres małopolskie, Zielonki, Zielonki
Opis nieruchomości
Do wynajęcia lokal nr 2 o pow. użytkowej 115,8m2 zlokalizowany w miejscowości Zielonki, gm. Zielonki, w prestiżowej dzielnicy Marszowiec - nieopodal granicy Krakowa! Lokal usytuowany na poddaszu w nowoczesnym 2-kondygnacyjnym budynku usługowym. Budynek wolnostojący o pow. użytkowej 465,4m2, składający się z czterech lokali. Nieruchomość z własnymi miejscami postojowymi, położona bezpośrednio przy bardzo ruchliwej ulicy. Lokal w stanie deweloperskim.
Media: prąd, woda, gaz, kanalizacja.
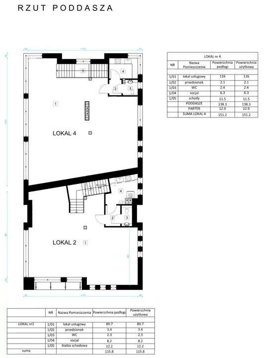
Rozkład pomieszczeń:
poddasze: lokal usługowy (89,7m2), przedsionek (3,4m2), WC (2,3m2), socjal (8,2m2), klatka schodowa (12,2m2) - razem 115,8m2
LOKALIZACJA
Świetna lokalizacja! Ewidencyjna granica m. Krakowa ok. 1km, centrum Zielonek 1km. Nieopodal: przystanek MPK, sklepy, restauracje, park, żłobek, myjnia samochodowa, szkoła językowa.
Cena: 5.000 zł / mc. + media wg zużycia.
Serdecznie polecamy i zachęcamy do bezpłatnej prezentacji !!! Więcej podobnych ofert na naszej stronie www.pacanowscy.pl Kontakt do opiekuna oferty: 503-604-108 Mieszko Pacanowski
Media: prąd, woda, gaz, kanalizacja.
Rozkład pomieszczeń:
poddasze: lokal usługowy (89,7m2), przedsionek (3,4m2), WC (2,3m2), socjal (8,2m2), klatka schodowa (12,2m2) - razem 115,8m2
LOKALIZACJA
Świetna lokalizacja! Ewidencyjna granica m. Krakowa ok. 1km, centrum Zielonek 1km. Nieopodal: przystanek MPK, sklepy, restauracje, park, żłobek, myjnia samochodowa, szkoła językowa.
Cena: 5.000 zł / mc. + media wg zużycia.
Serdecznie polecamy i zachęcamy do bezpłatnej prezentacji !!! Więcej podobnych ofert na naszej stronie www.pacanowscy.pl Kontakt do opiekuna oferty: 503-604-108 Mieszko Pacanowski
Nota prawna
Opis oferty zawarty na stronie internetowej sporządzany jest na podstawie oględzin nieruchomości oraz informacji uzyskanych od właściciela, może podlegać aktualizacji i nie stanowi oferty określonej w art. 66 i następnych K.C.
Formularz kontaktowy