Lokal na wynajem
7 000 zł
104 m2





1 / 5
Szczegóły ogłoszenia
- Symbol oferty PAC-LW-8892
- Typ oferty lokal na wynajem
- Czynsz wynajmu 7 000 zł / miesiąc
- Charakterystyka mieszkania 104.1 m2
- Budynek wolnostojący; rok budowy: 2025
- Rozkład mieszkania parter piętro
- Miejsce parkingowe Tak
- Dojazd ASFALTOWA
- Kaucja do uzgodnienia
- Okna PCV 3 szyby, ciepły montaż
- Stan lokalu do adaptacji
- Umeblowanie brak
Lokalizacja
- Adres małopolskie, Zielonki, Zielonki
Opis nieruchomości
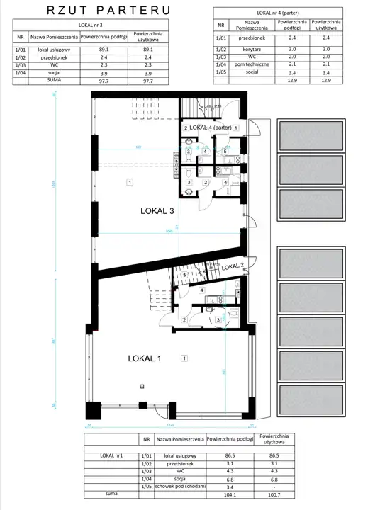
Do wynajęcia lokal nr 1 o pow. użytkowej 100,7m2, pow. podłóg 104,1m2 zlokalizowany w miejscowości Zielonki, gm. Zielonki, w prestiżowej dzielnicy Marszowiec - nieopodal granicy Krakowa! Lokal usytuowany na parterze w nowoczesnym 2-kondygnacyjnym budynku usługowym. Budynek wolnostojący o pow. użytkowej 465,4m2, składający się z czterech lokali. Nieruchomość z własnymi miejscami postojowymi, położona bezpośrednio przy bardzo ruchliwej ulicy. Lokal w stanie deweloperskim.
Media: prąd, woda, gaz, kanalizacja.
Rozkład pomieszczeń:
parter: lokal usługowy (86,5m2), przedsionek (3,1m2), WC (4,3m2), socjal (6,8m2) - razem 100,7m2
LOKALIZACJA
Świetna lokalizacja! Ewidencyjna granica m. Krakowa ok. 1km, centrum Zielonek 1km. Nieopodal: przystanek MPK, sklepy, restauracje, park, żłobek, myjnia samochodowa, szkoła językowa.
Cena: 7.000 zł / mc. + media wg zużycia.
Serdecznie polecamy i zachęcamy do bezpłatnej prezentacji !!! Więcej podobnych ofert na naszej stronie www.pacanowscy.pl Kontakt do opiekuna oferty: 503-604-108 Mieszko Pacanowski
Media: prąd, woda, gaz, kanalizacja.
Rozkład pomieszczeń:
parter: lokal usługowy (86,5m2), przedsionek (3,1m2), WC (4,3m2), socjal (6,8m2) - razem 100,7m2
LOKALIZACJA
Świetna lokalizacja! Ewidencyjna granica m. Krakowa ok. 1km, centrum Zielonek 1km. Nieopodal: przystanek MPK, sklepy, restauracje, park, żłobek, myjnia samochodowa, szkoła językowa.
Cena: 7.000 zł / mc. + media wg zużycia.
Serdecznie polecamy i zachęcamy do bezpłatnej prezentacji !!! Więcej podobnych ofert na naszej stronie www.pacanowscy.pl Kontakt do opiekuna oferty: 503-604-108 Mieszko Pacanowski
Nota prawna
Opis oferty zawarty na stronie internetowej sporządzany jest na podstawie oględzin nieruchomości oraz informacji uzyskanych od właściciela, może podlegać aktualizacji i nie stanowi oferty określonej w art. 66 i następnych K.C.
Formularz kontaktowy