Mieszkanie na sprzedaż








Szczegóły ogłoszenia
- Symbol oferty PAC-MS-9151
- Typ oferty mieszkanie na sprzedaż
- Cena 599 000 zł
- Charakterystyka mieszkania 61.54 m2, 3 pokoje
- Budynek bliźniak
- Rozkład mieszkania parter piętro
- Media Ogrzewanie: C.O. GAZOWE; Woda: jest; Gaz: jest
- Dojazd ASFALTOWA
- Garaż miejsce postojowe
- Ilość sypialni 2
- Instalacje ELEKTRYCZNA, WODNA, GAZOWA
- Okna PCV 3 szyby, ciepły montaż
- Otoczenie zabudowa jednorodzinna
- Technologia budowlana beton komórkowy
Lokalizacja
- Adres małopolskie, Zielonki, Brzozówka Korzkiewska
Opis nieruchomości
0% PROWIZJI OD KUPUJĄCEGO!!!
ZAPRASZAMY NA WURTUALNY SPACER PO MIESZKANIU
https://panoramy.galactica.pl/virgo/400460
Do sprzedania trzypokojowe mieszkanie zlokalizowane na parterze w nowo wybudowanym budynku w miejscowości Brzozówka gm. Zielonki. Mieszkanie o pow. 61,54m2 z ogródkiem o pow. 51m2. Budynek, w którym znajduje się lokal położony jest w II linii zabudowy, dojazd drogą wojewódzką, następnie drogą wewnętrzną. Osiedle kameralne i oświetlone i zamknięte. Nieruchomość położona na płaskiej, dobrze nasłonecznionej działce w sąsiedztwie nowych domów jednorodzinnych oraz działek niezabudowanych.
Cena obejmuje jedno miejsce postojowe - istnieje możliwość zakupu dodatkowych miejsc postojowych.
Media: prąd, woda, gaz, kanalizacja.
Mieszkanie sprzedawane w stanie deweloperskim obejmującym:
- fundamenty żelbetowe,
- podstawowy materiał budowlany: beton komórkowy,
- posadzka: beton,
- strop drewniany,
- dach: blachodachówka,
- okna PCV,
- rynny PCV,
- drzwi antywłamaniowe,
- balkony: francuskie, balustrady: metalowe,
- ogrzewanie podłogowe,
- opaska, taras; podjazd i podejścia: kostka brukowa,
- ogródek,
- instalacje: wod-kan, C.O. gazowe, elektryczne,
- piec gazowy,
- światłowód,
- działka ogrodzona i oświetlona.
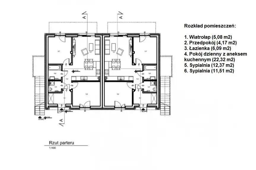
Rozkład pomieszczeń:
- wiatrołap (5,08m2), przedpokój (4,17m2), łazienka (6,09m2), pokój dzienny z aneksem kuchennym (22,32m2), sypialnia (12,37m2), sypialnia (11,51m2).
Dogodna lokalizacja z dala od miejskiego zgiełku przy bezproblemowej i szybkiej komunikacji z Krakowem (ok. 10km do granic miasta). Przedszkole (550m2), restauracja (700m), sklep (750m), dentysta (800m), przystanek MPK (800m), ośrodek zdrowia (1.1km), żabka, fryzjer (1,1km), apteka (1,2km). Nieruchomość położona w sąsiedztwie nowych domów jednorodzinnych oraz działek niezabudowanych.
PLANOWANY ODBIÓR: I KW 2026r.
Cena: 599.000 zł brutto W CENIE 1 MIEJSCE POSTOJOWE.
Cena za dodatkowe miejsce postojowe: 15.000 zł.
Kupujący nie płaci 2% podatku PCC.
Serdecznie polecamy i zachęcamy do bezpłatnej prezentacji !!! Więcej podobnych ofert na naszej stronie www.pacanowscy.pl Kontakt do opiekuna oferty: 505-304-807 Łukasz Koczwara