Mieszkanie na sprzedaż











Szczegóły ogłoszenia
- Symbol oferty PAC-MS-8660
- Typ oferty mieszkanie na sprzedaż
- Cena 709 000 zł
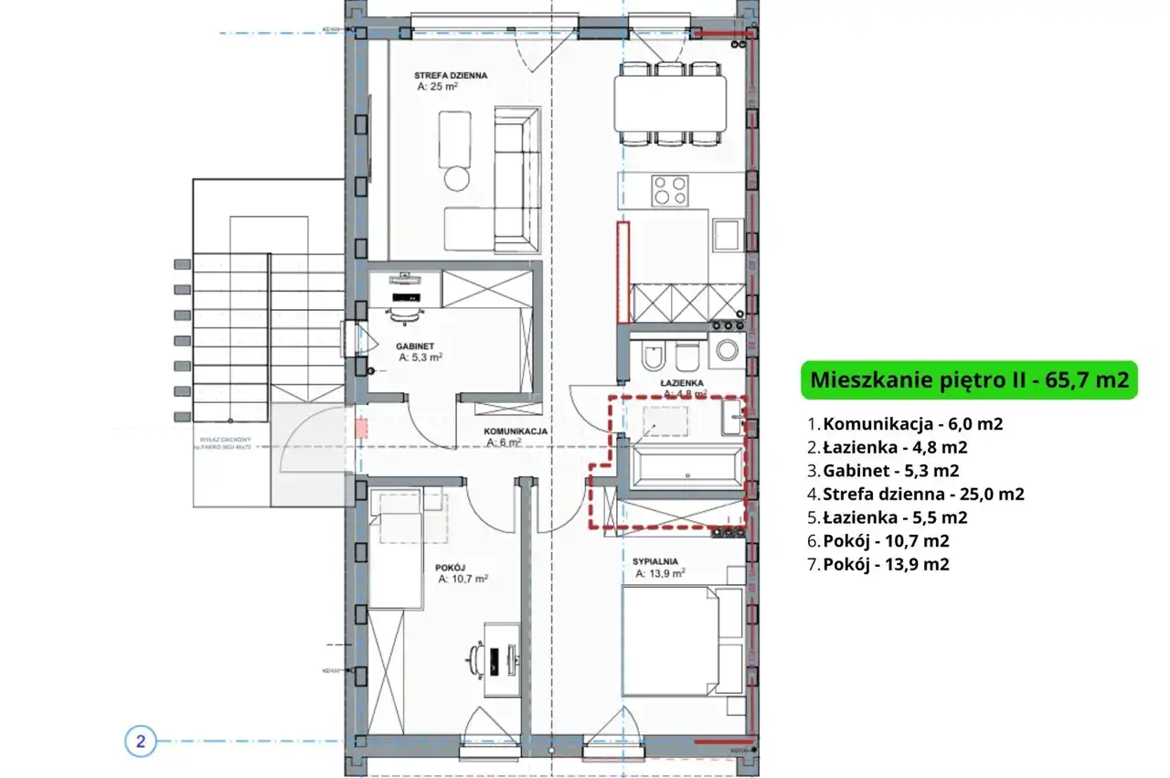
- Charakterystyka mieszkania 65.7 m2, 4 pokoje
- Budynek apartamentowiec; rok budowy: 2025
- Rozkład mieszkania 2p piętro
- Media Ogrzewanie: C.O. GAZOWE; Woda: tak; Gaz: jest
- Garaż miejsce postojowe
- Ilość sypialni 3
- Okna PCV 3 szyby, ciepły montaż
- Otoczenie zabudowa jednorodzinna
- Stan lokalu deweloperski
- Technologia budowlana tradycyjna
Lokalizacja
- Adres małopolskie, krakowski, Zielonki
Opis nieruchomości
!0 % PROWIZJI - BRAK DODATKOWYCH KOSZTÓW!
MIEJSCE POSTOJOWE W CENIE!
Do sprzedania atrakcyjne czteropokojowe, jednopoziomowe mieszkanie zlokalizowane na nowo budowanym osiedlu w Krakowie-Prądniku Białym, rejon Witkowice. Mieszkanie o pow. 65,7m2m2 usytuowane na II piętrze w 3-kondygnacyjnym budynku w zabudowie bliźniaczej. Nieruchomość położona na nowoczesnym, zamkniętym osiedlu, na które składa się 6 budynków mieszkalnych w zabudowie bliźniaczej. Teren inwestycji w pełni zagospodarowany. Brak czynszu administracyjnego.
Media: prąd, woda, gaz, szambo + przygotowana instalacja pod kanalizację.
Mieszkanie sprzedawane w stanie deweloperskim obejmującym:
- podstawowy materiał budowlany: bloczki silikatowe,
- podwójna izolacja stropu, z wełną mineralną 30 cm oraz płytą GK,
- okna PCV 3-szybowe, gwarantujące doskonałą izolację termiczną i akustyczną,
- parapety zew.: stalowe,
- elewacja: tynk silikonowy,
- budynki ocieplone: styropian o gr. 20cm,
- drzwi wejściowe antywłamaniowe,
- pokrycie dachu: blachodachówka na rąbek,
- tynki wew.: maszynowe, gipsowe, utwardzane,
- ogrzewanie: gazowe, piec dwufunkcyjny,
- ogrzewanie podłogowe,
- zamontowane kasety pod rolety automatyczne,
- teren osiedla ogrodzony,
- miejsca parkingowe oraz dojścia do mieszkań wyłożone kostką betonową,
- teren wokół budynków wyrównany, obsiany trawą,
- możliwość postawienia komórki lokatorskiej na terenie osiedla,
- możliwość dokupienia dodatkowego miejsca postojowego pod wiatą samochodową,
- światłowód.
komunikacja (6m2), łazienka (4,8m2), gabinet (5,3m2), strefa dzienna (25m2), łazienka (5,5m2), pokój (10,7m2), pokój (13,9m2) - razem 65,7m2
LOKALIZACJA
Nieruchomość usytuowana w spokojnej okolicy w sąsiedztwie luźnej zabudowy domów jednorodzinnych. Dobra komunikacja z resztą miasta - przystanek MPK zaledwie 270m dalej. Nieopodal: żłobek, sklep, myjnia samochodowa, szkoła językowa, paczkomat (350m), gabinet kosmetyczny, klub fitness, fizjoterapia, Park Leśny Witkowice (2,5km), szkoła, kościół, gabinety lekarskie (2,8km). Ponadto komunikację usprawnia Północna Obwodnica Krakowa - ok. 2,5km
PLANOWANY ODBIÓR: czerwiec 2026 r.
Cena: 709.000 zł. Kupujący nie płaci 2 % podatku PCC.
Cena dodatkowego miejsca postojowego: 50.000 zł.
Serdecznie polecamy i zachęcamy do bezpłatnej prezentacji !!! Więcej podobnych ofert na naszej stronie www.pacanowscy.pl Kontakt do opiekuna oferty: 503-604-108 Mieszko Pacanowski