Mieszkanie na sprzedaż





























Szczegóły ogłoszenia
- Symbol oferty CPE-MS-14403
- Typ oferty mieszkanie na sprzedaż
- Cena 442 000 zł
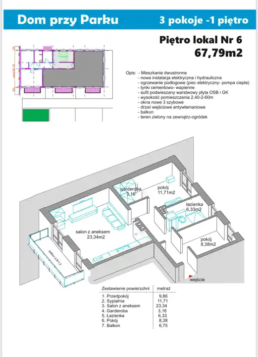
- Charakterystyka mieszkania 67.79 m2, 2 pokoje
- Budynek apartamentowiec
- Rozkład mieszkania parter piętro
- Media Ogrzewanie: pompa ciepła; Woda: jest; Gaz: brak
- Balkon jest
- Dojazd asfalt
- Ilość sypialni 2
- Instalacje nowe
- Okna PCV 3 szyby, ciepły montaż
- Otoczenie działki zabudowane
- Stan lokalu deweloperski
Lokalizacja
- Adres dolnośląskie, Złotoryja
Opis nieruchomości
UWAGA !!! DLA DWÓCH PIERWSZYCH KLIENTÓW OGRÓDEK - GRATIS !!!
NOWA INWESTYCJA W ZŁOTORYI !!! NOWE MIESZKANIA DEWELOPERSKIE Z OGRODAMI.
Przedstawiam Państwu ofertę sprzedaży lokali mieszkalnych w stanie deweloperskim jakie są realizowane w nowej inwestycji która powstaje w Złotoryi w okolicy galerii S1. Doskonała lokalizacja, zielona okolica a także estetycznie zaprojektowana przestrzeń zarówno samych mieszkań jaki budynku i części wspólnych powodują, że będą one idealnym do życia miejscem dla wszystkich, którzy poszukują własnego apartamentu z ogrodem w bliskiej odległości od centrum miasta i dobrym dostępem do autostrady A4 lub wyjazdu w kierunku Legnicy czy Chojnowa.
Budynek w którym powstają lokale będzie całkowicie zmodernizowany i przebudowany zgodnie z nowymi standardami, wymogami p.poż., izolacyjności i termomodernizacji. Na każdej z kondygnacji powstaną po trzy apartamenty dwu i trzy -pokojowe, z prywatnymi ogródkami dla mieszkańców. Mieszkania na parterze będą miały bezpośrednie wyjście z salonu na ogród. Lokale z piętra poza dostępem do prywatnych ogrodów będę miały spore balkony od tyłu budynku. Dodatkowo poza ogrodami, mieszkańcy będą mieli do dyspozycji wspólną przestrzeń na terenie nieruchomości gdzie przyszła wspólnota mieszkaniowa będzie mogła wykonać sobie np. wiatę piknikową, miejsce na grilla itp.
Budynek będzie całkowicie zmodernizowany i odnowiony. Została wykonana już izolacja fundamentów i drenaż, ocieplono dach i wykonano obróbki blacharskie. Zamontowane zostały już wysokiej jakości okna 3-szybowe zarówno w lokalach jaki i w częściach wspólnych budynku. Szeroka i jasna klatka schodowa w wydzielonym na parterze wspólnym pomieszczeniem gospodarczym do przechowywania np. rowerów lub wózków dziecięcych. W obiekcie przygotowano również instalację pod monitoring na zewnątrz jaki w na klatce schodowej.
W tylnej części terenu wykonane będzie nowe ogrodzenie betonowe terenu. Teren zamknięty do dyspozycji mieszkańców, zamykany bramą wjazdową.
Standard wykończenia lokali (stan deweloperski):
- na ścianach tynki zacierane na gładko,
- podłogi betonowe izolowane styropianem, wylewki anhydrytowe,
- sufity podwieszane (płyta OSB + GK + wełna mineralna 5cm i folia paroizolacyjna),
- ściany wewnętrzne ceramiczne i suporex,
- okna pcv 3-szybowe (na parterze dodatkowo zamontowane są sterowane elektrycznie rolety),
- drzwi zewnętrzne antywłamaniowe,
- w kuchni jak i w łazience przygotowane wszelkie przełącza pod armaturę,
- nowa instalacja elektryczna i antenowa,
- ogrzewanie pompą ciepła, podłogowe z czajnikami temperatury.
LOKAL NUMER 5
Lokal położony na 1 piętrze budynku, składający się z przestronnego salonu z jadalnią, dwóch sypialni, łazienki oraz hallu. Powierzchnia użytkowa 67,79m2. Duży balkon oraz ogródek do wyłącznego korzystania (+30 tyś zł).
Cena 442.000zł
Cena do uzgodnienia.
Ceny i parametry pozostałych mieszkań:
Parter: rolety, parter i wyjście bezpośrednio na ogródek.
• lokal Nr 1- 3 pokoje (58,30m2) - narożne z największym ogródkiem - 420 tys + 40 tys Ogródek - SPRZEDANE !!!
• Lokal Nr 2 - 2 pokoje (50,22m2) - środkowe - 350 tys + 30 tys Ogródek
• Lokal Nr 3 - 2 pokoje (58,32m2) - 401 tys + 20 tys Ogródek
Piętro: balkony + Ogródek
• lokal Nr 4 - 3 pokoje (62,72m2) - 410 tys + 30 tys Ogródek - SPRZEDANE !!!
• Lokal Nr 5 - 2 pokoje (52,67m2) - 345 tys + 30 tys Ogródek - SPRZEDANE !!!
• Lokal Nr 6 -3 pokoje (67,79m2) - 442 tys + 30 tys Ogródek
Pierwsze lokale gotowe do odbioru będą w IV kwartale 2025 r.
Zapraszam na prezentację i do rezerwacji ofert !!!!
Oglądanie jedynie po wcześniejszym umówieniu się telefonicznym.