Lokal na sprzedaż
2 800 000 zł
219 m2











































1 / 43
Szczegóły ogłoszenia
- Symbol oferty BS3-LS-312715
- Typ oferty lokal na sprzedaż
- Cena 2 800 000 zł
- Charakterystyka mieszkania 219 m2, BARDZO WYSOKI STANDARD
- Budynek kamienica; rok budowy: 1888
- Rozkład mieszkania parter piętro
- Media Ogrzewanie: centralne; Woda: jest
- Dojazd ASFALTOWA
- Działka Zagospodarowana, kwadrat
- Instalacje wymienione
- Otoczenie centrum miasta
- Stan lokalu wysoki standard
Lokalizacja
- Adres śląskie, Żywiec, Centrum
Opis nieruchomości
*zdjęcia należą do właściciela oferty
NA SPRZEDAŻ DWIE KONDYGNACJE KAMIENICY W ŻYWCU NA RYNKU GŁÓWNYM PO GENERALNYM REMONCIE W 2023 ROKU
LOKALIZACJA I OTOCZENIE NIERUCHOMOŚCI
Przedmiotowy budynek usytuowany jest w samym centrum miasta, przy płycie Rynku, pośród zwartej zabudowy mieszkalnej wielorodzinnej i usługowej.
Rynek w Żywcu charakteryzuje się zwartą zabudową kamienic, które powstały po wielkim pożarze w 1857 roku.
W pobliżu oprócz zabudowy mieszkalnej wielorodzinnej znajdują się punkty gastronomiczne, hotele, aparthotele, kluby, usługi, muzea, kościoły.
Nieruchomość znajduje się w odległości ok. 1 km od wjazdu na drogę wojewódzką nr 946, łączącą się z drogą ekspresową S1.
Najbliższe przystanki komunikacji miejskiej znajdują się w odległości ok. 300 m od nieruchomości. Dostęp do nieruchomości bezpośrednio z drogi.
Dojazd odbywa się drogą asfaltową. Położenie przedmiotowej nieruchomości jest bardzo dobre.
Budynek narożny z końca XIX wieku (1888 rok). Technologia tradycyjna- murowana.
Na przedmiotowych działkach posadowiona jest kamienica o funkcji mieszkalno – usługowej .Budynek zajmuje cały obszar działek.
Przedmiotowa nieruchomość położona jest w Żywcu pod adresem Rynek 7 . Żywiec Śródmieście to centralna dzielnica miasta Żywca, położona w Kotlinie Żywieckiej, nad rzekami Sołą i Koszarawą oraz Jeziorem Żywieckim. W Śródmieściu znajduje się Rynek, będący historycznym centrum miasta, oraz większość zabytków i ważnych instytucji publicznych.
Nieruchomość posiada bardzo dobry dostęp do sieci uzbrojenia terenu.
Do działki doprowadzony jest wodociąg, kanalizacja, energia elektryczna, ciepłociąg oraz sieć telekomunikacyjna.
− Budynek objęty ochroną konserwatorską, wpisany do Rejestru Zabytków
NA SPRZEDAŻ :
Dostęp do lokalu na poziomie 0 zapewniają dwa niezależne wejścia – jedno prowadzące bezpośrednio do
restauracji, drugie do części mieszkalnej. Klatka schodowa prowadząca do tej części wykończona została w
naturalnym kamieniu i uzupełniona kutą, stalową balustradą.
Dzięki wysokiemu standardowi wykończenia, wyjątkowemu klimatowi i przemyślanemu układowi funkcjonalnemu,
lokal ten stanowi gotową do użytku przestrzeń gastronomiczną, bez konieczności przeprowadzania dodatkowych
prac adaptacyjnych. Jest to propozycja atrakcyjna zarówno pod względem estetycznym, jak i inwestycyjnym.
Lokal użytkowy- restauracja:
Lokal użytkowy przeznaczony pod działalność gastronomiczną obejmuje dwie kondygnacje – piwnicę oraz parter
(poziom 0) – i stanowi spójną, elegancką przestrzeń o ponadczasowym charakterze. Został zaprojektowany z
wyjątkową dbałością o detale, z wykorzystaniem materiałów najwyższej klasy, co przekłada się na wysoki poziom
estetyczny, funkcjonalny i technologiczny. Wnętrze harmonijnie łączy historię miejsca z aktualnymi wymaganiami
prowadzenia działalności gastronomicznej – uwzględnia nowoczesne systemy wentylacyjne, przemyślaną
technologię kuchenną oraz funkcjonalny układ przestrzenny.
Oświetlenie w całym lokalu zaprojektowano z użyciem produktów renomowanych marek: Aromas (Hiszpania),
AQUFORM i Chors (Polska), co zapewnia odpowiednie podkreślenie poszczególnych stref i nadaje wnętrzu
elegancji. Strefa toalet została wykończona płytkami ceramicznymi na ścianach i podłodze. Zastosowano armaturę firmy GROHE oraz wolnostojące umywalki ceramiczne włoskiego producenta Art Ceram.
Winiarnia wyposażona jest w stalowe regały z drewnianą bazą wykonane na zamówienie, zamknięta
przeszklonymi drzwiami w stalowej ramie. Klimatyzację dedykowaną do zastosowania w chłodniach na wino
zapewnia urządzenie włoskiej firmy ZANOTTI.
Lokal wyposażono w pełną infrastrukturę instalacyjną: system wentylacji mechanicznej nawiewno-wywiewnej z
przygotowaniem pod okap gastronomiczny, klimatyzację, pełne okablowanie elektryczne i sieciowe,
energooszczędne oświetlenie, system alarmowy i monitoring.
Poziom 0 posiada zróżnicowane wykończenie ścian: malowane powierzchnie, fragmenty z odsłoniętą cegłą, tapetę
materiałową oraz panele z lakierowanego MDF w hallu. Parapety wykonano z kamienia naturalnego. Posadzkę
stanowi również kamień naturalny, nadający przestrzeni szlachetny i trwały charakter. Sufit to efektowna
kompozycja podwieszonych belek drewnianych na tle surowego betonu w kolorze czarnym. Oświetlenie jest
dedykowane, o charakterze akustycznym, zapewniającym komfort akustyczny i odpowiednią atmosferę.
Wyposażenie lokalu na poziomie PARTERU obejmuje m.in.:
• drewnianą komodę barową z blatem kamiennym, wyposażoną w lodówkę na wino, zlew, podejście pod
instalację do piwa oraz duży ekspres kolbowy do kawy. Nad komodą znajdują się stałe półki wiszące na
alkohole;
• tapicerowane meble w różnych konfiguracjach oraz drewniane stoły;
• wylewkę wykończoną płytkami ceramicznymi, z kamiennym blatem i zamontowanymi lampami
grzewczymi.
Poziom 0 mieści także pełnowymiarową, otwartą kuchnię, wyposażoną zgodnie z obowiązującymi normami
sanitarno-technicznymi oraz funkcjonalne zaplecze magazynowo- technologiczne, obsługujące procesy kuchenne.
Przestrzeń została zaplanowana w sposób umożliwiający płynną i ergonomiczną pracę personelu.
W części piwnicznej zachowano i zakonserwowano oryginalne sklepienia ceglane, które podkreślają unikalny
klimat przestrzeni. Ściany wykończono częściowo odkrytą cegłą i kamieniem oraz tapetą winylową, odporną na
uszkodzenia. Posadzki pokryto płytkami ceramicznymi o wysokiej trwałości.
Stan techniczny nieruchomości jest bardzo dobry – zarówno elementy wykończeniowe, jak i instalacje, są utrzymywane w bardzo dobrej kondycji dzięki systematycznej, przemyślanej gospodarce remontowej.
Istnieje możliwość zakupu całościowo wyposażonej restauracji leżącej na dwóch kondygnacjach w cenie 2,8 mln zł netto .
Możliwość zakupu lokalu bez VAT-u ze stawkę zerową.
Umowa na wyłączność
Prezentacja nieruchomości po podpisaniu umowy Pośrednictwa .
Kontakt :
Rafał Duda tel. 507 894 500
Bracia Sadurscy Nieruchomości
NA SPRZEDAŻ DWIE KONDYGNACJE KAMIENICY W ŻYWCU NA RYNKU GŁÓWNYM PO GENERALNYM REMONCIE W 2023 ROKU
LOKALIZACJA I OTOCZENIE NIERUCHOMOŚCI
Przedmiotowy budynek usytuowany jest w samym centrum miasta, przy płycie Rynku, pośród zwartej zabudowy mieszkalnej wielorodzinnej i usługowej.
Rynek w Żywcu charakteryzuje się zwartą zabudową kamienic, które powstały po wielkim pożarze w 1857 roku.
W pobliżu oprócz zabudowy mieszkalnej wielorodzinnej znajdują się punkty gastronomiczne, hotele, aparthotele, kluby, usługi, muzea, kościoły.
Nieruchomość znajduje się w odległości ok. 1 km od wjazdu na drogę wojewódzką nr 946, łączącą się z drogą ekspresową S1.
Najbliższe przystanki komunikacji miejskiej znajdują się w odległości ok. 300 m od nieruchomości. Dostęp do nieruchomości bezpośrednio z drogi.
Dojazd odbywa się drogą asfaltową. Położenie przedmiotowej nieruchomości jest bardzo dobre.
Budynek narożny z końca XIX wieku (1888 rok). Technologia tradycyjna- murowana.
Na przedmiotowych działkach posadowiona jest kamienica o funkcji mieszkalno – usługowej .Budynek zajmuje cały obszar działek.
Przedmiotowa nieruchomość położona jest w Żywcu pod adresem Rynek 7 . Żywiec Śródmieście to centralna dzielnica miasta Żywca, położona w Kotlinie Żywieckiej, nad rzekami Sołą i Koszarawą oraz Jeziorem Żywieckim. W Śródmieściu znajduje się Rynek, będący historycznym centrum miasta, oraz większość zabytków i ważnych instytucji publicznych.
Nieruchomość posiada bardzo dobry dostęp do sieci uzbrojenia terenu.
Do działki doprowadzony jest wodociąg, kanalizacja, energia elektryczna, ciepłociąg oraz sieć telekomunikacyjna.
− Budynek objęty ochroną konserwatorską, wpisany do Rejestru Zabytków
NA SPRZEDAŻ :
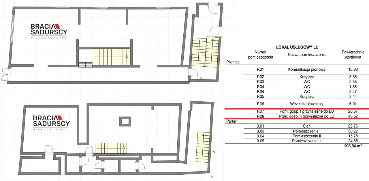
- Kondygnacja -1 - Piwnica gdzie mieści się wyposażona restauracja powierzchni użytkowej 106, 86 m2
- Kondygnacja 1 - parter gdzie mieści się restauracja o powierzchni użytkowej 111,34 m2
Dostęp do lokalu na poziomie 0 zapewniają dwa niezależne wejścia – jedno prowadzące bezpośrednio do
restauracji, drugie do części mieszkalnej. Klatka schodowa prowadząca do tej części wykończona została w
naturalnym kamieniu i uzupełniona kutą, stalową balustradą.
Dzięki wysokiemu standardowi wykończenia, wyjątkowemu klimatowi i przemyślanemu układowi funkcjonalnemu,
lokal ten stanowi gotową do użytku przestrzeń gastronomiczną, bez konieczności przeprowadzania dodatkowych
prac adaptacyjnych. Jest to propozycja atrakcyjna zarówno pod względem estetycznym, jak i inwestycyjnym.
Lokal użytkowy- restauracja:
Lokal użytkowy przeznaczony pod działalność gastronomiczną obejmuje dwie kondygnacje – piwnicę oraz parter
(poziom 0) – i stanowi spójną, elegancką przestrzeń o ponadczasowym charakterze. Został zaprojektowany z
wyjątkową dbałością o detale, z wykorzystaniem materiałów najwyższej klasy, co przekłada się na wysoki poziom
estetyczny, funkcjonalny i technologiczny. Wnętrze harmonijnie łączy historię miejsca z aktualnymi wymaganiami
prowadzenia działalności gastronomicznej – uwzględnia nowoczesne systemy wentylacyjne, przemyślaną
technologię kuchenną oraz funkcjonalny układ przestrzenny.
Oświetlenie w całym lokalu zaprojektowano z użyciem produktów renomowanych marek: Aromas (Hiszpania),
AQUFORM i Chors (Polska), co zapewnia odpowiednie podkreślenie poszczególnych stref i nadaje wnętrzu
elegancji. Strefa toalet została wykończona płytkami ceramicznymi na ścianach i podłodze. Zastosowano armaturę firmy GROHE oraz wolnostojące umywalki ceramiczne włoskiego producenta Art Ceram.
Winiarnia wyposażona jest w stalowe regały z drewnianą bazą wykonane na zamówienie, zamknięta
przeszklonymi drzwiami w stalowej ramie. Klimatyzację dedykowaną do zastosowania w chłodniach na wino
zapewnia urządzenie włoskiej firmy ZANOTTI.
Lokal wyposażono w pełną infrastrukturę instalacyjną: system wentylacji mechanicznej nawiewno-wywiewnej z
przygotowaniem pod okap gastronomiczny, klimatyzację, pełne okablowanie elektryczne i sieciowe,
energooszczędne oświetlenie, system alarmowy i monitoring.
Poziom 0 posiada zróżnicowane wykończenie ścian: malowane powierzchnie, fragmenty z odsłoniętą cegłą, tapetę
materiałową oraz panele z lakierowanego MDF w hallu. Parapety wykonano z kamienia naturalnego. Posadzkę
stanowi również kamień naturalny, nadający przestrzeni szlachetny i trwały charakter. Sufit to efektowna
kompozycja podwieszonych belek drewnianych na tle surowego betonu w kolorze czarnym. Oświetlenie jest
dedykowane, o charakterze akustycznym, zapewniającym komfort akustyczny i odpowiednią atmosferę.
Wyposażenie lokalu na poziomie PARTERU obejmuje m.in.:
• drewnianą komodę barową z blatem kamiennym, wyposażoną w lodówkę na wino, zlew, podejście pod
instalację do piwa oraz duży ekspres kolbowy do kawy. Nad komodą znajdują się stałe półki wiszące na
alkohole;
• tapicerowane meble w różnych konfiguracjach oraz drewniane stoły;
• wylewkę wykończoną płytkami ceramicznymi, z kamiennym blatem i zamontowanymi lampami
grzewczymi.
Poziom 0 mieści także pełnowymiarową, otwartą kuchnię, wyposażoną zgodnie z obowiązującymi normami
sanitarno-technicznymi oraz funkcjonalne zaplecze magazynowo- technologiczne, obsługujące procesy kuchenne.
Przestrzeń została zaplanowana w sposób umożliwiający płynną i ergonomiczną pracę personelu.
W części piwnicznej zachowano i zakonserwowano oryginalne sklepienia ceglane, które podkreślają unikalny
klimat przestrzeni. Ściany wykończono częściowo odkrytą cegłą i kamieniem oraz tapetą winylową, odporną na
uszkodzenia. Posadzki pokryto płytkami ceramicznymi o wysokiej trwałości.
Stan techniczny nieruchomości jest bardzo dobry – zarówno elementy wykończeniowe, jak i instalacje, są utrzymywane w bardzo dobrej kondycji dzięki systematycznej, przemyślanej gospodarce remontowej.
Istnieje możliwość zakupu całościowo wyposażonej restauracji leżącej na dwóch kondygnacjach w cenie 2,8 mln zł netto .
Możliwość zakupu lokalu bez VAT-u ze stawkę zerową.
Umowa na wyłączność
Prezentacja nieruchomości po podpisaniu umowy Pośrednictwa .
Kontakt :
Rafał Duda tel. 507 894 500
Bracia Sadurscy Nieruchomości
Nota prawna
Opis oferty zawarty na stronie internetowej sporządzany jest na podstawie oględzin nieruchomości oraz informacji uzyskanych od właściciela, może podlegać aktualizacji i nie stanowi oferty określonej w art. 66 i następnych K.C.
Kalkulator kredytowy
Formularz kontaktowy