Dom na sprzedaż
2 954 972 zł
131 m2











1 / 11
Szczegóły ogłoszenia
- Symbol oferty PRB-DS-6140
- Typ oferty dom na sprzedaż
- Cena 2 954 972 zł
- Charakterystyka mieszkania 131 m2, 4 pokoje
- Bezpieczeństwo Rolety antywłamaniowe
- Ilość sypialni 3
- Stan lokalu do wprowadzenia
- Stan prawny Własność
Lokalizacja
- Adres Valencia, Alicante, Benidorm
Opis nieruchomości
W pięknym otoczeniu przyrody, na zboczu z widokiem na morze i miasto Benidorm realizowana jest kameralna inwestycja 7 willi wolnostojących oraz 6 willi w zabudowie bliźniaczej.
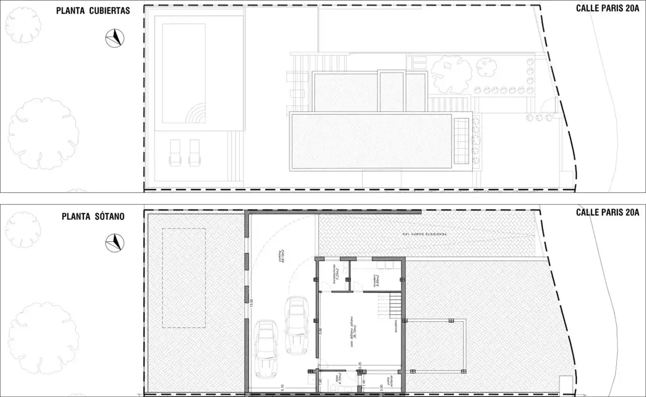
Ta oferta dotyczy willi wolnostojącej.
Na parterze znajduje się połączona przestrzeń salonu i kuchni z jadalnią, jedna sypialnia i łazienka.
Z salonu duże przeszklone drzwi prowadzą na taras, który jest częściowo zadaszony.
Piętro oferuje 2 sypialnie z łazienkami oraz tarasami.
Willa jest podpiwniczona. Znajduje się tam garaż na dwa samochody, toaleta, pralnia, schowek gospodarczy oraz dodatkowe, przestronne pomieszczenie do dowolnego zastosowania.
Działka jest zagospodarowana, z ogródkiem, prywatnym basenem oraz podjazdem na samochód.
Wille są wyposażone w drzwi antywłamaniowe, wewnętrzną stolarkę w kolorze białym, meble kuchenne, AGD marki Bosch (płyta, piekarnik, wyciąg, zmywarka, lodówka). Łazienki są w pełni wykończone, z zastosowaniem białego montażu marki Bosch, armatura w łazienkach do wyboru.
W sypialniach zostały wybudowane garderoby, a w oknach zamontowane elektrycznie sterowane żaluzje.
Ponadto wille są wyposażone w panel solarny, bojler 100l, system odwróconej osmozy do filtrowania wody, centralną klimatyzację z opcją chłodzenia lub grzania.
Odległość od lotniska w Alicante 40 min jazdy.
Ta oferta dotyczy willi wolnostojącej.
Na parterze znajduje się połączona przestrzeń salonu i kuchni z jadalnią, jedna sypialnia i łazienka.
Z salonu duże przeszklone drzwi prowadzą na taras, który jest częściowo zadaszony.
Piętro oferuje 2 sypialnie z łazienkami oraz tarasami.
Willa jest podpiwniczona. Znajduje się tam garaż na dwa samochody, toaleta, pralnia, schowek gospodarczy oraz dodatkowe, przestronne pomieszczenie do dowolnego zastosowania.
Działka jest zagospodarowana, z ogródkiem, prywatnym basenem oraz podjazdem na samochód.
Wille są wyposażone w drzwi antywłamaniowe, wewnętrzną stolarkę w kolorze białym, meble kuchenne, AGD marki Bosch (płyta, piekarnik, wyciąg, zmywarka, lodówka). Łazienki są w pełni wykończone, z zastosowaniem białego montażu marki Bosch, armatura w łazienkach do wyboru.
W sypialniach zostały wybudowane garderoby, a w oknach zamontowane elektrycznie sterowane żaluzje.
Ponadto wille są wyposażone w panel solarny, bojler 100l, system odwróconej osmozy do filtrowania wody, centralną klimatyzację z opcją chłodzenia lub grzania.
Odległość od lotniska w Alicante 40 min jazdy.
Nota prawna
Opis oferty zawarty na stronie internetowej sporządzany jest na podstawie oględzin nieruchomości oraz informacji uzyskanych od właściciela, może podlegać aktualizacji i nie stanowi oferty określonej w art. 66 i następnych K.C.
Kalkulator kredytowy
Formularz kontaktowy