Dom na sprzedaż








Szczegóły ogłoszenia
- Symbol oferty MAK-DS-28105
- Typ oferty dom na sprzedaż
- Cena 875 000 zł
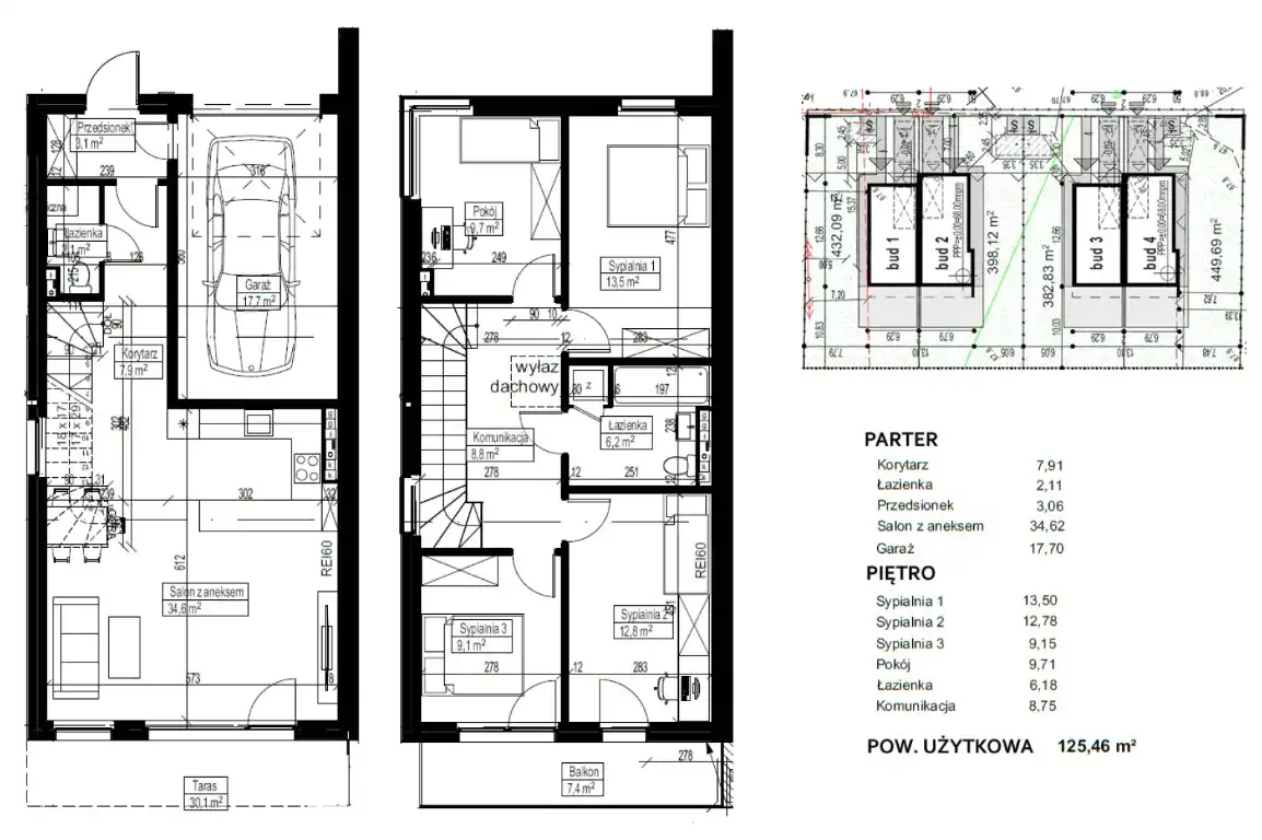
- Charakterystyka mieszkania 125.46 m2, 5 pokoi
- Budynek rok budowy: 2025
- Media Ogrzewanie: pompa ciepła
- Rodzaj domu bliźniak
Lokalizacja
- Adres kujawsko-pomorskie, Białe Błota, Ciele
Opis nieruchomości
Biuro Makler poleca:
Szukasz NOWEGO DEVELOPERSKIEGO domu?
Zależy Ci na cichej okolicy, oraz bliskości terenów zielonych?
Potrzebujesz spokoju od zgiełku miasta, ale z dobrym dojazdem do Centrum Bydgoszczy?
Jeśli TAK to ta oferta jest właśnie dla Ciebie !!
Kupujący nie płaci podatku PCC!! oraz prowizji do biura!!
Przedstawiamy 5 pokojowy dom typu bliźniak o powierzchni 125 m2 na działce o powierzchni 432,09m2 usytuowanym w bliskości pięknych terenów zielonych.
Opis inwestycji:
To nowoczesne osiedle domów typu bliźniak, które oferuje doskonałe rozwiązania dla osób poszukujących harmonii między nowoczesnością a pięknem otaczającej przyrody. Domy, które łączą funkcjonalność z estetyką.
Inwestycja jest zlokalizowana w Cielu w gminie Białe Błota, w sąsiedztwie lasu i obwodnicy Bydgoszczy. To dogodne położenie sprawia, że masz łatwy dostęp do niezbędnych udogodnień oraz cieszysz się spokojem i komfortem życia a jednocześnie szybkim dojazdem do miasta i domu
Priorytetem projektu było stworzenie wysokiej jakości przestrzeni ekonomicznych domów w zabudowie bliźniaczej, uwzględniając walory terenu. Na terenie inwestycji zaplanowana jest budowa 18 budynków o wysokiej estetyce i funkcjonalności Droga wewnętrzna zapewnia łatwy dostęp do budynków, a jednocześnie pozwala zachować maksymalne wielkości działek. Każdy budynek posiadać będzie własny garaż oraz spory ogród.
Każdy budynek zaprojektowany jest tak, aby zapewnić komfortową przestrzeń dla całej rodziny. Indywidualne wejścia prowadzą do garażu wbudowanego w bryłę każdego segmentu, a także miejsca parkingowe na podjeździe. Na parterze znajduje się salon, łazienka, kotłownia oraz garderoba, a na piętrze przestronne pokoje oraz dodatkowa łazienka. Balkon z dwóch pokoi pozwala cieszyć się urokami otaczającej przyrody i zapewnia odrobinę prywatności.
Budynki zostały zaprojektowane w celu uzyskania nowoczesnego wyrazu architektonicznego, który odpowiada obecnym wymogom użytkowym. Elewacje wyróżniają się wyraźnym podziałem na bryły i linie, tworząc spokojną atmosferę i budząc poczucie bezpieczeństwa. Wysoka jakość materiałów budowlanych gwarantuje trwałość i estetykę.
Domy oparte są na tradycyjnym układzie konstrukcyjnym murowanym, wykorzystując bloczki ceramiczne o grubości 24 cm. Stropy i stropodach wykonane są z żelbetu półprefabrykowanego typu Filigran, z ociepleniem styropianem i izolacją papą. Schody żelbetowe oraz stolarka okienna i drzwiowa PCV spełniają najwyższe standardy jakości. Elewacje zostały ocieplone styropianem o grubości 15-20 cm i wykończone tynkiem silikonowym oraz strukturalnym tynkiem dekoracyjnym. Domy są standardowo wyposażone są w instalację fotowoltaiczną o mocy 6kW. Ogrzewanie podłogowe Keller Floor na całej powierzchni domów zasilane pompą ciepła Atlantic Extensa AI Duo R32.
Kliknij " wyślij wiadomość " bądź zadzwoń aby dowiedzieć się więcej!
Zapraszam na prezentację!!
Pełny cennik wszystkich lokali i dodatkowych elementów znajduje się tutaj:
www.ostojaciele.pl