Dom na sprzedaż







Szczegóły ogłoszenia
- Symbol oferty MAK-DS-28970
- Typ oferty dom na sprzedaż
- Cena 900 100 zł
- Charakterystyka mieszkania 128.2 m2, 4 pokoje
- Budynek rok budowy: 2025
- Media Ogrzewanie: pompa ciepła
- Instalacje nowe
- Rodzaj domu jednorodzinny
Lokalizacja
- Adres kujawsko-pomorskie, Białe Błota, Łochowo
Opis nieruchomości
Nowoczesny dom parterowy w Łochowie – wysoki standard, stan deweloperski
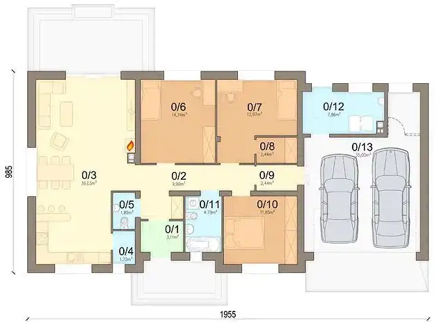
Na sprzedaż funkcjonalny i estetyczny wolnostojący dom parterowy o powierzchni całkowitej 128 m², posadowiony na działce 630 m². Nieruchomość położona jest w spokojnej i kameralnej części Łochowa, co czyni ją idealnym miejscem dla osób ceniących komfort, prywatność oraz nowoczesne technologie.
Układ pomieszczeń
-
przestronny salon z jadalnią oraz otwartą kuchnią
-
praktyczna spiżarnia
-
wyjście na taras z boku budynku poprzez przesuwne, trzyszybowe drzwi (zmiana względem pierwotnego projektu)
Technologia i standard wykonania
-
budynek wzniesiony z bloczków Ytong, ocieplony styropianem fasadowym Austrotherm 18 cm
-
gotowa elewacja – nowoczesny i elegancki wygląd
-
tynki cementowo-wapienne z gładzią, pomalowane na biało
-
posadzki cementowe z izolacją styropianową 18 cm
-
dach dwuspadowy pokryty wysokiej klasy dachówką ceramiczną Meyer Holsen (grafit)
-
trzyszybowe okna PCV Gealan, montowane na taśmach rozprężnych
-
elektryczne rolety zewnętrzne przy wszystkich oknach oraz drzwiach tarasowych
-
antywłamaniowe drzwi wejściowe Wikęd w kolorze grafitowym
-
parapety wewnętrzne z konglomeratu, zewnętrzne z cegły
-
brama garażowa sterowana pilotem
-
podwieszane sufity z ognioodpornych płyt g-k
-
ocieplone poddasze (ekofiber) z wydzielonym pomieszczeniem o wys. ok. 2,2 m
-
stalowe rynny Siba, drewniana podbitka
-
rozprowadzone instalacje: ogrzewanie podłogowe (pompa ciepła), wodno-kanalizacyjna i elektryczna
-
media: prąd, woda, szambo
-
działka ogrodzona z trzech stron
Dodatkowe informacje
-
kupujący zwolniony z podatku PCC 2% – realna oszczędność przy zakupie
-
oferta z rynku pierwotnego
Lokalizacja: Łochowo, gmina Białe Błota, powiat bydgoski
Dom wybudowany w 2025 roku, 4 pokoje, aneks kuchenny, taras, garaż, dojazd drogą utwardzoną.
Zapraszamy na prezentację!