Mieszkanie na sprzedaż
389 000 zł
43 m2


























1 / 26
Szczegóły ogłoszenia
- Symbol oferty AMBS-MS-1261
- Typ oferty mieszkanie na sprzedaż
- Cena 389 000 zł
- Charakterystyka mieszkania 43 m2, 2 pokoje
- Budynek blok; rok budowy: 1968
- Rozkład mieszkania 1p piętro
- Media Ogrzewanie: centralne; Woda: tak - miejska; Gaz: jest
- Balkon loggia
- Czynsz Czynsz letni: 550 zł
- Dojazd asfalt
- Ilość sypialni 1
- Okna PCV
- Otoczenie osiedle
- Stan lokalu do remontu
- Technologia budowlana cegła
Lokalizacja
- Adres podlaskie, Białystok, Mickiewicza
Opis nieruchomości
Zainwestuj w wygodną lokalizację aby korzystać z wygód Śródmieścia!
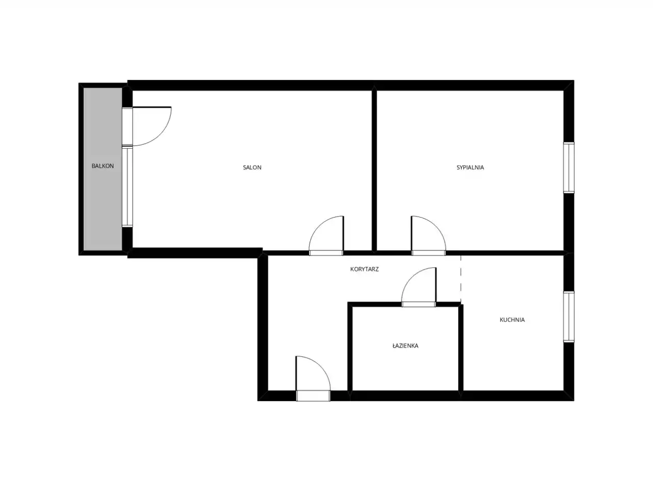
Mieszkanie środkowe, ciepłe i dwustronne. Powierzchnia mieszkalna to 43,00 m2 obejmująca:
Miesięczne opłaty eksploatacyjne wynoszą około 550 złotych.
Prezentujemy Państwu 2- pokojowe mieszkanie zlokalizowane na osiedlu Mickiewicza, w kameralnej zabudowie bloków z cegły przy ul. Słowackiego. Usytuowane na 1. piętrze, z wygodnym rozkładem oraz balkonem typu loggia- idealne jako inwestycja pod wynajem lub do zamieszkania w jednej z najbardziej pożądanych lokalizacji. Wokół ładnie zagospodarowana zieleń, pełna infrastruktura osiedla, sądy, urzędy, uczelnie wyższe, Park Zwierzyniecki, galerie handlowe oraz teatr. Stąd jest wszędzie blisko!
Mieszkanie środkowe, ciepłe i dwustronne. Powierzchnia mieszkalna to 43,00 m2 obejmująca:
- salon z wyjściem na balkon
- sypialnię
- oddzielną kuchnię
- przedpokój
- łazienkę z WC.
Nieruchomość wymagająca remontu z możliwością aranżacji wnętrz od podstaw według indywidualnych potrzeb i oczekiwań. Na podłogach w pokojach dębowy parkiet w klasyczną jodełkę, w kuchni i łazience terakota. Na ścianach tapety w pokojach, w łazience i kuchni glazura. Okna PCV. Do mieszkania przynależy piwnica. Pod blokiem miejsca parkingowe dostępne wyłącznie dla mieszkańców bloku - za szlabanem na pilot. Klatki schodowe po remoncie, blok po termomodernizacji.
Miesięczne opłaty eksploatacyjne wynoszą około 550 złotych.
Polecam szczególnie osobom poszukującym wygodnego mieszkania w Śródmieściu - dla siebie lub pod wynajem.
Zapraszam na prezentacje
Katarzyna Dmitruk
tel. 698 839 380
Ambasada Nieruchomości
Nota prawna
Opis oferty zawarty na stronie internetowej sporządzany jest na podstawie oględzin nieruchomości oraz informacji uzyskanych od właściciela, może podlegać aktualizacji i nie stanowi oferty określonej w art. 66 i następnych K.C.
Kalkulator kredytowy
Formularz kontaktowy