Mieszkanie na sprzedaż
















Szczegóły ogłoszenia
- Symbol oferty AMBS-MS-1234
- Typ oferty mieszkanie na sprzedaż
- Cena 469 000 zł
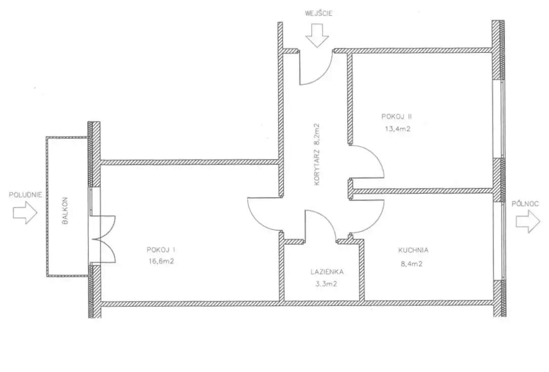
- Charakterystyka mieszkania 51.88 m2, 2 pokoje
- Budynek blok; rok budowy: 1959
- Rozkład mieszkania 3p piętro
- Media Ogrzewanie: C.O. miejskie; Woda: tak - miejska; Gaz: tak - miejski
- Balkon średni
- Czynsz Czynsz letni: 580 zł
- Dojazd asfalt
- Garaż brak
- Ilość sypialni 2
- Instalacje ELEKTRYCZNA, GAZOWA
- Okna PCV
- Otoczenie centrum miasta
- Stan lokalu częściowo po remoncie
- Technologia budowlana cegła
- Winda Tak
Lokalizacja
- Adres podlaskie, Białystok, Centrum
Opis nieruchomości
Idealne na start lub pod wynajem.
Na sprzedaż mieszkanie o powierzchni 51,88 m² wraz z przynależną piwnicą. Nieruchomość położona jest przy ul. Piłsudskiego w Białymstoku, w samym centrum miasta. Lokal znajduje się na trzecim piętrze w 7 piętrowym bloku z windą, co zapewnia duży komfort codziennego użytkowania.
Mieszkanie składa się z przestronnego salonu z wyjściem na balkon, oddzielnej sypialni, niezależnej kuchni, łazienki z wanną i wc oraz przedpokoju. Układ pomieszczeń jest bardzo funkcjonalny – każde z nich ma niezależne wejście.
Lokal jest po częściowym odświeżeniu. , na podłogach parkiet w bardzo dobrym stanie. W mieszkaniu wymienione są okna PCV.
Mieszkanie stanowi odrębną własność z założoną księgą wieczystą i jest całkowicie wolne od obciążeń. Wydanie nieruchomości możliwe jest od razu po zakupie.
Zapraszam na prezentację
Marcin Iwaniuk
tel. 512013562
Ambasada Nieruchomości