Mieszkanie na sprzedaż
369 000 zł
71 m2


















1 / 18
Szczegóły ogłoszenia
- Symbol oferty CHN-MS-26834
- Typ oferty mieszkanie na sprzedaż
- Cena 369 000 zł
- Charakterystyka mieszkania 70.81 m2, 3 pokoje
- Budynek kamienica; rok budowy: 1930
- Rozkład mieszkania 2p piętro
- Media Ogrzewanie: piec dwufunkcyjny; Woda: piec gazowy dwufunkcyjny; Gaz: tak - miejski
- Czynsz Czynsz letni: 123 zł
- Dojazd asfalt
- Garaż garaż murowany
- Okna PCV
- Stan lokalu do remontu
- Technologia budowlana cegła
Lokalizacja
- Adres dolnośląskie, Bielawa
Opis nieruchomości
TA OFERTA TYLKO U NAS - WYŁĄCZNOŚĆ.
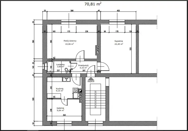
Na sprzedaż rozkładowe, trójstronne i słoneczne mieszkanie o powierzchni 70,81 m², położone na 2 piętrze, 3-piętrowej kamienicy w Bielawie, przy ul. Grabskiego 3.
Atuty nieruchomości:
-funkcjonalny układ z możliwością adaptacji do potrzeb nowego właściciela,
-osobna, duża kuchnia z jadalnią, którą można zaaranżować jako trzeci pokój z aneksem kuchennym,
-wymienione okna na PCV,
-ogrzewanie gazowe z piecem dwufunkcyjnym,
-przynależności: piwnica, pomieszczenie na strychu oraz komórka lokatorska,
-dodatkowa możliwość zakupu murowanego garażu (23 m²) z osobną księgą wieczystą, który dodatkowo posiada strych,
Mieszkanie idealne dla rodziny — komfortowe, jasne i przestronne
Rozkład pomieszczeń:
-pokój dzienny: 22,06 m²
-sypialnia: 22,20 m²
-kuchnia: 9,64 m²
-jadalnia: 9,15 m²
-łazienka: 3,60 m²
-przedpokój: 4,16 m²
Lokalizacja:
Nieruchomość znajduje się w świetnej lokalizacji — w pobliżu znajdują się sklepy, szkoły, punkty usługowe oraz przystanki komunikacji miejskiej. Dużym atutem jest bliskość malowniczych terenów Gór Sowich i Jeziora Bielawskiego, które oferują wiele możliwości aktywnego wypoczynku na świeżym powietrzu.
To idealna propozycja dla rodziny lub osób poszukujących przestronnego mieszkania w spokojnej, a zarazem dobrze skomunikowanej okolicy.
Zapraszam do kontaktu w celu umówienia prezentacji!
Na sprzedaż rozkładowe, trójstronne i słoneczne mieszkanie o powierzchni 70,81 m², położone na 2 piętrze, 3-piętrowej kamienicy w Bielawie, przy ul. Grabskiego 3.
Atuty nieruchomości:
-funkcjonalny układ z możliwością adaptacji do potrzeb nowego właściciela,
-osobna, duża kuchnia z jadalnią, którą można zaaranżować jako trzeci pokój z aneksem kuchennym,
-wymienione okna na PCV,
-ogrzewanie gazowe z piecem dwufunkcyjnym,
-przynależności: piwnica, pomieszczenie na strychu oraz komórka lokatorska,
-dodatkowa możliwość zakupu murowanego garażu (23 m²) z osobną księgą wieczystą, który dodatkowo posiada strych,
Mieszkanie idealne dla rodziny — komfortowe, jasne i przestronne
Rozkład pomieszczeń:
-pokój dzienny: 22,06 m²
-sypialnia: 22,20 m²
-kuchnia: 9,64 m²
-jadalnia: 9,15 m²
-łazienka: 3,60 m²
-przedpokój: 4,16 m²
Lokalizacja:
Nieruchomość znajduje się w świetnej lokalizacji — w pobliżu znajdują się sklepy, szkoły, punkty usługowe oraz przystanki komunikacji miejskiej. Dużym atutem jest bliskość malowniczych terenów Gór Sowich i Jeziora Bielawskiego, które oferują wiele możliwości aktywnego wypoczynku na świeżym powietrzu.
To idealna propozycja dla rodziny lub osób poszukujących przestronnego mieszkania w spokojnej, a zarazem dobrze skomunikowanej okolicy.
Zapraszam do kontaktu w celu umówienia prezentacji!
Na Państwa wszelkie pytania i wątpliwości odpowiemy telefonicznie bądź drogą mailową!
Serdecznie zapraszam na prezentacje!
tel. 796 998 612
---- 74 3000 333
Nota prawna
Opis oferty zawarty na stronie internetowej sporządzany jest na podstawie oględzin nieruchomości oraz informacji uzyskanych od właściciela, może podlegać aktualizacji i nie stanowi oferty określonej w art. 66 i następnych K.C.
Kalkulator kredytowy
Formularz kontaktowy