Dom na sprzedaż






































Szczegóły ogłoszenia
- Symbol oferty BS5-DS-301630
- Typ oferty dom na sprzedaż
- Cena 1 550 000 zł
- Charakterystyka mieszkania 360 m2, 6 pokoi, do remontu
- Budynek rok budowy: 1920
- Media Ogrzewanie: piec dwufunkcyjny; Woda: piec gazowy dwufunkcyjny; Kanalizacja: miejska; Prąd: jest; Gaz: tak - miejski
- Bezpieczeństwo ogrodzenie działki: ogrodzona
- Balkon jest
- Dojazd asfalt
- Działka płaska
- Garaż wolnostojący
- Instalacje dobre
- Material konstrukcyjny cegła
- Okna częściowo wymienione
- Otoczenie centrum miasta
- Podpiwniczenie Częściowe
- Pokrycie dachu blacha
- Rodzaj domu kamienica wolnostojąca
- Stan prawny Własność
Lokalizacja
- Adres małopolskie, bocheński, Bochnia
Opis nieruchomości
Bochnia, Śródmieście, ul. Poniatowskiego, kamienica z 2 mieszkaniami, lokalem użytkowym i zapleczem gospodarczym na działce o pow. 1020 m2.
Nieruchomość położona bezpośrednio na przeciw dworca kolejowego w Bochni.
Na terenie działki znajduje się kamienica z 1920 r., 2-kondygnacyjna, częściowo podpiwniczona i strychem, z dobudowanymi zabudowaniami gospodarczymi (usługowymi) oraz wolnostojący garaż murowany.
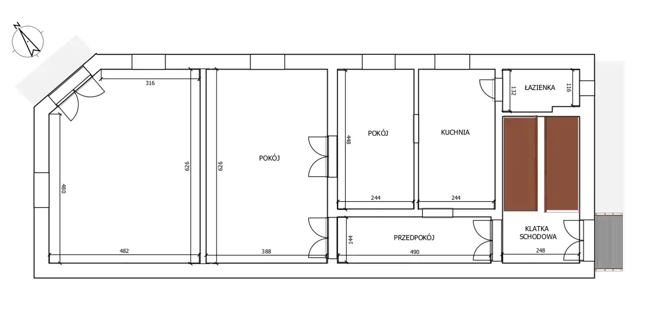
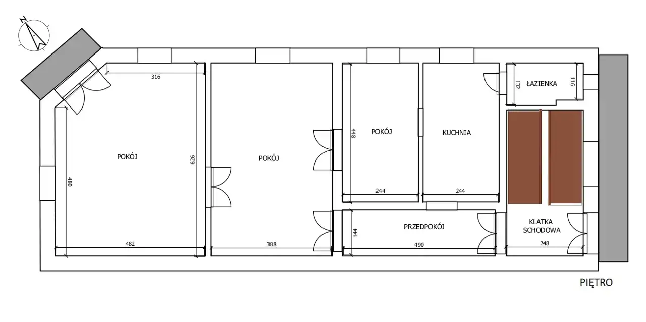
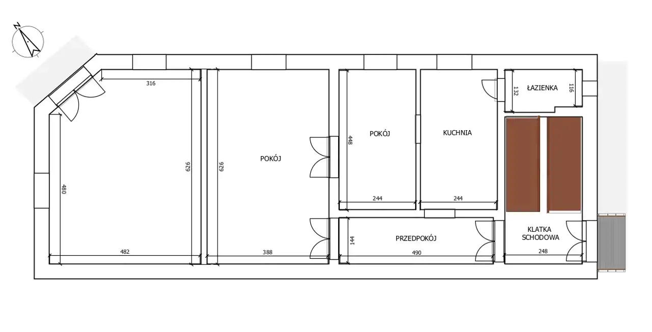
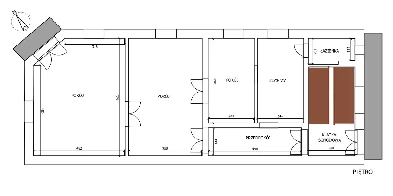
Powierzchnia pierwotnej kamienicy wynosi ok. 240 m2, w tym pow. piwnicy ok. 44 m2 oraz 2 kondygnacje o pow. łącznej ok. 196 m2. Na parterze o łącznej pow. ok. 98 m2 znajduje się mieszkanie 2 pokojowe z osobną kuchnią, łazienka i przedpokojem o pow. ok. 58 m2 oraz wydzielony lokal użytkowy z odrębnym wejściem, użytkowany dotychczas jako lokal gastronomiczny o pow. ok. 28 m2, pierwotnie stanowiący 3 pokój. Na 1 piętrze znajdują się 3 pokojowe mieszkanie z osobną kuchnią, łazienką i przedpokojem o pow. użytkowej ok. 86 m2. Wysokość pomieszczeń - 3,3 m.
Każde z mieszkań opomiarowane osobno. W mieszkaniach ogrzewanie centralne z pieca gazowego dwufunkcyjnego, odrębnego dla każdego mieszkania. Woda i kanalizacja z sieci miejskiej. Budynek wybudowany z cegły, stropy między kondygnacyjne belkowe drewniane, nad piwnicą strop Kleina, okna drewniane, dwuszybowe, nowego typu, podłogi w pokojach z deski drewnianej. Wejście do mieszkań wspólną klatką schodową oraz dodatkowe, drugie wejście na poziomie parteru.
W bryle budynku, na poziomie parteru znajdują się 2 pomieszczenia gospodarczo-usługowe o pow. ok. 66 m2 i ok. 25 m2. Lokal o pow. 66 m2 wykorzystywany jako zaplecze gastronomiczne. Dodatkowo na terenie działki znajduje się garaż murowany o pow. ok. 30 m2.
Kamienica poza dotychczasową funkcją mieszkalną, ze względu na położenie i parametry, idealna do prowadzenia szeroko pojętej działalności gospodarczej (gastronomia, biura, hostel, gabinety itp.).
Kamienica objęta ochrona konserwatorską.
Teren nieruchomości objęty jest miejscowym planem zagospodarowania przestrzennego obszaru "Śródmieście" o oznaczeniu 1.US.1 - teren usług sportu i rekreacji o brzmieniu:
W granicach terenu wyznaczonego, poza przeznaczeniem podstawowym dopuszcza się: 1) lokalizację obiektów usługowo-handlowych (obsługi turystyki, informacji turystycznej, gastronomii, handlu detalicznego pamiątkami, artykułami codziennego użytku), 2) realizację zaplecza szatniowo-gospodarczego, 3) remont, odbudowę, rozbudowę, przebudowę i nadbudowę istniejącej zabudowy pod warunkiem zachowania zasad zagospodarowania terenu i kształtowania zabudowy jak dla obiektów nowo realizowanych, 4) realizację urządzeń terenowych i obiektów małej architektury, 5) realizację zieleni urządzonej – zieleńce, skwery, 6) realizację ciągów pieszych i ścieżek rowerowych.
W granicach terenu wyznaczonego, ustala się następujące warunki zagospodarowania terenu i kształtowania zabudowy: 1) maksymalny wskaźnik zabudowy – 50%, 2) dopuszcza się zagospodarowanie terenu co najwyżej trzema inwestycjami, 3) wysokość budynków szatniowo-gospodarczych – do 4,5 m, 4) wysokość pozostałych budynków – do 15 m, 5) obowiązek realizacji w ramach inwestycji ogólnodostępnego placu, 6) zachować minimum 20% powierzchni biologicznie czynnej, 7) obowiązek zabezpieczenia w obrębie terenu miejsc parkingowych jak dla obiektów usługowych zgodnie z § 4 ust. 8 pkt 8 uchwały, 6) zachować warunki § 4 ust. 6 pkt 1 wynikające z położenia w strefie ochrony konserwatorskiej B
Szczegóły oferty:
+48 502 104 545