Dom na sprzedaż






















Szczegóły ogłoszenia
- Symbol oferty DNX-DS-29140
- Typ oferty dom na sprzedaż
- Cena 739 000 zł
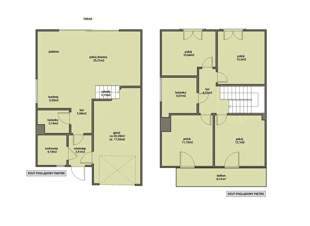
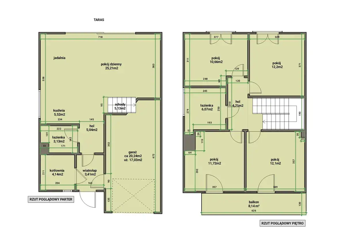
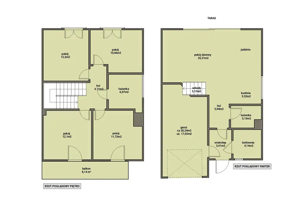
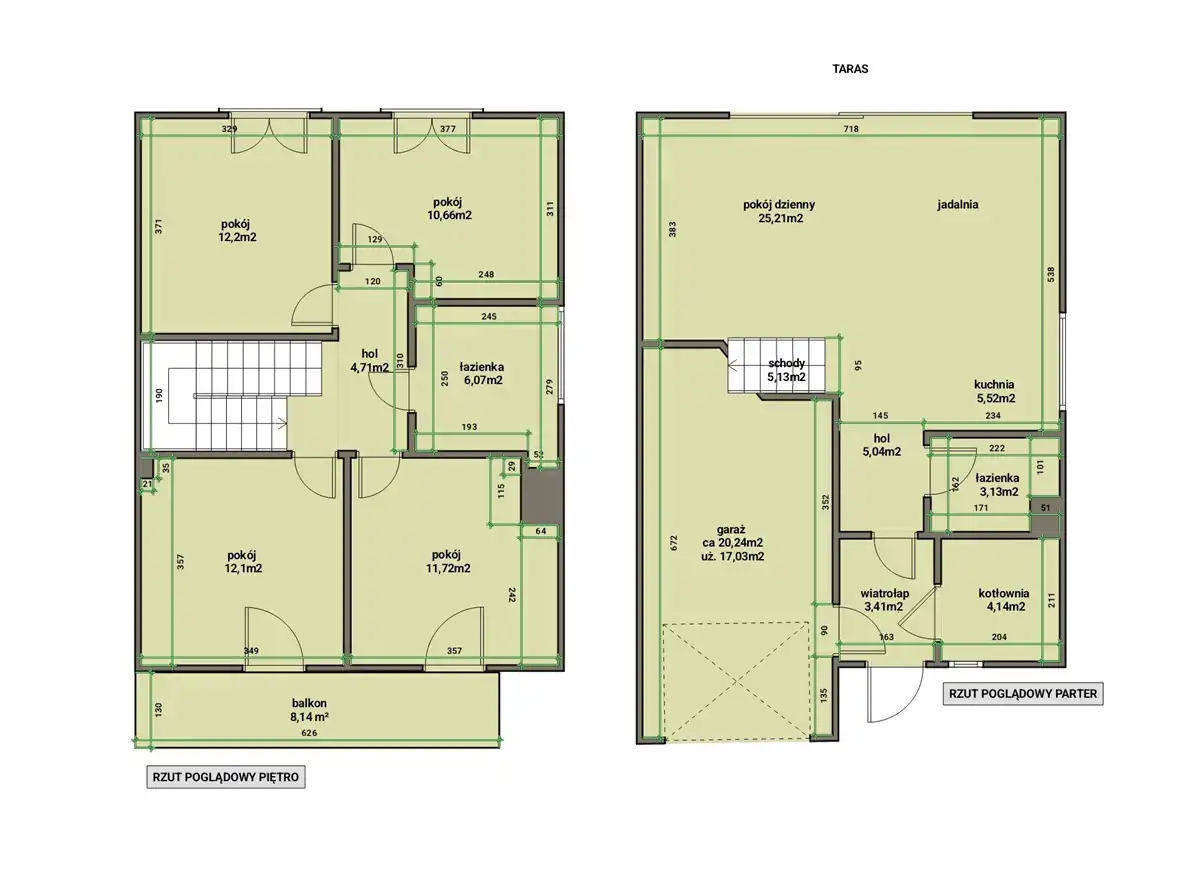
- Charakterystyka mieszkania 128.17 m2, 5 pokoi, do wykończenia
- Budynek rok budowy: 2023
- Media Ogrzewanie: C.O. GAZOWE; Woda: jest; Kanalizacja: szambo; Prąd: jest; Gaz: jest
- Bezpieczeństwo ogrodzenie działki: brak
- Balkon jest
- Dojazd asfalt
- Działka płaska, prostokąt
- Garaż w bryle
- Ilość sypialni 4
- Instalacje nowe
- Material konstrukcyjny porotherm
- Okna PCV
- Otoczenie panorama
- Pokrycie dachu blacha
- Pozwolenie na użytkowanie Tak
- Rodzaj domu bliźniak
- Stan prawny Własność
- Taras taras duży
Lokalizacja
- Adres małopolskie, wadowicki, Brzeźnica
Opis nieruchomości
Marcyporęba, gmina Brzeźnica, powiat Wadowicki - Na sprzedaż dom w zabudowie bliźniaczej o powierzchni całkowitej 128,17 m2, położony na działce o powierzchni 6,8 ara.
Zdjęcia robione w czasie budowy - Obecnie wszystkie prace są skończone a budynek został oddany do użytkowania.
Nieruchomość sprzedawana w stanie deweloperskim z przyłączem wody, prądu, gazu oraz szambem na działce. Cena nie zawiera ogrodzenia - możliwość wykonania za dopłatą. Piec oraz grzejniki w cenie.
SPECYFIKACJA TECHNICZNA BUDYNKU:
"Chudziak" na całej szerokości fundamentów gr. 10 cm.
- Ławy fundamentowe z betonu B20.
- Ściany fundamentowe wylewane na mokro z betonu B25.
Ściany zewnętrzne:
-Pustak ceramiczny PORTOTHERM + Ocieplenie: Styropian gr. 15 cm, zaprawy klejące, tynki cienkowarstwowe i farby.
Ściany wewnętrzne:
-bloczki z betonu komórkowego H+H.
Kominy:
-przewody dymowe: system kominowy Presto.
-przewody wentylacyjne: pustak systemowy.
Stropy:
-Nad parterem: monolityczne, żelbetowe.
-Nad poddaszem: monolityczne, żelbetowe.
Nadproża:
-Prefabrykowane firmy PORTOTHERM.
Dach:
-Dwuspadowy, kąt nachylenia połaci 30 stopni.
-Konstrukcja drewniana, zabezpieczona środkami grzybobójczymi i ognioochronnymi.
-Krycie: blacha płaska, na zrębek stojący.
STAN PRAWNY:
-budynek mieszkalny, jednorodzinny dwulokalowy, wolnostojący, niepodpiwniczony, z dużym poddaszem użytkowym - własność lokalu oraz działki.
LOKALIZACJA:
Domy w inwestycji Słoneczna Kaskada położone są w miejscowości Marcyporęba, w powiecie wadowickim, w gminie Brzeźnica. Budynki postawiono w jednej z najpiękniejszych części terenu, którego ukształtowanie pozwala napawać się widokami na okoliczną naturę.
Odległości od najbliższych miast: Wadowice 15 km, Skawina 18 km, Kraków Centrum 32 km (obwodnica 21 km)
ZAPRASZAM DO KONTAKTU TELEFONICZNEGO CELEM UZYSKANIA WIĘKSZEJ ILOŚCI INFORMACJI!