Dom na sprzedaż
799 000 zł
150 m2



1 / 3
Szczegóły ogłoszenia
- Symbol oferty PRN-DS-7479
- Typ oferty dom na sprzedaż
- Cena 799 000 zł
- Charakterystyka mieszkania 150 m2, 5 pokoi, do remontu
- Budynek rok budowy: 1970
- Media Ogrzewanie: piec węglowy; Woda: tak - miejska; Prąd: jest; Gaz: jest
- Działka częściowo zagospodarowana, lekko nachylona
- Garaż w poziomie piwnicy
- Ilość sypialni 4
- Okna drewniane
- Otoczenie osiedle
- Podpiwniczenie Tak
- Pokrycie dachu papa
- Rodzaj domu wolnostojący
- Taras taras
- Technologia budowlana beton, cegła
Lokalizacja
- Adres kujawsko-pomorskie, Bydgoszcz, Flisy
Opis nieruchomości
OPIS OFERTY:
Na sprzedaż dom położony na osiedlu Flisy w sąsiedztwie zabudowy jednorodzinnej.
Budynek do generalnego remontu posadowiony na działce o powierzchni 994 m2.
Ulica przebiega w bezpośrednim sąsiedztwie Kanału Bydgoskiego, co zapewnia świetne tereny spacerowe i rekreacyjne.
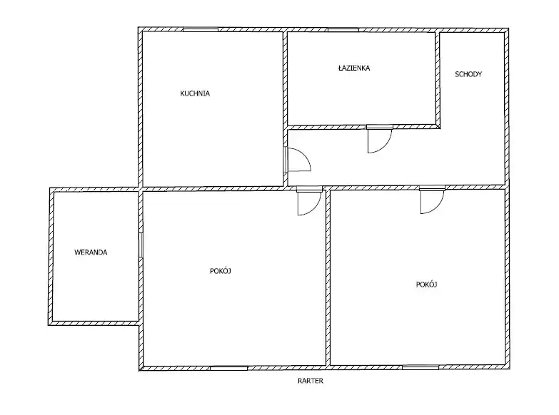
UKŁAD POMIESZCZEŃ:
PARTER:
- 2 pokoje o powierzchni po 16,6 m2, z jednego pokoju wyjście na werandę,
- kuchnia 10,2m2
- Hall - około 4,5 m2
- Łazienka z wc 4,80 m2
PIĘTRO:
-3 pokoje 10,2 m2; 16 m2 i 17 m2, z jednego pokoju wyjście na taras.
- łazienka
- Hall
PIWNICA:
- pralnia
- kotłownia
- piwnica gospodarcza
- garaż
STANDARD WYKOŃCZENIA:
Nieruchomość do remontu i własnej aranżacji.
Stolarka okienna i drzwiowa do wymiany.
Ogrzewanie piecem starego typu na węgiel.
LOKALIZACJA:
Dom położony na osiedlu Flisy w sąsiedztwie zabudowy jednorodzinnej.
Szybki dojazd do centrum Bydgoszczy.
W pobliżu przedszkole i przystanek komunikacji miejskiej.
Zapraszam na prezentację!
Na sprzedaż dom położony na osiedlu Flisy w sąsiedztwie zabudowy jednorodzinnej.
Budynek do generalnego remontu posadowiony na działce o powierzchni 994 m2.
Ulica przebiega w bezpośrednim sąsiedztwie Kanału Bydgoskiego, co zapewnia świetne tereny spacerowe i rekreacyjne.
UKŁAD POMIESZCZEŃ:
PARTER:
- 2 pokoje o powierzchni po 16,6 m2, z jednego pokoju wyjście na werandę,
- kuchnia 10,2m2
- Hall - około 4,5 m2
- Łazienka z wc 4,80 m2
PIĘTRO:
-3 pokoje 10,2 m2; 16 m2 i 17 m2, z jednego pokoju wyjście na taras.
- łazienka
- Hall
PIWNICA:
- pralnia
- kotłownia
- piwnica gospodarcza
- garaż
STANDARD WYKOŃCZENIA:
Nieruchomość do remontu i własnej aranżacji.
Stolarka okienna i drzwiowa do wymiany.
Ogrzewanie piecem starego typu na węgiel.
LOKALIZACJA:
Dom położony na osiedlu Flisy w sąsiedztwie zabudowy jednorodzinnej.
Szybki dojazd do centrum Bydgoszczy.
W pobliżu przedszkole i przystanek komunikacji miejskiej.
Zapraszam na prezentację!
Nota prawna
Opis oferty zawarty na stronie internetowej sporządzany jest na podstawie oględzin nieruchomości oraz informacji uzyskanych od właściciela, może podlegać aktualizacji i nie stanowi oferty określonej w art. 66 i następnych K.C.
Kalkulator kredytowy
Formularz kontaktowy