Dom na sprzedaż
660 000 zł
237 m2




















1 / 20
Szczegóły ogłoszenia
- Symbol oferty DYK-DS-1656
- Typ oferty dom na sprzedaż
- Cena 660 000 zł
- Charakterystyka mieszkania 236.78 m2, 5 pokoi, do wykończenia
- Budynek rok budowy: 2023
- Media Ogrzewanie: pompa ciepła; Woda: tak - miejska; Kanalizacja: tak; Prąd: w budynku; Gaz: brak
- Bezpieczeństwo ogrodzenie działki: mieszane
- Dojazd asfalt
- Działka Zagospodarowana, płaska, prostokąt
- Garaż w budynku
- Ilość sypialni 4
- Instalacje nowe
- Material konstrukcyjny bloczki, gazobeton
- Okna PCV
- Otoczenie działki zabudowane
- Pokrycie dachu dachówka ceramiczna
- Pozwolenie na użytkowanie Tak
- Rodzaj domu wolnostojący
- Stan prawny Własność
- Taras taras
Lokalizacja
- Adres pomorskie, lęborski, Cewice
Opis nieruchomości
Rozpoczynamy sprzedaż inwestycji deweloperskiej dwóch domów jednorodzinnych oraz jednego w zabudowie bliźniaczej. Inwestycja zlokalizowana jest w Cewicach przy ulicy Spacerowej, położona na spokojnym osiedlu domów jednorodzinnych. Dojazd z miejskiej drogi asfaltowej w drogę wewnętrzną wyłożoną kostką brukową.
Zapraszamy do zapoznania się ze szczegółami poszczególnych ofert.
Zapraszamy do zapoznania się ze szczegółami poszczególnych ofert.
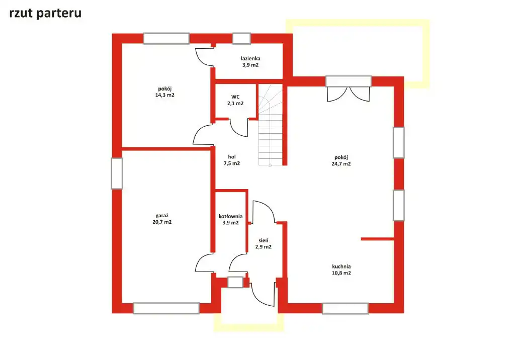
Oferujemy do sprzedaży dom jednorodzinny o powierzchni użytkowej 135,53 m2 + garaż 20,70 m2 wybudowany na działce 645 m2. Na parterze domu znajduje się: wiatrołap, hol, toaleta, salon z kuchnią, pokój z własną łazienką i garaż. Na poddaszu znajdują się 3 sypialnie, łazienka oraz hol.
Nieruchomość oddana do użytku w 2024 w stanie deweloperskim na który składają się:
- wykończona elewacja (styropian o grubości 15 cm + struktura sylikatowo-sylikonowa)
- dachówka ceramiczna firmy CREATON
- strop żelbetowy
- ściany zewnętrzne i wewnętrzne z gazobetonu,
- okna PCV trójszybowe firmy Wikęd
- parapety zewnętrzne blaszane,
- ściany na parterze i piętrze wykończone tynkiem gipsowym,
- ocieplenie poddasza wełną mineralną 25 cm - U 0,39 W/(m²K) i folią paroizolacyjną, na podłodze płyta OSB
- posadzki cementowe,
- drzwi garażowe kasetonowe automatycznie otwierane na pilota
- schody na poddasze betonowe, zabiegowe
- ogrzewanie POMPA CIEPŁA firmy ARISTON 8 KW
- dom posiada wyprowadzone wszystkie niezbędne instalacje:
- c.o.: ogrzewanie podłogowe
- instalacja elektryczna kompletna i uzbrojona wraz z podłączeniem do przyłącza energetycznego,
- szafka elektryczna w garażu uzbrojona
- instalacja wodno-kanalizacyjna wykonana bez zakończeń- zaślepiona i podłączona do przyłącza na działce,
- media: woda, prąd, kanalizacja
- taras, podjazd i wejście do budynku wyłożone kostką brukową,
- posesja ogrodzona, brama wjazdowa z napędem.
Zapraszamy na bezpłatną prezentację nieruchomości podczas której odpowiemy na wszystkie pytania związane z inwestycją.
Oferujemy profesjonalne usługi w oparciu o indywidualne podejście do klienta, doświadczenie i etykę zawodową.
Bezpłatnie porównamy i dobierzemy najlepszą ofertę kredytu hipotecznego spośród wiodących banków.
Więcej ofert na stronie: w w w. k d 2 4 .p l
Nieruchomość oddana do użytku w 2024 w stanie deweloperskim na który składają się:
- wykończona elewacja (styropian o grubości 15 cm + struktura sylikatowo-sylikonowa)
- dachówka ceramiczna firmy CREATON
- strop żelbetowy
- ściany zewnętrzne i wewnętrzne z gazobetonu,
- okna PCV trójszybowe firmy Wikęd
- parapety zewnętrzne blaszane,
- ściany na parterze i piętrze wykończone tynkiem gipsowym,
- ocieplenie poddasza wełną mineralną 25 cm - U 0,39 W/(m²K) i folią paroizolacyjną, na podłodze płyta OSB
- posadzki cementowe,
- drzwi garażowe kasetonowe automatycznie otwierane na pilota
- schody na poddasze betonowe, zabiegowe
- ogrzewanie POMPA CIEPŁA firmy ARISTON 8 KW
- dom posiada wyprowadzone wszystkie niezbędne instalacje:
- c.o.: ogrzewanie podłogowe
- instalacja elektryczna kompletna i uzbrojona wraz z podłączeniem do przyłącza energetycznego,
- szafka elektryczna w garażu uzbrojona
- instalacja wodno-kanalizacyjna wykonana bez zakończeń- zaślepiona i podłączona do przyłącza na działce,
- media: woda, prąd, kanalizacja
- taras, podjazd i wejście do budynku wyłożone kostką brukową,
- posesja ogrodzona, brama wjazdowa z napędem.
Zapraszamy na bezpłatną prezentację nieruchomości podczas której odpowiemy na wszystkie pytania związane z inwestycją.
Oferujemy profesjonalne usługi w oparciu o indywidualne podejście do klienta, doświadczenie i etykę zawodową.
Bezpłatnie porównamy i dobierzemy najlepszą ofertę kredytu hipotecznego spośród wiodących banków.
Więcej ofert na stronie: w w w. k d 2 4 .p l
Nota prawna
Opis oferty zawarty na stronie internetowej sporządzany jest na podstawie oględzin nieruchomości oraz informacji uzyskanych od właściciela, może podlegać aktualizacji i nie stanowi oferty określonej w art. 66 i następnych K.C.
Kalkulator kredytowy
Formularz kontaktowy