Dom na sprzedaż














Szczegóły ogłoszenia
- Symbol oferty BORK-DS-56
- Typ oferty dom na sprzedaż
- Cena 519 000 zł
- Charakterystyka mieszkania 112.7 m2, 4 pokoje, do wykończenia
- Budynek rok budowy: 2025
- Media Ogrzewanie: centralne; Woda: tak - miejska; Prąd: jest; Gaz: brak
- Bezpieczeństwo ogrodzenie działki: siatka
- Dojazd droga nieutwardzona
- Działka Niezagospodarowana, płaska, prostokąt
- Garaż w bryle
- Ilość sypialni 3
- Okna PCV 3 szyby, ciepły montaż
- Pokrycie dachu blachodachówka
- Rodzaj domu bliźniak
- Umeblowanie brak
Lokalizacja
- Adres wielkopolskie, czarnkowsko-trzcianecki, Czarnków (gw)
Opis nieruchomości
Na sprzedaż nowy, energooszczędny dom w zabudowie bliźniaczej – osiedle KOCIOŁKI nad jeziorem z plażą w Brzeźnie gm. Czarnków.
BEZPŁATNA POMOC W UZYSKANIU KREDYTU PRZY WSPÓŁPRACY Z PONAD DWUDZIESTOMA BANKAMI
W JEDNYM MIEJSCU WIELE OFERT
WYBIERZESZ NAJLEPSZĄ OFERTĘ DLA SIEBIE
Dwa lokale mieszkalne w bliźniaku, położone na działce o pow. 772 m², powierzchnia jednego lokalu 112,7m², z udziałem w gruncie około 385 m²
Dom gotowy do odbioru już w 2025 roku (planowanie oddanie inwestycji to przełom września i października) – zamieszkaj blisko jeziora, plaży i lasu
Nowoczesny dom w zabudowie bliźniaczej, położony na kameralnym osiedlu z jeziorem i plażą. To idealna propozycja dla osób szukających komfortu, natury i spokoju z szybkim dojazdem do miasta – tylko kilka minut do Czarnkowa, 30 minut do Piły, godzina do Poznania.
Najważniejsze atuty:
-
Brak podatku PCC
-
Ogrzewanie infrared w cenie – energooszczędne, sterowane z telefonu lub pilota
-
Możliwość zmiany systemu ogrzewania (pompa ciepła, pellet, ekogroszek, kominek – za dopłatą lub we własnym zakresie
-
Garaż z możliwością adaptacji na pokój lub biuro – za dopłatą
-
Gotowa instalacja pod fotowoltaikę i możliwość montażu klimatyzacji
-
Trzyszybowe okna, grube ściany i najwyższe normy energooszczędności
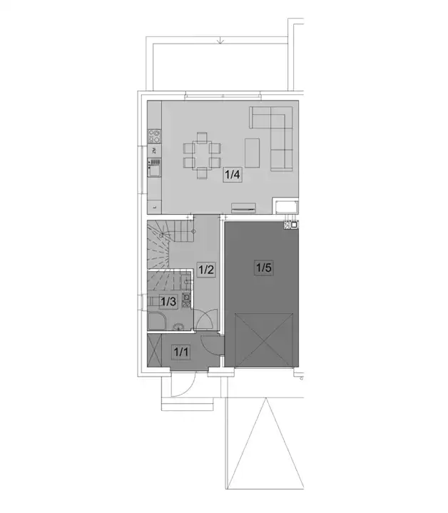
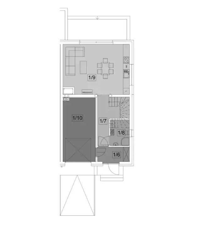
Rozkład pomieszczeń:
Parter:
-
Salon z aneksem kuchennym – 30,02 m²
-
Łazienka – 3,56 m²
-
Korytarz – 9,16 m²
-
Wiatrołap – 4,16 m²
-
Garaż – 18,46 m² (z opcją adaptacji)
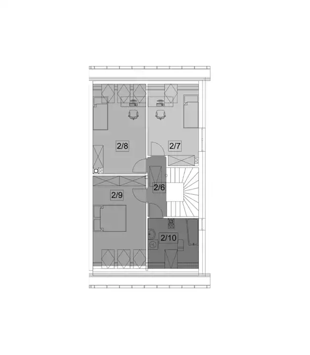
Piętro:
-
Sypialnia I – 13,53 m²
-
Sypialnia II – 12,47 m²
-
Sypialnia III – 9,80 m²
-
Łazienka – 5,00 m²
-
Korytarz – 13,53 m²
Działka i otoczenie:
-
Działka ogrodzona z trzech stron, powierzchnia ok. 400 m²
-
2 miejsca postojowe z kostki brukowej
-
Taras, podjazd i opaska wokół budynku – z kostki
-
Zewnętrzne oświetlenie budynku
-
Idealne nasłonecznienie – salon i ogród od strony południowo-zachodniej
-
Spokojna, zielona okolica – ograniczony ruch samochodowy