Dom na sprzedaż




























Szczegóły ogłoszenia
- Symbol oferty GRS-DS-2812
- Typ oferty dom na sprzedaż
- Cena 599 000 zł
- Charakterystyka mieszkania 111.92 m2, 5 pokoi, do wykończenia
- Budynek rok budowy: 2026
- Media Ogrzewanie: pompa ciepła; Woda: jest; Kanalizacja: tak; Prąd: jest; Gaz: jest
- Bezpieczeństwo ogrodzenie działki: brak
- Działka Niezagospodarowana, pochyła, nieregularny
- Instalacje brak
- Okna PCV 3 szyby, ciepły montaż
- Pokrycie dachu blacha
- Rodzaj domu bliźniak
Lokalizacja
- Adres pomorskie, słupski, Dębnica Kaszubska
Opis nieruchomości
Nowa niższa cena!!!
Nowoczesny, dom wolnostojący w zabudowie bliźniaczej w Dębnicy Kaszubskiej – stan deweloperski!
Szukasz domu w spokojnej okolicy, który możesz wykończyć według własnych upodobań? Ta oferta to doskonała okazja do stworzenia wymarzonego miejsca do życia!
Działka – przestrzeń pełna możliwości. Dom w zabudowie bliźniaczej usytuowany jest na dużej działce o powierzchni około 1000 m², co zapewnia szerokie możliwości aranżacyjne. To idealne miejsce do stworzenia pięknego ogrodu, strefy relaksu lub placu zabaw dla dzieci.
Dom – funkcjonalność i przemyślany układ pomieszczeń. Piętrowy dom jednorodzinny w zabudowie bliźniaczej o powierzchni 111,92 m² został zaprojektowany z myślą o wygodzie mieszkańców. Przestronne wnętrza oferują dużą swobodę aranżacyjną, a stan deweloperski pozwala na indywidualne dostosowanie wykończenia.
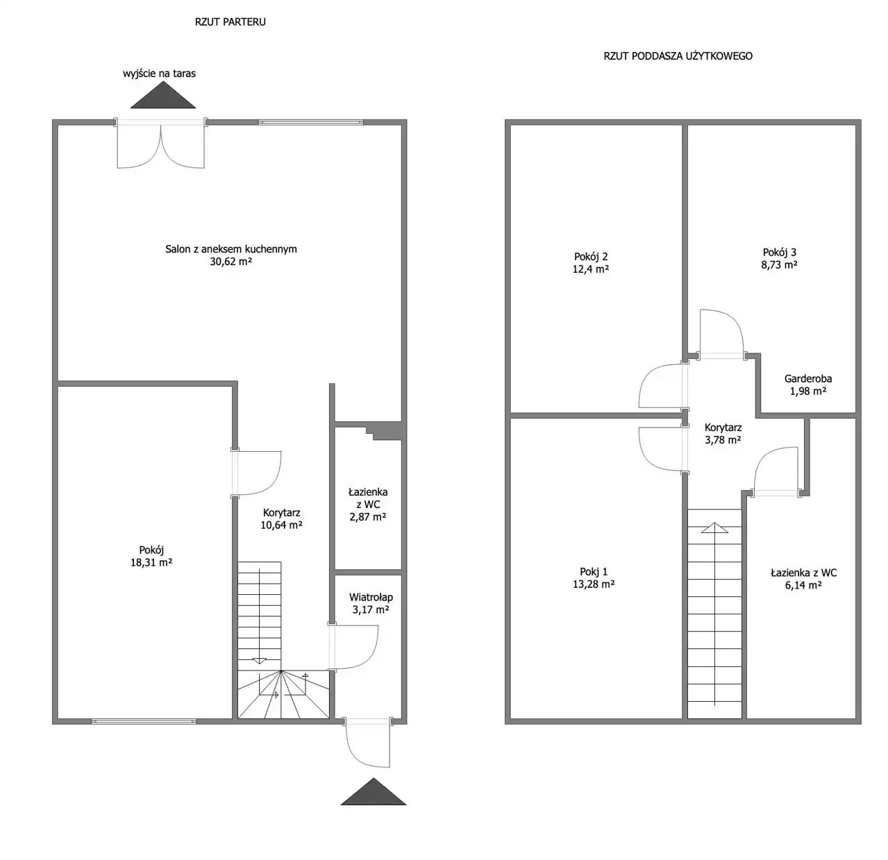
Parter (65,61 m²):
- Wiatrołap (3,17 m²) – przestrzeń na szafę i miejsce do przechowywania.
- Salon z jadalnią (30,62 m²) – przestronny, jasny, z wyjściem na taras.
- Pokój (18,31 m²) – świetne miejsce na gabinet lub pokój gościnny.
- Łazienka (2,87 m²) – przewidziane miejsce na WC.
- Korytarz (10,64 m²)
Piętro (46,31 m²):
- Schody – łączące poziomy domu.
- Korytarz (3,78 m²) – wygodny dostęp do wszystkich pomieszczeń.
- Pokój (13,28 m²) – jasny i ustawny.
- Pokój (8,73 m²) – doskonały dla dzieci.
- Pokój (12,40 m²) – z dużym potencjałem aranżacyjnym.
- Łazienka (6,14 m²) – przestrzeń na komfortową wannę i prysznic.
- Garderoba (1,98 m²) – idealny jako sypialnia główna.
Nowoczesne rozwiązania – oszczędność i ekologia - Dom został zaprojektowany z myślą o ekonomicznym użytkowaniu. Głównym atutem jest możliwość zamontowania pompy ciepła, co gwarantuje ekologiczne ogrzewanie i obniżenie kosztów eksploatacji. To nowoczesne rozwiązanie pozwala na korzystanie z energii odnawialnej, co jest nie tylko korzystne finansowo, ale również przyjazne dla środowiska oraz możliwość zamontowania pieca gazowego.
Lokalizacja – cisza, natura, dogodny dojazd. Dębnica Kaszubska to malownicza miejscowość, oddalona zaledwie kilkanaście kilometrów od centrum miasta Słupsk. Lokalizacja zapewnia ciszę i spokój, a jednocześnie wygodny dostęp do infrastruktury miejskiej. W pobliżu znajdują się sklepy, szkoły oraz punkty usługowe. To doskonałe miejsce dla osób ceniących prywatność i bliskość natury.
Dodatkowe informacje:
- stan deweloperski,
- dwukondygnacyjny
- wysokość budynku 8,73 m
- pokrycie dachu: blacha
- budynek niepodpiwniczony
- taras od strony zachodniej
- pompa ciepła lub piec gazowy
- działka o powierzchni około 1000 m2
- dom posadowiony na płycie fundamentowej
- stropy gęstożebrowe, prefabrykowano – monolityczne typu Teriva,
- okna trzyszybowe
- ocieplenie budynku z zewnątrz – styropian o grubości 20 cm
- ogrzewanie podłogowe,
- rok budowy 2025
Cena: 599 000 PLN Strona Kupująca pokrywa wynagrodzenie prowizyjne dla biura!
Więcej informacji uzyskasz kontaktując się z nami:
728 202 030 – Marta Patyna (opiekun oferty)
728 111 007 – Przemek Pryzwan
799 799 397 – Dominika Szramiak
503 901 101 – Adrianna Iwanicka
799 799 313 – Marta Rutkowska
669 647 067 – Karolina Jakuczun
Serdecznie zapraszam Państwa na prezentację nieruchomości, z przyjemnością odpowiem na wszelkie pytania oraz udzielę dodatkowych informacji.
Zamierzasz kupić nieruchomość i skorzystać z finansowania banku? Pomożemy dokonać Ci dobrego wyboru najlepszej oferty spośród wielu banków. Nasz doradca dostosuje ofertę kredytu hipotecznego do Twoich potrzeb i oczekiwań oraz będzie do Twojej dyspozycji na każdym etapie procesu kredytowego.
Niniejsza oferta nie stanowi oferty w rozumieniu Kodeksu Cywilnego, a dane w niej zawarte mają jedynie charakter informacyjny i mogą ulec zmianie.