Dom na sprzedaż







Szczegóły ogłoszenia
- Symbol oferty OHN-DS-827
- Typ oferty dom na sprzedaż
- Cena 1 200 000 zł
- Charakterystyka mieszkania 180 m2, 5 pokoi, do wykończenia
- Budynek rok budowy: 2026
- Media Ogrzewanie: pompa ciepła; Woda: ciepła - miejska; Kanalizacja: miejska; Prąd: jest; Gaz: brak
- Bezpieczeństwo ogrodzenie działki: ogrodzona
- Dojazd ASFALTOWA
- Działka Niezagospodarowana, płaska, kwadrat
- Garaż w budynku
- Ilość sypialni 4
- Instalacje dobre
- Material konstrukcyjny porotherm
- Okna PCV 3 szyby, ciepły montaż
- Otoczenie działki zabudowane
- Pokrycie dachu blachodachówka
- Pozwolenie na użytkowanie Tak
- Rodzaj domu bliźniak
- Stan prawny Własność
Lokalizacja
- Adres zachodniopomorskie, Dobra (Szczecińska), Mierzyn
Opis nieruchomości
Domy w zabudowie bliźniaczej, Mierzyn – 139,23 m², działka 200–300 m²
Cena promocyjna przedsprzedażowa: 1 200 000 zł
Powierzchnia użytkowa: 139,23 m²
Powierzchnia całkowita: 180 m²
Działka: od 200 do 300 m²
Termin zakończenia budowy: II kwartał 2026 roku
OPIS INWESTYCJI
Na sprzedaż nowoczesne domy w zabudowie bliźniaczej położone w spokojnej, dobrze skomunikowanej części Mierzyna. Inwestycja obejmuje funkcjonalne budynki o powierzchni użytkowej 139,23 m², posadowione na działkach o powierzchni od 200 do 300 m².
Domy charakteryzują się nowoczesną architekturą, wysokim standardem wykonania oraz przemyślanym układem pomieszczeń, zapewniającym komfortowe warunki do życia dla całej rodziny.
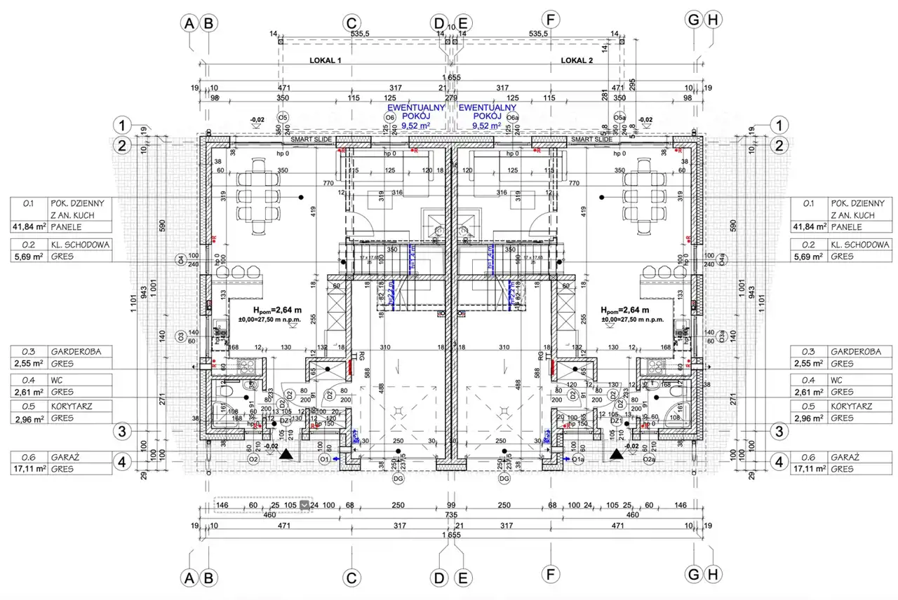
UKŁAD POMIESZCZEŃ
Parter:
-
Salon z aneksem kuchennym – 38,58 m²
-
WC – 3,36 m²
-
Garderoba – 5,31 m²
-
Korytarz – 2,24 m²
-
Garaż – 17,11 m²
Piętro:
-
Pokój – 20,22 m²
-
Garderoba – 3,42 m²
-
Pokój – 8,99 m²
-
Pokój – 11,32 m²
-
Łazienka – 7,88 m²
-
Korytarz – 3,95 m²
Poddasze:
-
Powierzchnia 23,08 m² – możliwość adaptacji na dodatkowy pokój, gabinet lub przestrzeń rekreacyjną
STANDARD WYKOŃCZENIA – STAN DEWELOPERSKI
-
Ogrzewanie pompą ciepła
-
Stolarka okienna PCV, trzyszybowa, ciepły montaż
-
Budynek w technologii Porotherm
-
Elewacja ocieplona styropianem 20 cm w kolorze czarnym
-
Woda i kanalizacja miejska
Domy zostaną oddane do użytkowania w II kwartale 2026 roku.
LOKALIZACJA
Mierzyn to dynamicznie rozwijająca się miejscowość w bezpośrednim sąsiedztwie Szczecina. Lokalizacja łączy zalety spokojnego otoczenia z szybkim dostępem do centrum miasta. W pobliżu znajdują się sklepy, szkoły, przedszkola, tereny rekreacyjne i przystanki komunikacji miejskiej.
CENA
Cena promocyjna w przedsprzedaży: 1 200 000 zł brutto
Liczba domów dostępnych w ofercie promocyjnej jest ograniczona.