Mieszkanie na sprzedaż
357 772 zł
47 m2

1 / 1
Szczegóły ogłoszenia
- Symbol oferty WALA-MS-1
- Typ oferty mieszkanie na sprzedaż
- Cena 357 772 zł
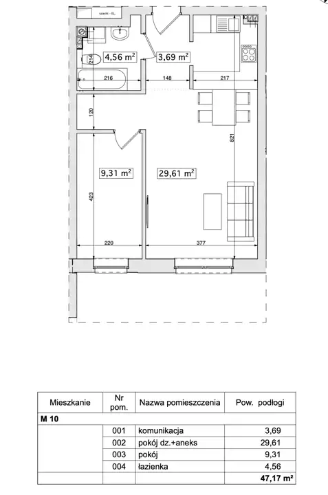
- Charakterystyka mieszkania 47.17 m2, 2 pokoje
- Budynek blok; rok budowy: 2025
- Rozkład mieszkania parter piętro
- Media Ogrzewanie: C.O. GAZOWE; Woda: piecyk gazowy; Gaz: jest
- Dojazd płyty betonowe
- Garaż możliwość kupna
- Instalacje nowe
- Otoczenie osiedle
- Plac zabaw Tak
- Stan lokalu deweloperski
- Technologia budowlana silikat
- Umeblowanie puste
Lokalizacja
- Adres zachodniopomorskie, Dobra (Szczecińska), Mierzyn
Opis nieruchomości
Na sprzedaż nowy budynek mieszkalny pod Szczecinem to idealne miejsce dla osób niezależnych, które pracując w dużym mieście pragną mieszkać z dala od miejskiego zgiełku i jednocześnie na tyle blisko centrum, aby nadal mieć dogodny dostęp do atrakcji dużego miasta. 10 km do ścisłego centrum, w pobliżu szkoła, przedszkole, przychodnia, sklepy. Przyszli mieszkańcy osiedla, oprócz funkcjonalnych mieszkań w ciekawie zaprojektowanych blokach, mogą liczyć również na przemyślaną infrastrukturę osiedlową (plac zabaw, miejsca parkingowe oraz pozostałą małą architekturę), a także na ciekawe otoczenie wokół ich miejsca zamieszkania.
Oferowane mieszkanie znajduje się na parterze, składa się z salonu z aneksem kuchennym , 1 sypialni i łazienki o łącznej powierzchni 47,71 m2 .
Miejsce postojowe w garażu podziemnym 49200m2
Miejsce postojowe nadziemne 24600 zł
Wc ofercie również inne mieszkania 2 i 3 pokojowe na różnych piętrach .
Zapraszam na prezentacje
Oferowane mieszkanie znajduje się na parterze, składa się z salonu z aneksem kuchennym , 1 sypialni i łazienki o łącznej powierzchni 47,71 m2 .
Miejsce postojowe w garażu podziemnym 49200m2
Miejsce postojowe nadziemne 24600 zł
Wc ofercie również inne mieszkania 2 i 3 pokojowe na różnych piętrach .
Zapraszam na prezentacje
Nota prawna
Opis oferty zawarty na stronie internetowej sporządzany jest na podstawie oględzin nieruchomości oraz informacji uzyskanych od właściciela, może podlegać aktualizacji i nie stanowi oferty określonej w art. 66 i następnych K.C.
Kalkulator kredytowy
Formularz kontaktowy