Mieszkanie na sprzedaż


Szczegóły ogłoszenia
- Symbol oferty WALA-MS-210
- Typ oferty mieszkanie na sprzedaż
- Cena 363 209 zł
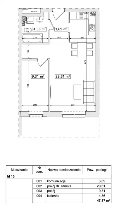
- Charakterystyka mieszkania 47.17 m2, 2 pokoje
- Budynek blok; rok budowy: 2028
- Rozkład mieszkania parter piętro
- Media Ogrzewanie: C.O. GAZOWE; Woda: ciepła - piecyk gazowy; Gaz: jest
- Instalacje ELEKTRYCZNA
- Okna PCV
- Plac zabaw Tak
- Stan lokalu deweloperski
- Technologia budowlana porotherm
- Umeblowanie brak
Lokalizacja
- Adres zachodniopomorskie, policki, Dobra (Szczecińska)
Opis nieruchomości
Nowe osiedle pod Szczecinem to idealne miejsce dla osób niezależnych, które pracując w dużym mieście pragną mieszkać z dala od miejskiego zgiełku i jednocześnie na tyle blisko centrum, aby nadal mieć dogodny dostęp do atrakcji dużego miasta. 10 km do ścisłego centrum, w pobliżu szkoła, przedszkole, przychodnia, sklepy. Przyszli mieszkańcy osiedla, oprócz funkcjonalnych mieszkań w ciekawie zaprojektowanych blokach, mogą liczyć również na przemyślaną infrastrukturę osiedlową (plac zabaw, miejsca parkingowe oraz pozostałą małą architekturę), a także na ciekawe otoczenie wokół ich miejsca zamieszkania.
Miejsce postojowe obligatoryjnie trzeba zakupić do mieszkania koszt około 15 tys
Mieszkanie gotowe na II kwartał 2028
W ofercie również inne mieszkania 2 ,3 pokojowe pokojowe z balkonem lub ogródkiem na różnych pietrach .
Gorąco polecam i zapraszam na prezentację.