Mieszkanie na sprzedaż






















Szczegóły ogłoszenia
- Symbol oferty ELK-MS-5953
- Typ oferty mieszkanie na sprzedaż
- Cena 750 000 zł
- Charakterystyka mieszkania 106.14 m2, 3 pokoje
- Budynek nowe budownictwo; rok budowy: 2025
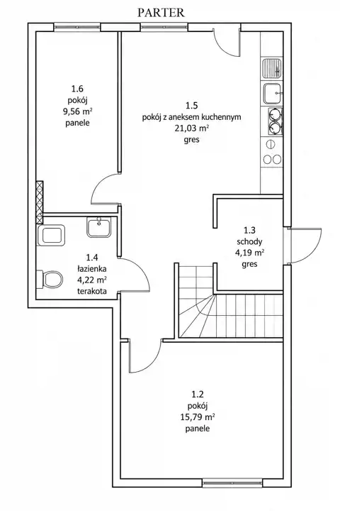
- Rozkład mieszkania parter piętro
- Media Ogrzewanie: pompa ciepła; Woda: tak - miejska; Gaz: brak
- Balkon taras
- Dojazd asfalt
- Garaż brak
- Ilość sypialni 2
- Instalacje nowe
- Okna PCV
- Otoczenie jezioro
- Stan lokalu do wykończenia
- Taras taras duży
- Technologia budowlana suporeks
Lokalizacja
- Adres warmińsko-mazurskie, Ełk, Osiedle Jeziorna
Opis nieruchomości
Na sprzedaż samodzielny lokal mieszkalny o powierzchni użytkowej 58,64 m², położony w nowym budynku w zabudowie szeregowej przy ul. św. Rafała Kalinowskiego w Ełku, na cenionym Osiedlu Jeziorna, w bezpośrednim sąsiedztwie plaży miejskiej.
To wyjątkowa propozycja dla osób, które szukają komfortu mieszkania w mieście, ale jednocześnie cenią prywatność, niezależność i dodatkową przestrzeń charakterystyczną dla domu. Lokal jest bezczynszowy, posiada niezależne wejście, własny ogródek do wyłącznego korzystania o powierzchni 101,67 m² oraz dużą, pełnowymiarową piwnicę z oknami o powierzchni 47,50 m².
Budynek został oddany do użytkowania w 2025 roku. Kameralna zabudowa zapewnia spokojne otoczenie, niewielką liczbę sąsiadów oraz większe poczucie prywatności.
Funkcjonalny układ mieszkania
Mieszkanie znajduje się na parterze i zostało zaprojektowane z myślą o wygodzie codziennego użytkowania.
Do lokalu prowadzi niezależne wejście bezpośrednio z podwórka. W skład mieszkania wchodzi przestronna część dzienna z salonem z aneksem kuchennym oraz wyjściem na duży balkon i własny ogródek. Układ obejmuje również dwie ustawne sypialnie, łazienkę, przedpokój oraz wiatrołap.
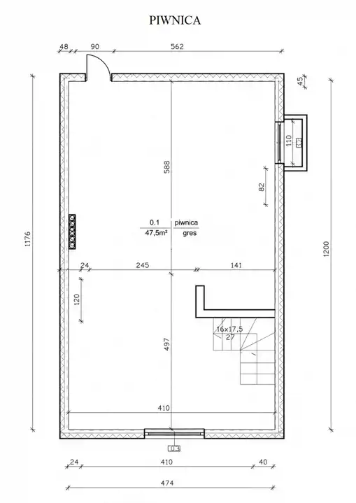
Z przedpokoju do piwnicy prowadzą wygodne, murowane schody. Piwnica jest jednym z największych atutów tej nieruchomości — ma powierzchnię 47,50 m², wysokość około 260 cm, dwa okna oraz przygotowane miejsce na WC.
Dzięki temu może pełnić funkcję pomieszczenia gospodarczego, przestrzeni do przechowywania, domowej siłowni, pracowni, garderoby, strefy hobby lub dodatkowego miejsca rekreacyjnego.
Ogródek do wyłącznego korzystania
Do lokalu przynależy ogródek o powierzchni 101,67 m², przeznaczony do wyłącznego korzystania przez właściciela.
To idealne miejsce na odpoczynek, spotkania z rodziną i znajomymi, zabawę dla dzieci, grilla lub stworzenie własnej zielonej strefy relaksu. Przestrzeń ta daje również możliwość zaparkowania dwóch samochodów.
Dzięki własnemu ogrodowi, niezależnemu wejściu i dodatkowej powierzchni w piwnicy lokal stanowi bardzo dobrą alternatywę dla domu jednorodzinnego, przy zachowaniu wygody życia w mieście.
Stan deweloperski i nowoczesne rozwiązania
Lokal sprzedawany jest w stanie deweloperskim, co daje przyszłemu właścicielowi możliwość urządzenia wnętrza według własnego gustu, stylu i potrzeb.
W całym mieszkaniu zastosowano ogrzewanie podłogowe z indywidualnymi sterownikami temperatury w pomieszczeniach. Ogrzewanie zasilane jest z własnej gruntowej pompy ciepła marki STIEBEL ELTRON, co wpływa na energooszczędność oraz niskie koszty utrzymania.
Budynek spełnia najnowsze standardy efektywności energetycznej i jest podłączony do miejskiej sieci wodociągowej oraz kanalizacyjnej.
Lokalizacja – Osiedle Jeziorna, blisko jeziora i plaży miejskiej
Nieruchomość znajduje się w jednej z bardziej pożądanych części Ełku — na Osiedlu Jeziorna, tuż przy nowej plaży miejskiej.
To doskonała lokalizacja dla osób, które cenią bliskość jeziora, terenów spacerowych i rekreacyjnych, a jednocześnie chcą mieć szybki dostęp do miejskiej infrastruktury. W okolicy znajdują się m.in. szkoła, hala sportowa, kościół, laboratorium, punkty usługowe oraz inne udogodnienia potrzebne na co dzień.
Położenie w pobliżu jeziora i plaży miejskiej sprawia, że lokal może być również ciekawą propozycją inwestycyjną, szczególnie pod wynajem premium.
To nieruchomość dla osób, które szukają czegoś więcej niż standardowego mieszkania. Funkcjonalny układ, własny ogród, duża piwnica, bezczynszowy charakter lokalu oraz nowoczesne rozwiązania techniczne sprawiają, że jest to komfortowa i praktyczna alternatywa dla domu.
Idealna propozycja dla rodziny, osób ceniących przestrzeń i prywatność, a także dla inwestora szukającego nieruchomości w bardzo dobrej lokalizacji — blisko jeziora i plaży miejskiej.
Cena nieruchomości: 750 000 zł
0% prowizji dla kupującego – wynagrodzenie pokrywa sprzedający!