Mieszkanie na sprzedaż
1 018 980 zł
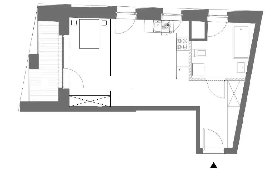
37 m2








1 / 8
Szczegóły ogłoszenia
- Symbol oferty HFC-MS-2137
- Typ oferty mieszkanie na sprzedaż
- Cena 1 018 980 zł
- Charakterystyka mieszkania 37.46 m2, 2 pokoje
- Budynek apartamentowiec
- Rozkład mieszkania 2p piętro
- Balkon jest
- Ilość sypialni 1
- Okna aluminiowe
- Stan lokalu deweloperski
- Winda Tak
Lokalizacja
- Adres pomorskie, Gdańsk, Śródmieście
Opis nieruchomości
BEZPOŚREDNIO OD DEWELOPERA - BEZ PROWIZJI
Prezentowany apartament w ekskluzywnym projekcie w samym sercu gdańskiego Starego Miasta na Wyspie Spichrzów wychodzi naprzeciw oczekiwaniom współczesnych mieszkańców Gdańska, dbając o zachowanie dziedzictwa i bogatej burzliwej historii tego miejsca. W projekcie zachowane zostały oraz odrestaurowane historyczne spichlerze budowane z czerwonej cegły, co stanowi hołd dla bogatej przeszłości tego miejsca i jego XIII- XIV wiecznego charakteru. Oprócz odbudowy starych spichlerzy zadbano również o przebudowę pobliskiej mariny , przebudowę Mostu Stągiewnego w most zwodzony co podniesie walory użytkowe tego miejsca przyciągając pasjonatów żeglarstwa.
Wszystkie atrakcje Starego Miasta znajdują się w bezpośredniej bliskości, a Wyspa Spichrzów została uznana w ostatnich latach za najbardziej pożądane i rozpoznawalne miejsce do zatrzymania wśród turystów gdzie mogą skorzystać z pobliskich restauracji, kawiarni, kin, muzeów, teatrów, filharmonii i innych atrakcji.
Komunikację z innymi dzielnicami zapewniają pobliskie przystanki autobusowe i tramwajowe oraz linia PKP.
W ramach inwestycji powstają w tym projekcie nowoczesne apartamenty, lokale usługowo- handlowe, podziemne parkingi oraz w części prywatnej patio wypoczynkowe z bujną roślinnością.
W celu uzyskania szczegółowych informacji i umówienia spotkania w miejscu realizacji projektu zapraszam do kontaktu telefonicznego
Arkadiusz
tel. 532278733
Prezentowany apartament w ekskluzywnym projekcie w samym sercu gdańskiego Starego Miasta na Wyspie Spichrzów wychodzi naprzeciw oczekiwaniom współczesnych mieszkańców Gdańska, dbając o zachowanie dziedzictwa i bogatej burzliwej historii tego miejsca. W projekcie zachowane zostały oraz odrestaurowane historyczne spichlerze budowane z czerwonej cegły, co stanowi hołd dla bogatej przeszłości tego miejsca i jego XIII- XIV wiecznego charakteru. Oprócz odbudowy starych spichlerzy zadbano również o przebudowę pobliskiej mariny , przebudowę Mostu Stągiewnego w most zwodzony co podniesie walory użytkowe tego miejsca przyciągając pasjonatów żeglarstwa.
Wszystkie atrakcje Starego Miasta znajdują się w bezpośredniej bliskości, a Wyspa Spichrzów została uznana w ostatnich latach za najbardziej pożądane i rozpoznawalne miejsce do zatrzymania wśród turystów gdzie mogą skorzystać z pobliskich restauracji, kawiarni, kin, muzeów, teatrów, filharmonii i innych atrakcji.
Komunikację z innymi dzielnicami zapewniają pobliskie przystanki autobusowe i tramwajowe oraz linia PKP.
W ramach inwestycji powstają w tym projekcie nowoczesne apartamenty, lokale usługowo- handlowe, podziemne parkingi oraz w części prywatnej patio wypoczynkowe z bujną roślinnością.
W celu uzyskania szczegółowych informacji i umówienia spotkania w miejscu realizacji projektu zapraszam do kontaktu telefonicznego
Arkadiusz
tel. 532278733
Nota prawna
Opis oferty zawarty na stronie internetowej sporządzany jest na podstawie oględzin nieruchomości oraz informacji uzyskanych od właściciela, może podlegać aktualizacji i nie stanowi oferty określonej w art. 66 i następnych K.C.
Kalkulator kredytowy
Formularz kontaktowy