Mieszkanie na sprzedaż





















Szczegóły ogłoszenia
- Symbol oferty ESC-MS-35
- Typ oferty mieszkanie na sprzedaż
- Cena 669 000 zł
- Charakterystyka mieszkania 59 m2, 3 pokoje
- Budynek kamienica; rok budowy: 1935
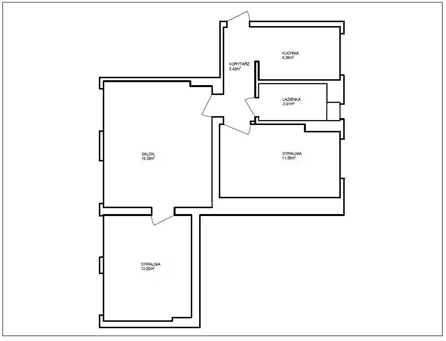
- Rozkład mieszkania 1p piętro
- Stan lokalu do wprowadzenia
Lokalizacja
- Adres pomorskie, Gdańsk m., Gdańsk
Opis nieruchomości
Przestronne, słoneczne trzypokojowe mieszkanie na 1 piętrze w 3 piętrowej kamienicy w pożądanej dzielnicy Wrzeszcz. Budynek z roku 1935, z klimatem i wysokimi pomieszczeniami.
Nowoczesne mieszkanie z osobna kuchnia, łazienka, korytarzem i trzema bardzo ustawnymi pokojami.
Mieszkanie bardzo słoneczne posiada układ okien z obustronnym wyjściem na północ - południe.
Po generalnym remoncie z ocieplonym i odrestaurowanym niedawno budynkiem oraz cegłą z której słynie ul. Kościuszki.
Do mieszkania przynależy duża piwnica i miejsce parkingowe w przydomowym ogródku oraz strych do użytku wspólnego lokatorów.
Mieszkanie jest świetnie skomunikowane (autobus, tramwaj, SKM, Kolej na Lotnisko, drogi rowerowe prowadzące nad morze, można dojechać praktycznie wszędzie w trójmieście).
Na przeciwko żabka, niedaleko sklepy spożywcze, liczne punkty usługowo handlowe, galerie handlowe Metropolia i Galeria Bałtycka, żłobki, przedszkole oraz szkoły.
Nieruchomość zabezpieczona domofonem na kod.
W mieszkaniu zostaje w pełni umeblowana kuchnia z AGD (piekarnik, płyta, lodówka, zmywarka), stół z krzesłami, pralka, wygodna i duża kanapa świetnej jakości sprowadzona z Anglii. Meble Ikea w salonie,2 x wersalki do spania i wiele innych rzeczy.
Mieszkanie po generalnym remoncie, nowa instalacja elektryczna, instalacja wod.-kan., pion wod.-kan. Łazienka z pralką, wanno- prysznicem, pojemnymi szufladami z cichym domykiem. Nowoczesna umywalka i podwieszany WC oraz podświetlane lustro. W mieszkaniu wymienione podłogi, drzwi wewnętrzne i wejściowe na antywłamaniowe. Wykonana zabudowa na wymiar w korytarzu i łazience.
Ogrzewanie gazowe- nowy piec dwufunkcyjny kondensacyjny z zamkniętą komorą spalania.
Kamienica ocieplona w roku 2019, kapitalny remont klatki schodowej (wymienione instalacje elektryczna i telekomunikacyjna, liczniki elektryczne przeniesione na parter) w roku 2021.
Budynek posiada tylko 9 mieszkań.
Bardzo wysoki standard, nie wymaga wkładu finansowego. Możliwość zamieszkania od zaraz.
- Na sprzedaż mieszkanie 3-pokojowe o powierzchni 59,50 m²
- 1 piętro w 3-piętrowej kamienicy bez windy z 1935 roku
- Gdańsk, Wrzeszcz, ul. Tadeusza Kościuszki
- Piwnica, zewnętrzne miejsce parkingowe, ogródek, osobna kuchnia
- Mieszkanie w bardzo dobrym stanie, okna plastikowe
- Odrębna własność z księgą wieczystą
- Wyposażenie: pralka, lodówka, kuchenka, piekarnik, zmywarka