Mieszkanie na sprzedaż












Szczegóły ogłoszenia
- Symbol oferty GRS-MS-2942
- Typ oferty mieszkanie na sprzedaż
- Cena 270 000 zł
- Charakterystyka mieszkania 69.96 m2, 4 pokoje
- Budynek rok budowy: 1990
- Rozkład mieszkania 3p piętro
- Media Ogrzewanie: C.O. miejskie; Woda: tak-podgrzewacz elektryczny; Gaz: brak
- Instalacje dobre
- Okna PCV
- Stan lokalu do odnowienia
- Umeblowanie częściowo umeblowane
Lokalizacja
- Adres pomorskie, słupski, Główczyce
Opis nieruchomości
PRZESTRONNE 4-POKOJOWE MIESZKANIE Z PIWNICĄ – GŁÓWCZYCE, UL. NA WZGÓRZU – 69,96 M²
4 pokoje | 1. piętro | dwustronne | piwnica 10 m² | spokojna okolica | pełna własność
Prezentujemy ofertę sprzedaży ustawnego, 4-pokojowego mieszkania o powierzchni 69,96 m², położonego na 3. piętrze zadbanego i ocieplonego budynku przy ul. Na Wzgórzu 10 w Główczycach. Do mieszkania przynależy piwnica o powierzchni 10 m².
Mieszkanie jest dwustronne, w pełni rozkładowe, co zapewnia wygodę i komfort codziennego użytkowania. Doskonała propozycja dla rodzin, osób pracujących z domu lub tych, którzy szukają funkcjonalnego lokum w spokojnej okolicy
Układ pomieszczeń i wyposażenie
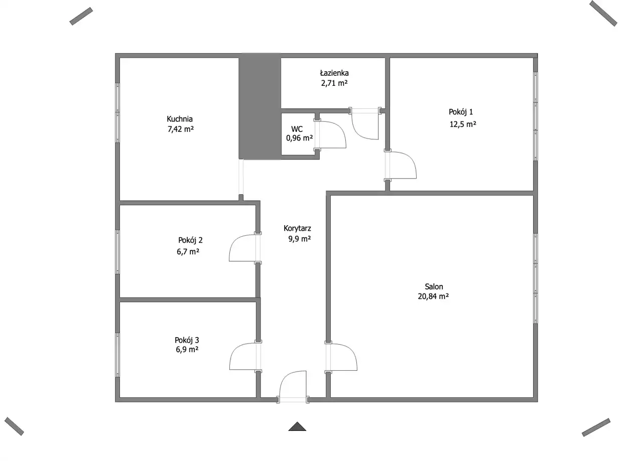
- Przestronny korytarz (9,9 m²) z wejściami do wszystkich pomieszczeń, gwarantujący pełen rozkład mieszkania.
- Pokój dzienny (20,8 m²) – jasny, ustawny, idealny salon z częścią wypoczynkową i jadalnianą.
- Sypialnia (12,5 m²) – komfortowa, z miejscem na dużą szafę lub garderobę.
- Dwa mniejsze pokoje (6,9 m² i 6,7 m²) – sprawdzą się jako pokoje dziecięce, gabinet lub pracownia.
- Kuchnia (7,4 m²) – funkcjonalna, wyposażona w nowe szafki kuchenne, kuchenkę gazowo-elektryczną oraz zmywarkę.
- Łazienka (2,7 m²) oraz osobne WC (1 m²) – praktyczne rozwiązanie dla całej rodziny, wykończone nową glazurą i wyposażone w nowe meble łazienkowe.
- Na podłogach w pokojach znajdują się panele, a w kuchni – terakota.
LOKALIZACJA – GŁÓWCZYCE, UL. NA WZGÓRZU
Główczyce to spokojna i dobrze rozwinięta miejscowość położona między Słupskiem a Łebą. W pobliżu znajduje się pełna infrastruktura: sklepy (Biedronka, Dino, ABC), szkoła, kościół, poczta, bank oraz hala sportowa. Okolica budynku jest zadbana, z ogólnodostępnymi miejscami parkingowymi dla mieszkańców. Idealne miejsce dla rodzin i osób ceniących spokój oraz bliskość natury.
DODATKOWE INFORMACJE:
- pełna własność, brak obciążeń w księdze wieczystej
- przynależna piwnica – 10 m²
- budynek podłączony do lokalnej kotłowni
- okna PCV i nowe rolety
- drzwi wejściowe antywłamaniowe,
- spokojna okolica
- możliwość szybkiego wydania
CENA: 270 000 PLN
Strona Kupująca pokrywa wynagrodzenie prowizyjne dla biura
Więcej informacji uzyskasz kontaktując się z nami:
799 077 000 – Wiktoria Gołębiewska (opiekun oferty)
503 901 101 – Adrianna Iwanicka, licencja 23687
799 799 397 – Dominika Szramiak
728 202 030 – Marta Patyna
669 647 067 – Karolina Jakuczun
799 799 313 - Marta Rutkowska
728 111 007 – Przemek Pryzwan
Serdecznie zapraszam Państwa na prezentację nieruchomości, z przyjemnością odpowiem na wszelkie pytania oraz udzielę dodatkowych informacji.
Zamierzasz kupić nieruchomość i skorzystać z finansowania banku? Pomożemy dokonać Ci dobrego wyboru najlepszej oferty spośród wielu banków. Nasz doradca dostosuje ofertę kredytu hipotecznego do Twoich potrzeb i oczekiwań oraz będzie do Twojej dyspozycji na każdym etapie procesu kredytowego.
Niniejsza oferta nie stanowi oferty w rozumieniu Kodeksu Cywilnego, a dane w niej zawarte mają jedynie charakter informacyjny i mogą ulec zmianie.