Mieszkanie na sprzedaż















Szczegóły ogłoszenia
- Symbol oferty GRS-MS-2552
- Typ oferty mieszkanie na sprzedaż
- Cena 69 000 zł
- Charakterystyka mieszkania 71.4 m2, 2 pokoje
- Budynek budynek wielorodzinny
- Rozkład mieszkania parter piętro
- Media Ogrzewanie: piec kaflowy; Woda: jest; Gaz: brak
- Instalacje częściowo wymienione
- Okna PCV
- Otoczenie las
- Stan lokalu częściowo po remoncie
- Technologia budowlana tradycyjna
- Umeblowanie brak
Lokalizacja
- Adres pomorskie, Główczyce, Podole Wielkie
Opis nieruchomości
Na sprzedaż mieszkanie do remontu - przestronne, dwustronne z działkami i budynkami gospodarczymi.
Będzimierz, gmina Główczyce.
Oferujemy przestronne, bezczynszowe mieszkanie do remontu, usytuowane na parterze w budynku zlokalizowanym w spokojnej wsi Będzimierz. To idealna propozycja dla osób szukających nieruchomości do własnej aranżacji w cichej i malowniczej okolicy.
Opis nieruchomości:
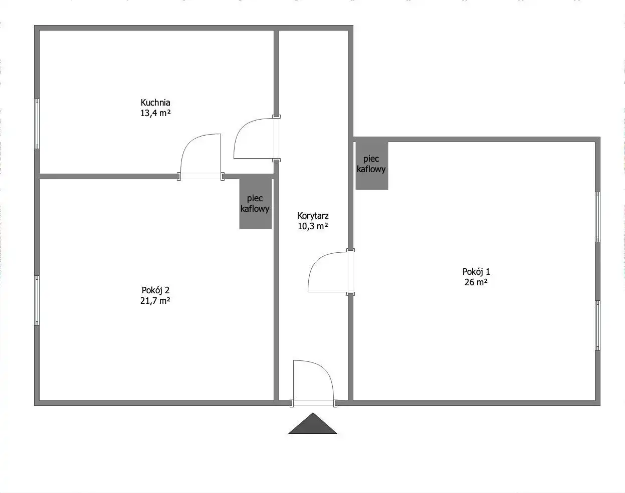
Mieszkanie posiada powierzchnię użytkową siedemdziesiąt jeden i cztery dziesiąte metra kwadratowego. Jest to lokal dwustronny, co zapewnia dobre doświetlenie pomieszczeń przez cały dzień. W jego skład wchodzą dwa przestronne pokoje o powierzchni dwudziestu sześciu oraz dwudziestu jeden i siedmiu dziesiątych metra kwadratowego. Dodatkowo znajduje się tutaj duża kuchnia o powierzchni trzynastu i czterech dziesiątych metra kwadratowego oraz korytarz mierzący dziesięć i trzy dziesiąte metra kwadratowego. Obecnie w mieszkaniu nie ma wydzielonej łazienki, jednak istnieje możliwość jej łatwego zaaranżowania według własnych potrzeb.
Dodatkowe udogodnienia:
Do lokalu przynależy piwnica o powierzchni około dwudziestu metrów kwadratowych, a także trzy pomieszczenia gospodarcze o łącznej powierzchni pięćdziesięciu metrów kwadratowych. Dodatkowym atutem są dwa ogródki rekreacyjne, których powierzchnia wynosi odpowiednio sześćset siedemdziesiąt siedem oraz pięćset osiemdziesiąt sześć metrów kwadratowych. To idealna przestrzeń do relaksu na świeżym powietrzu lub uprawy własnego ogródka.
Lokalizacja i otoczenie:
Miejscowość Będzimierz to spokojna i zielona okolica, otoczona malowniczymi lasami. W pobliżu, w odległości sześciu kilometrów, przepływa rzeka Łeba, co stanowi dodatkowy atut dla miłośników przyrody i wędkarstwa. Odległość do najbliższych większych miejscowości to piętnaście kilometrów do Lęborka, siedemnaście kilometrów do Główczyc, sześć kilometrów do Stowięcina, dwadzieścia osiem kilometrów do nadmorskiej Łeby oraz czterdzieści pięć kilometrów do Słupska. Do miejscowości kursuje gminny autobus, który zapewnia dowóz dzieci do pobliskiej szkoły.
Stan techniczny mieszkania:
We wszystkich pomieszczeniach zamontowane są okna PCV, co zapewnia dobrą izolację termiczną. Ogrzewanie mieszkania realizowane jest za pomocą pieców kaflowych znajdujących się w dwóch pokojach. Obecnie w lokalu nie ma dostępu do ciepłej wody, dlatego konieczne będzie zainstalowanie bojlera elektrycznego.
Mieszkanie posiada ogromny potencjał do adaptacji według własnych potrzeb i stanowi atrakcyjną ofertę dla osób ceniących spokój, przestrzeń oraz możliwość stworzenia wymarzonego wnętrza w malowniczej okolicy.
DODATKOWE INFORMACJE:
- pełna własność, brak obciążeń w Księdze Wieczystej,
- ogrzewanie z pieców kaflowych, czynne kominy,
- wszystkie okna PCV, wymienione 6 lat temu,
- wysokość pomieszczeń – 3,12m,
- mieszkanie bezczynszowe,
- dojazd do budynku drogą utwardzoną (gminna, odśnieżana zimą).
CENA NIERUCHOMOŚCI: 69 000 zł
Strona Kupująca pokrywa wynagrodzenie prowizyjne dla biura.
Więcej informacji uzyskasz kontaktując się z nami:
799 799 313 – Marta Rutkowska (opiekun oferty), licencja 23697
728 202 030 – Marta Patyna
669 647 067 – Karolina Jakuczun
503 901 101 – Adrianna Iwanicka, licencja 23687
728 111 007 – Przemek Pryzwan
799 799 397 – Dominika Szramiak
Serdecznie zapraszam Państwa na prezentację nieruchomości, z przyjemnością odpowiem na wszelkie pytania oraz udzielę dodatkowych informacji.
Niniejsza oferta nie stanowi oferty w rozumieniu Kodeksu Cywilnego, a dane w niej zawarte mają jedynie charakter informacyjny i mogą ulec zmianie.