Dom na sprzedaż
459 000 zł
126 m2



























1 / 27
Szczegóły ogłoszenia
- Symbol oferty WMB-DS-2332
- Typ oferty dom na sprzedaż
- Cena 459 000 zł
- Charakterystyka mieszkania 126 m2, 4 pokoje, do wykończenia
- Budynek rok budowy: 2024
- Media Ogrzewanie: inne; Woda: tak; Kanalizacja: tak; Prąd: jest
- Bezpieczeństwo ogrodzenie działki: ogrodzona
- Dojazd ASFALTOWA
- Działka częściowo zagospodarowana, płaska, kwadrat
- Garaż w budynku
- Instalacje nowe
- Okna PCV 3 szyby, ciepły montaż
- Otoczenie działki zabudowane
- Pokrycie dachu dachówka betonowa
- Rodzaj domu bliźniak
Lokalizacja
- Adres dolnośląskie, świdnicki, Jaworzyna Śląska
Opis nieruchomości
WOMBAT NIERUCHOMOŚCI oferuje na sprzedaż dom w zabudowie bliźniaczej na spokojnym osiedlu domków jednorodzinnych w Jaworzynie Śląskiej.
TYLKO U NAS !!!
ŚWIETNA CENA !!!
Możliwość wykonania wszelkich pracy do stanu deweloperskiego lub pod klucz
WEDŁUG WŁASNEJ KONCEPCJI !!!
Charakterystyka Nieruchomości:
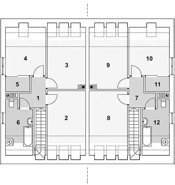
- Powierzchnia użytkowa: 126 m² (dom parterowy z poddaszem użytkowym)
- Powierzchnia działki: 600 m²
- Garaż w bryle budynku (17,11m2)
- budynek postawiony z betonu komórkowego Termobet
- strop TERIVA
- więźba tradycyjna
- pokrycie dachu: dachówka KIOTO marki CREATON
- wysokiej jakości membrana dachowa CREATON DURABLACK+ 250g/m2;
- odwodnienie dachu rynny metalowe kwadratowa QSTALYO PRO
- instalacja odgromowa
- okna trzyszybowe PCV ciepły montaż trójwarstwowy, taśmy Illbruck
- okna dachowe ROTO Designo,
- drzwi wejściowe MARTOM z przeszkleniem
- brama garażowa segmentowa na pilota w standardzie (możliwość wstawienia okna i wykorzystania garażu według własnej aranżacji)
- wentylacja grawitacyjna
- schody wewnętrzne drewniane tymczasowe
- ogrodzenie panelowe
- media miejskie: woda, prąd
Dojazd do posesji bezpośrednio z drogi asfaltowej.
Doskonała lokalizacja nieruchomości! Atrakcyjne osiedle domków jednorodzinnych.
CENA 459 000zł do negocjacji
Zadzwoń i umów się na prezentację, aby poznać tą niezwykle atrakcyjną nieruchomość !!!
Agent prowadzący: Daniel Kruk
tel. +48 697 605 265 lub +48 575 479 259
WOMBAT NIERUCHOMOŚCI
Nota prawna
Opis oferty zawarty na stronie internetowej sporządzany jest na podstawie oględzin nieruchomości oraz informacji uzyskanych od właściciela, może podlegać aktualizacji i nie stanowi oferty określonej w art. 66 i następnych K.C.
Kalkulator kredytowy
Formularz kontaktowy