Mieszkanie na sprzedaż













Szczegóły ogłoszenia
- Symbol oferty SELM-MS-62
- Typ oferty mieszkanie na sprzedaż
- Cena 315 000 zł
- Charakterystyka mieszkania 37.7 m2, 2 pokoje
- Budynek kamienica
- Rozkład mieszkania 1p piętro
- Media Ogrzewanie: elektryczne; Woda: tak-podgrzewacz elektryczny; Gaz: brak
- Balkon jest
- Czynsz Czynsz letni: 250 zł
- Dojazd ASFALTOWA
- Garaż miejsce parkingowe przy budynku
- Ilość sypialni 1
- Instalacje wymienione
- Okna PCV
- Otoczenie zabudowa jednorodzinna
- Stan lokalu do wprowadzenia
- Technologia budowlana beton, cegła
Lokalizacja
- Adres dolnośląskie, Jelenia Góra, Centrum
Opis nieruchomości
Szukasz mieszkania, które można od razu wynajmować bez dodatkowych nakładów?
Biuro nieruchomości Select M zaprasza do zapoznania się z ofertą sprzedaży dwupokojowego lokalu mieszkalnego po kapitalnym remoncie. Układ dwóch pokoi na 37,7 m² powierzchni i lokalizacja blisko centrum oraz strefy przemysłowej sprzyjają stabilnemu najemcy (para lub singiel) i ograniczają ryzyko pustostanu bez najemcy. Niski czynsz administracyjny (250 zł) ułatwia utrzymanie rentowności i zmniejsza presję kosztową przy rosnących opłatach.
Lokalizacja:
• Jelenia Góra, Mała Poczta;
• 200 m przystanek autobusowy;
• 600 m dyskont spożywczy;
• 1,2 km centrum miasta;
• 2,1 km strefa przemysłowa;
Potencjalny popyt:
• pary lub single pracujący w centrum miasta lub w strefie przemysłowej;
Mieszkanie:
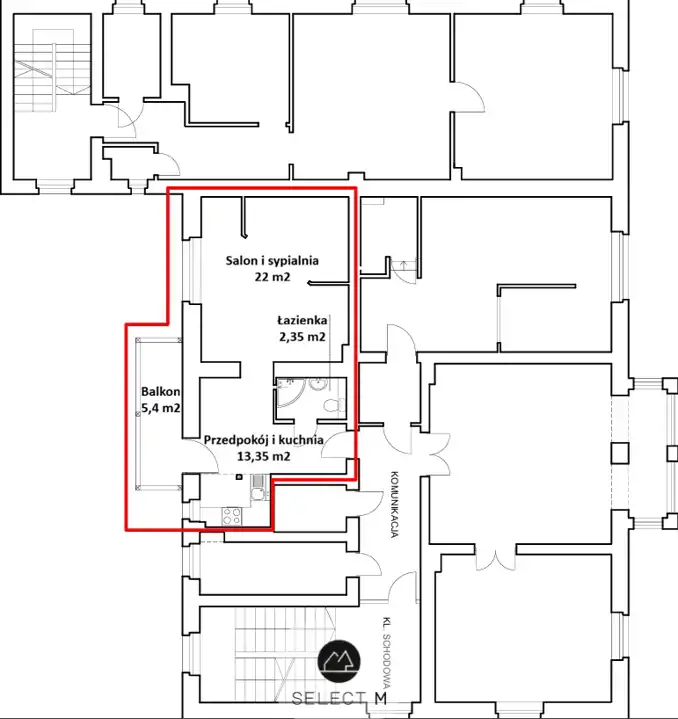
37,7 m² | 2 pokoje | 1 piętro | kamienica
• po kapitalnym remoncie;
• układ: kuchnia tuż za przedpokojem, łazienka, salon + sypialnia (zostaną zamontowane białe drewniane drzwi do sypialni);
• ogrzewanie: elektryczne – maty na podczerwień;
• ciepła woda: bojler elektryczny;
• dodatkowe przestrzenie: balkon – 5,4 m², piwnica;
• miejsce postojowe: przy budynku;
• wyposażenie w cenie;
• czynsz: 250 zł/mies.;
• budynek: elewacja stan bardzo dobry, dach stan bardzo dobry, klatka schodowa do odświeżenia;
• forma własności: pełna własność;
Dlaczego to dobra inwestycja:
• gotowiec inwestycyjny pod najem: wykonany remont + wyposażenie w cenie = mniejszy koszt wejścia i szybsze uruchomienie najmu;
• niskie koszty stałe: czynsz 250 zł wspiera rentowność;
• stabilny profil najemcy: mieszkanie dla pary (2 pokoje, sensowny metraż);
Skontaktuj się już dziś, aby zobaczyć to wyjątkowe mieszkanie w kamienicznym stylu.
*Prezentowana oferta sprzedaży nieruchomości nie stanowi oferty handlowej w rozumieniu Art. 66 §1 Kodeksu Cywilnego, a dane w niej zawarte mają charakter jedynie informacyjny i mogą ulec zmianie.